Baerz & Co is een landelijk samenwerkingsverband van zorgvuldig geselecteerde boutique luxury makelaars. Samen vormen wij één netwerk, met één gedeeld aanbod. De woningen die u op onze website ziet, zijn afkomstig van alle aangesloten kantoren binnen Baerz & Co. Daardoor is niet ieder object rechtstreeks door ons kantoor in verkoop, maar door een gespecialiseerde collega binnen ons netwerk. Heeft u een woning gevonden die u aanspreekt en wilt u meer informatie? Dan brengen wij u graag persoonlijk in contact met de betreffende verkoopmakelaar, zodat u direct en zorgvuldig wordt begeleid.

'S-GRAVENHAGE
Prinsestraat 37 F - 2513 CA
Nederland

€1.580.000 k.k.
Woonoppervlakte
201m2
Perceeloppervlakte
116m2
Slaapkamers
4

Omschrijving

De beste Haagse stadsvibes!!

Op een toplocatie midden in het geliefde Hofkwartier, te weten de Prinsestraat, onderdeel van het bruisende oude centrum, ligt deze geheel gerenoveerde unieke stadsvilla, met zijn beschutte ligging in een ‘hofje’ achter de gevel van de voormalige brandweerkazerne uit 1899. Hier ervaar je optimale rust mèt alle mogelijk denkbare voorzieningen om de hoek. Winkels, supermarkten, restaurants, OV, scholen, theaters, bioscopen, musea, galeries, sportfaciliteiten en veel groen (o.a Paleistuin) zijn zo lopend te bereiken, evenals het Noordeinde, de Denneweg en de Frederikstraat.
Binnen 10 minuten fiets je vanuit de historische binnenstad naar het strand van Scheveningen.

Dit bijzondere huis is met heel veel stijl en originaliteit vormgegeven en verkeert in uitmuntende staat. Met zijn drie terrassen op het zuiden, verdeeld over 3 woonlagen, heb je de optimale keuze wáár je een kop koffie of een glas wijn gaat drinken. Geniet in de zomermaanden met vrienden van een BBQ op eigen terras voor het huis. ’s Avonds en in het weekend is de imposante toegangspoort gesloten wat totale privacy geeft.

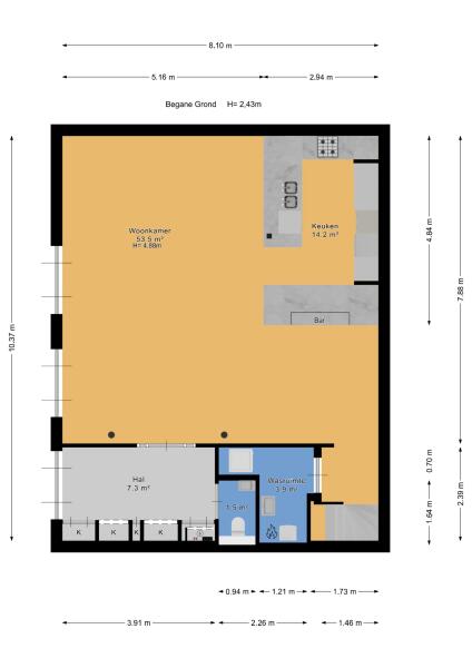
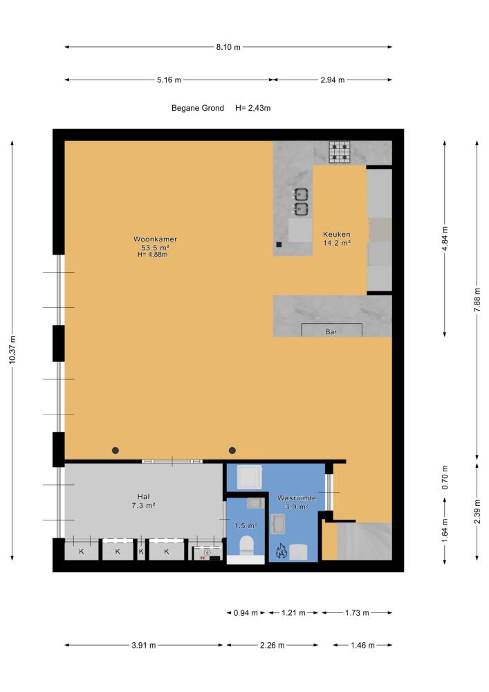
Indeling:
Entree, ruime hal met ingebouwde garderobekasten, moderne wc met fonteintje, via het stalen frame met glas komen we in de royale zit/eetkamer (70m2) met open moderne keuken voorzien van inbouw apparatuur. Deze ruimte heeft een loftachtig gevoel door de hoogte en door de grote raampartijen komt er veel licht binnen. De vloerafwerking is een fraaie eiken parket vloer (inclusief vloerverwarming) en er zijn twee sets openslaande deuren naar het terras voor het huis. De begane grond wordt gecompleteerd door een interne berging voorzien van de Cv en waterpomp & ontharder en de aansluitingen voor wasmachine en droger.

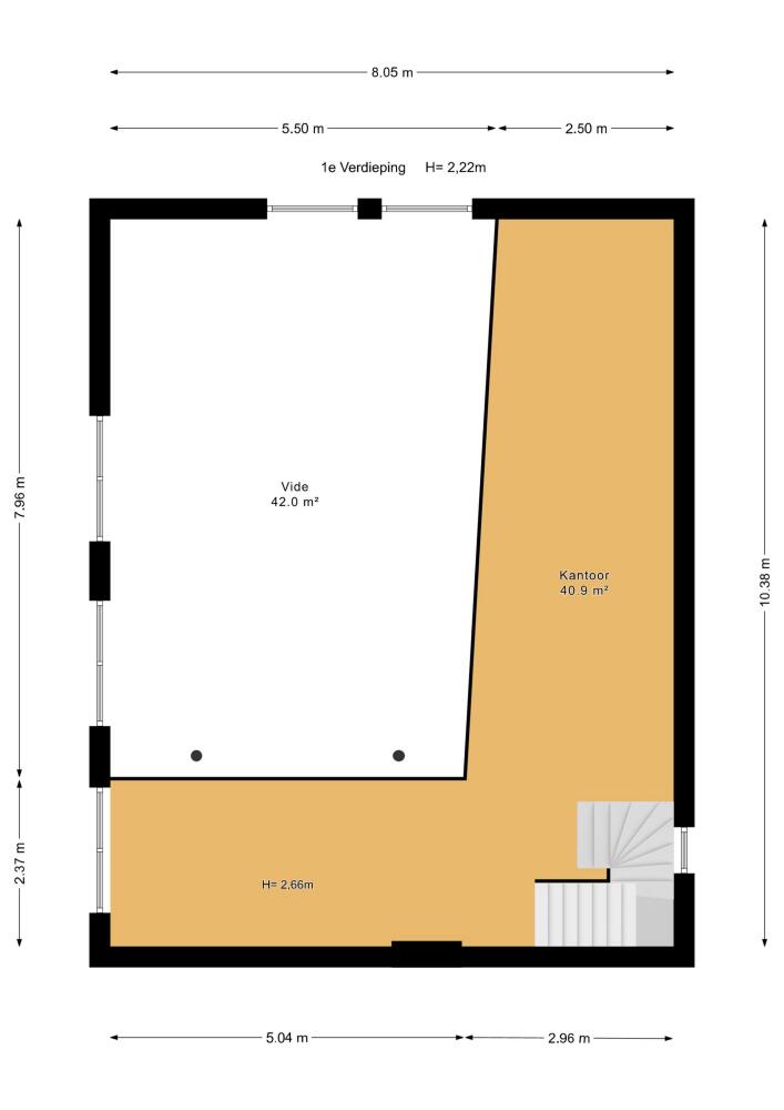
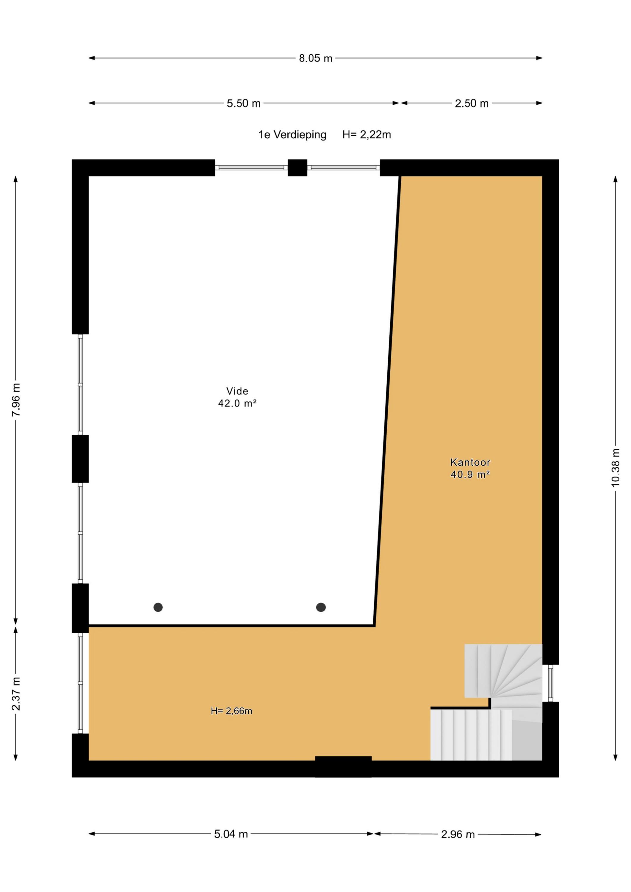
De 1e verdieping bestaat uit een grote L-vormige vide die op verschillende wijze kan worden benut. Thans zijn hier twee heerlijke lichte werkplekken gesitueerd maar mocht men behoefte hebben aan extra slaapkamers dan kunnen deze hier worden gecreëerd.

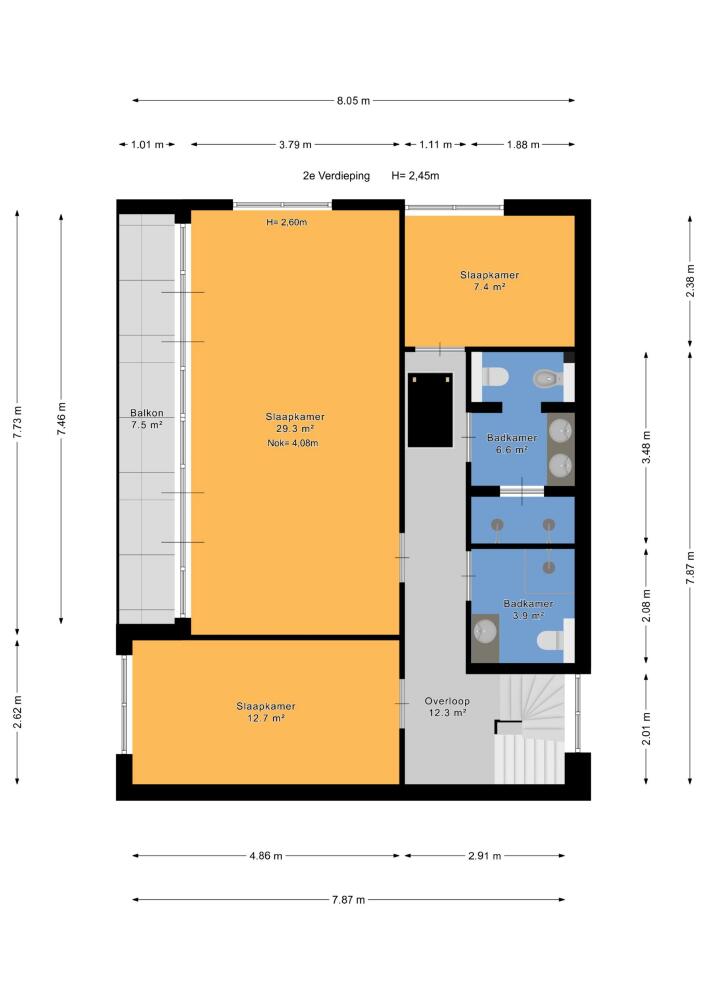
De 2e verdieping telt een drietal slaapkamers (voorheen vier), een ruim zonnig balkon en twee moderne badkamers. De hoofdslaapkamer heeft eveneens een loft achtige uitstraling met de spanten in het zicht. Vanuit de gang is er een ruime vliering bereikbaar waar een WTW-systeem staat en er is een vaste trap naar het zonnige dakterras met panoramisch uitzicht over Den Haag.

Bewoners hebben de mogelijkheid gebruik te maken van een ondergrondse parkeervoorziening. Deze 158 parkeerplaatsen zijn beschikbaar voor mensen die binnen 200 meter van de paleistuin wonen of werken.

Nadere gegevens:
- Eigen grond
- Rijksmonument
- Woonoppervlakte ca. 200m2
- Energielabel A
- Terras op begane grond
- Dakterras
- Balkon
- Ruime vliering met veel opberg mogelijkheden
- Recentelijk is al het buiten houtwerk opnieuw geschilderd
- Aanvaarding in onderling overleg
- Ouderdom- en materialenclausule worden opgenomen in de NVM Koopovereenkomst

Kenmerken

Overdracht
Vraagprijs
€ 1.580.000 k.k.
Status
beschikbaar
Aanvaarding
in overleg
Bouw
Soort woonhuis
Herenhuis
Soort bouw
geschakelde woning
Bouwjaar
1938
Energieklasse
A
Slaapkamers
4
Badkamers
2
Oppervlakten en inhoud
Woonoppervlakte
201 m2
Overige inpandige ruimte
2 m2
Gebouwgebonden buitenruimte
18 m2
Inhoud
820 m3
Perceeloppervlakte
116 m2
faciliteiten
In centrum
Beschutte ligging
Baerz & Co Property Brochure

Brochure

Video’s

11 Makelaars - Amsterdam

Mt. Lincolnweg 38 - 617
1033SN Amsterdam

info@11makelaars.nl
+31 20 20 50 208

www.11makelaars.nl

Informatie / bezichtigingsaanvraag

Niels Eering profile image
Niels Eering
Real Estate Agent

Een luxe woning kopen in Den Haag

Den Haag biedt een stijlvolle gemeenschap, internationale verbindingen en gerenommeerde culturele instellingen. Bewoners genieten van premium dienstverlening, elegante omgevingen en directe toegang tot internationale voorzieningen, alles in een discrete en veilige stedelijke context.