Ons kantoor is lid van Baerz & Co Luxury Homes; een internationaal platform dat exclusieve woningmakelaars met elkaar verbindt. Neem contact op met ons secretariaat voor meer informatie over het landelijke aanbod, waarvan u hieronder een selectie kunt bekijken.

ZOETERMEER
Bellefleurhof 12 0 ong - 2728 KH
Pays-Bas

Xandra Bek profile image
Xandra Bek
Register makelaar - taxateur
€1,345,000 k.k.
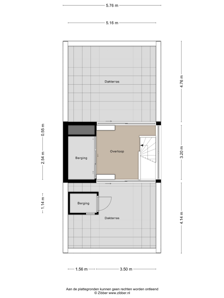
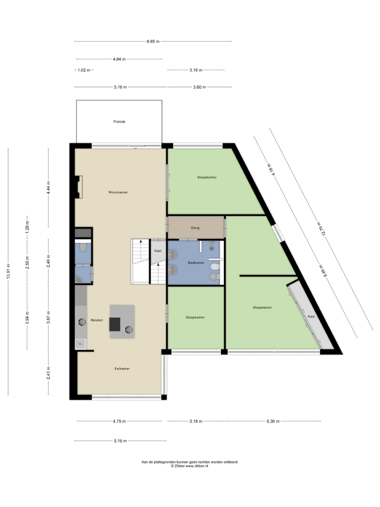
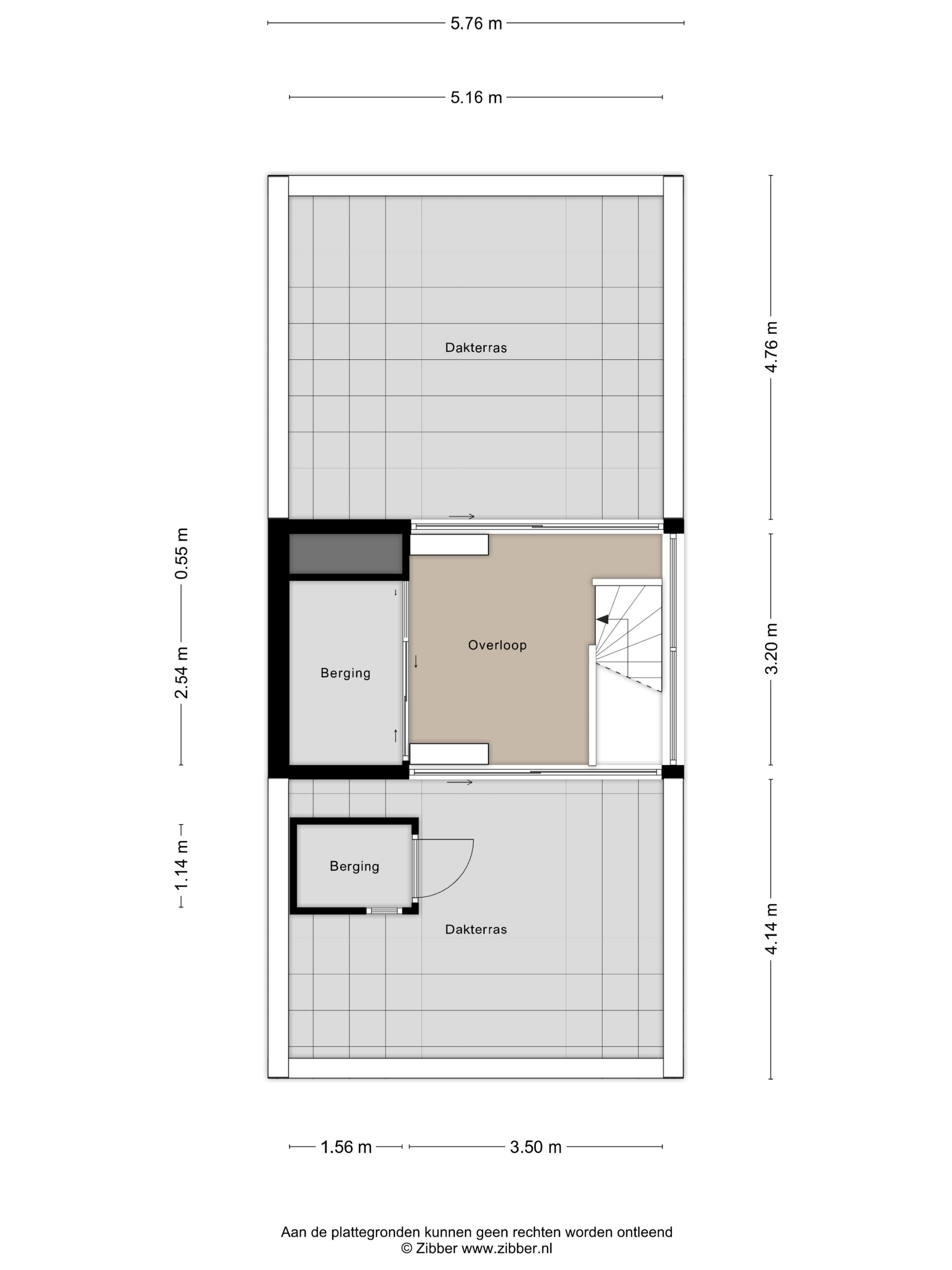
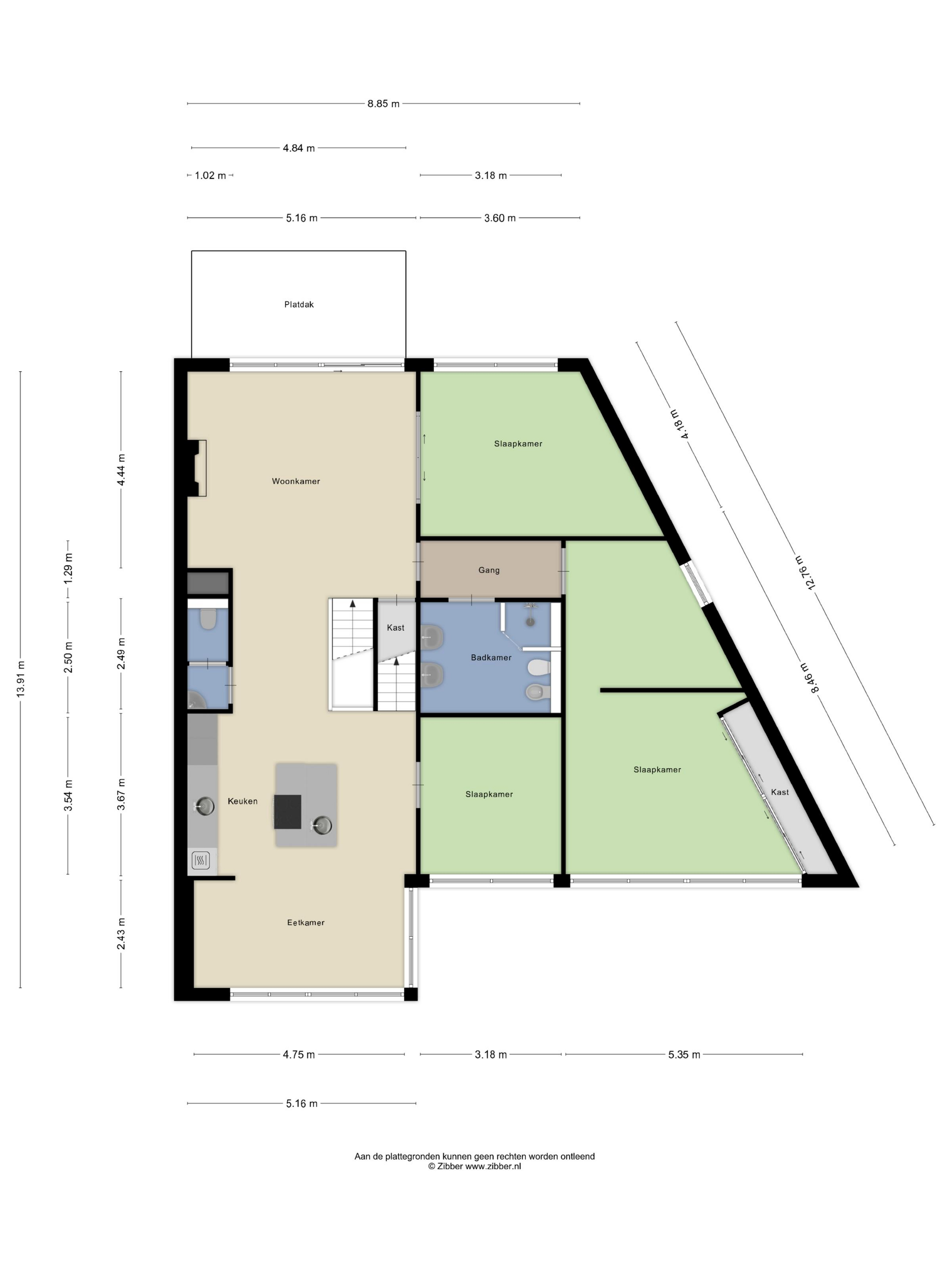
Surface habitable
382m2
Superficie du terrain
N/A
Chambres
9

Description

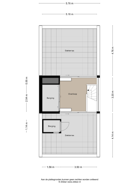
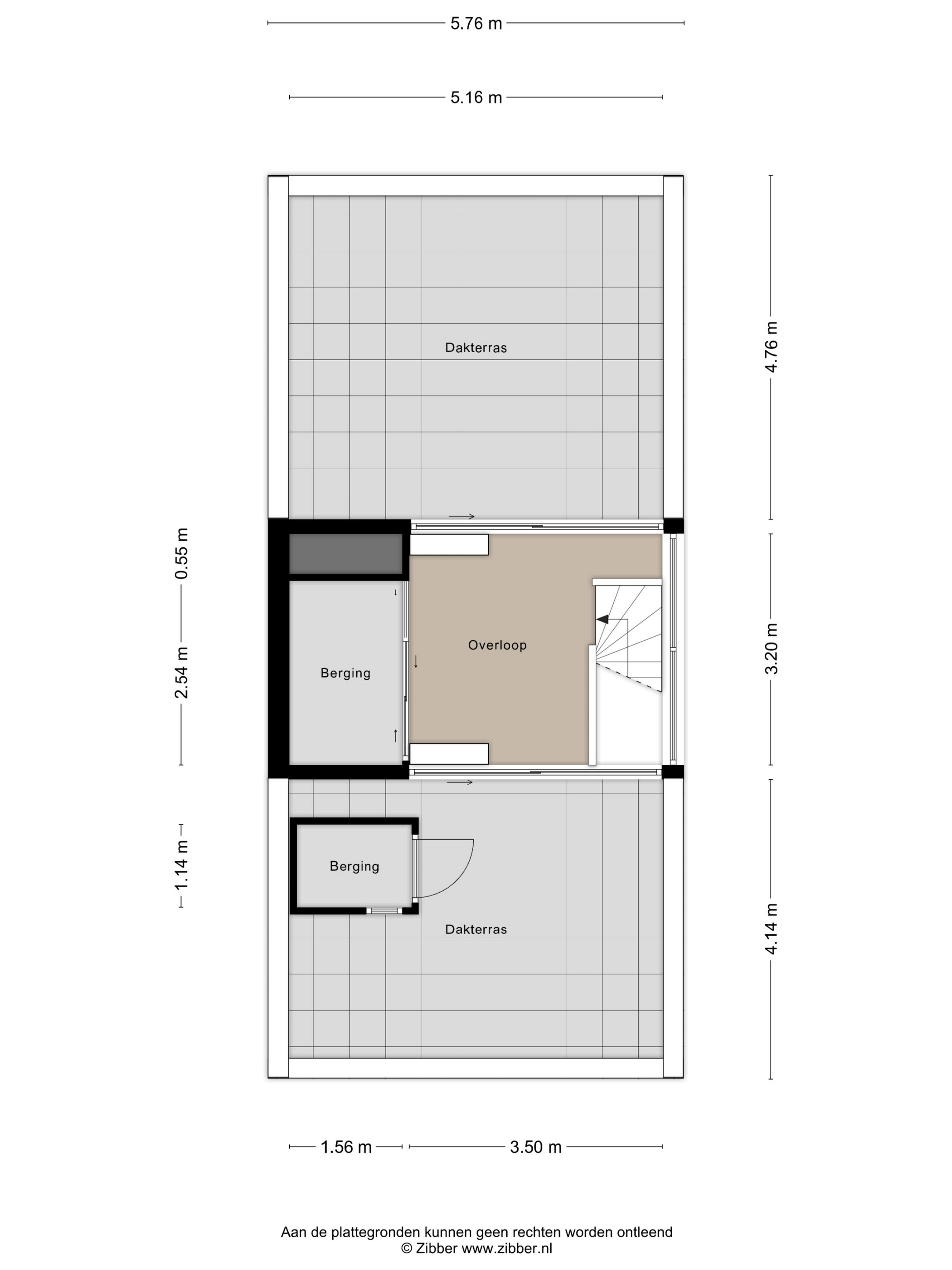
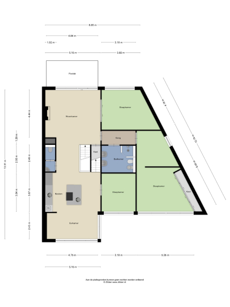
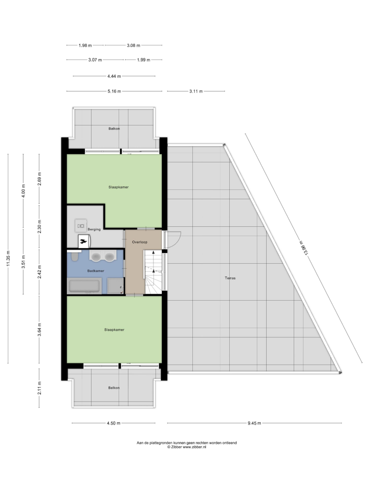
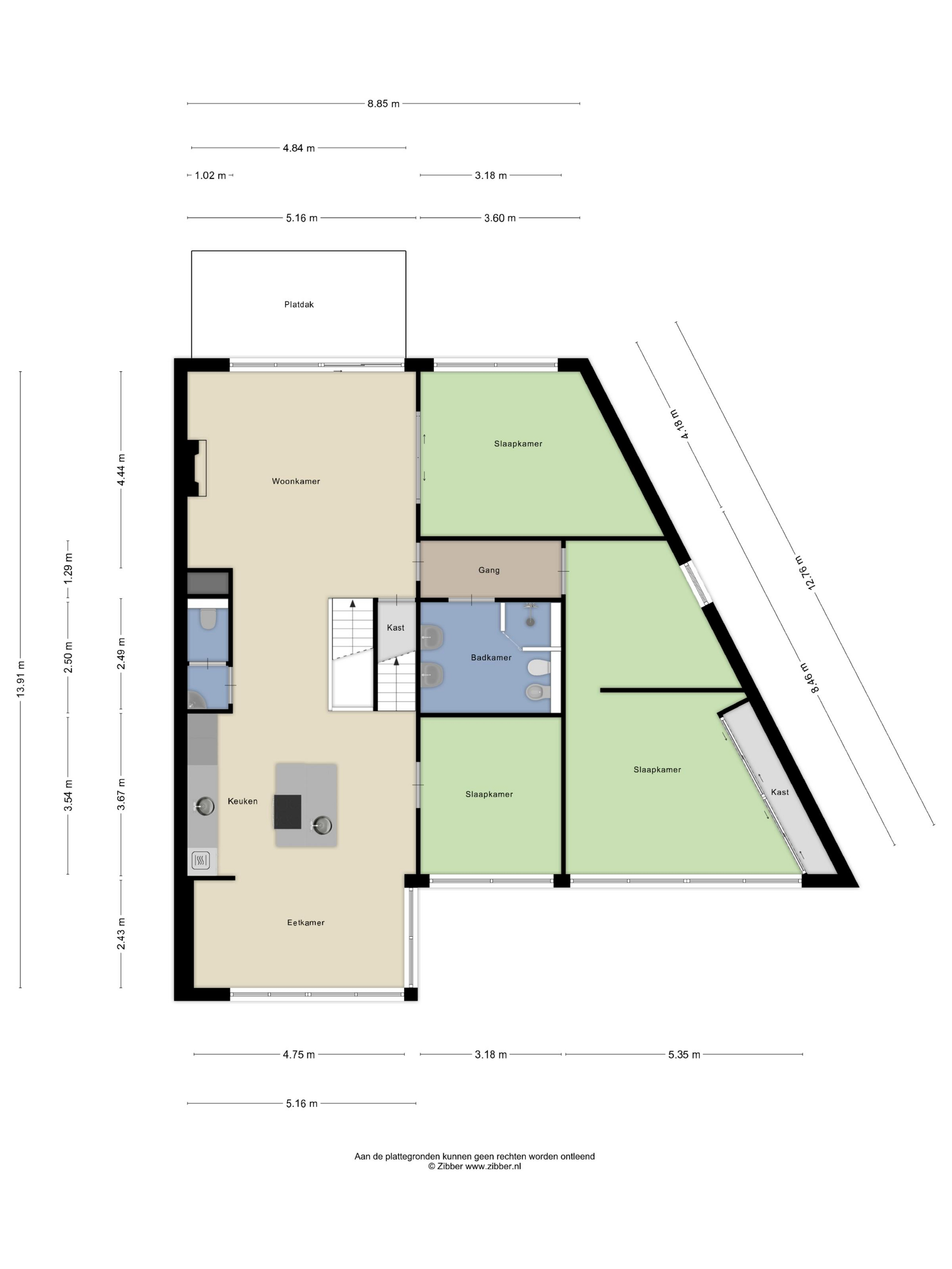
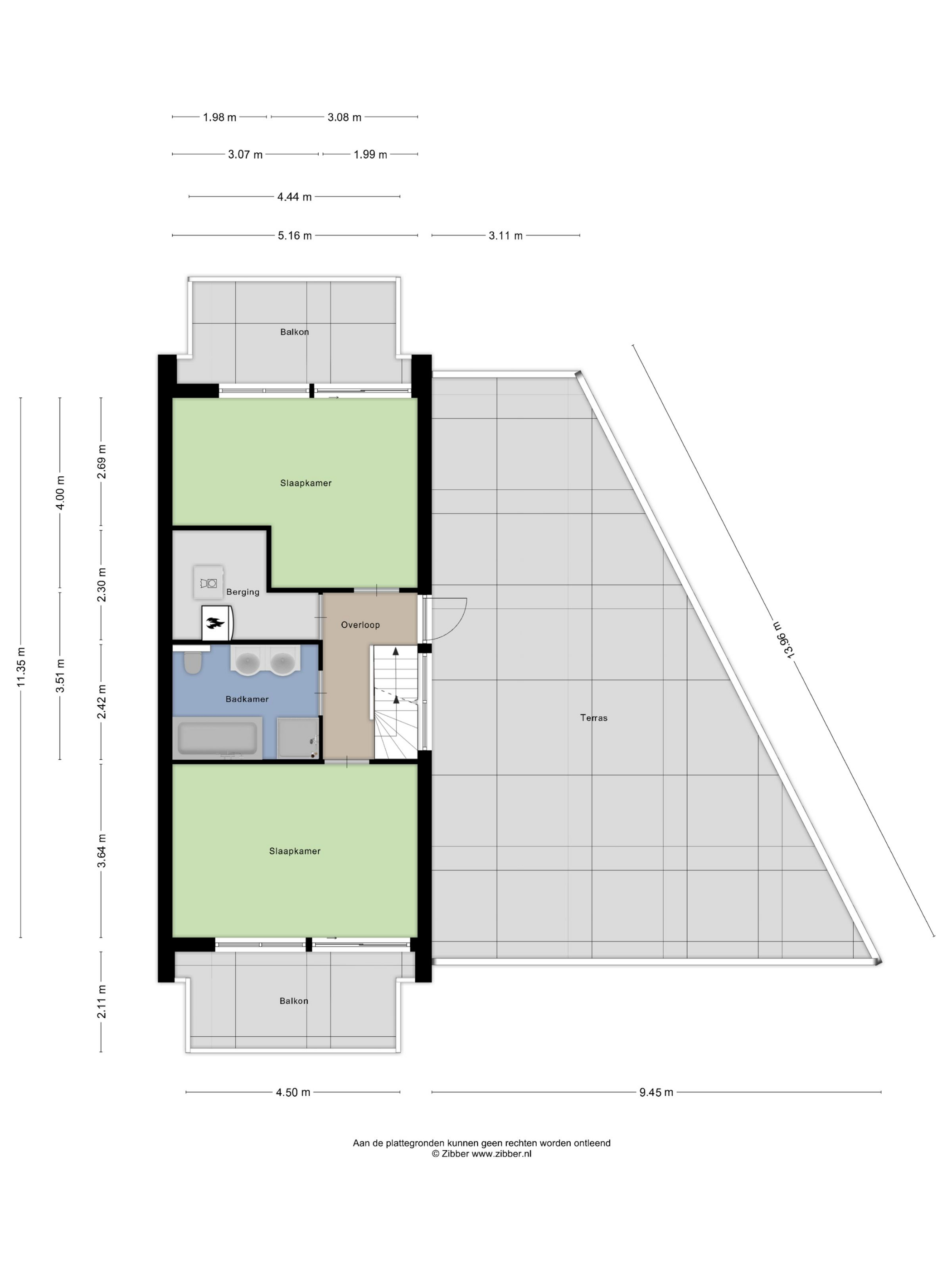
Cette maison mitoyenne à Zoetermeer propose une opportunité rare : deux habitations totalement indépendantes sous un même toit, conçues pour répondre aux besoins changeants de la vie intergénérationnelle ou de la cohabitation facilitée. Offrant 382 m² d’espace intérieur répartis sur quatre étages, elle associe harmonieusement intimité et possibilité de partage à travers deux salons, deux cuisines et neuf chambres, complétées par trois salles de bains contemporaines.

La lumière naturelle inonde les vastes espaces grâce à de grandes baies vitrées, mettant en valeur des intérieurs généreux aux lignes modernes et aux menuiseries en aluminium faciles à entretenir. Chaque espace de vie s’ouvre sur de belles vues verdoyantes, offrant une atmosphère paisible au cœur d’un quartier résidentiel arboré aux larges avenues tranquilles. La répartition des chambres sur tous les niveaux offre une grande flexibilité, adaptée aux familles nombreuses, aux invités ou aux bureaux privés.

Au total, 168 m² d’espaces extérieurs vous attendent, avec un jardin à l’avant, un jardin à l’arrière, trois balcons et trois terrasses sur le toit, garantissant un ensoleillement optimal et toute l’intimité désirée. La maison est équipée de vitrages HR++, d’une isolation renforcée, de douze panneaux solaires et bénéficie d’une étiquette énergétique A, attestant de son engagement en faveur de la qualité et de la durabilité. Les équipements pratiques incluent un carport, un parking privé avec borne de recharge et un potentiel d’agrandissement ultérieur. Le quartier Noordhove deel II offre quiétude et accès direct aux écoles primaires, installations sportives, espaces naturels ainsi qu’une connexion pratique au centre de Zoetermeer et à La Haye. Une adresse familiale au luxe discret et d’une grande polyvalence.

Explorez Zoetermeer avec Baerz, votre conseiller et chercheur de biens immobiliers de confiance

Dans le segment haut de gamme, discrétion et connaissance affinée du marché sont déterminantes. Les conseillers privés donnent accès à des biens exclusifs hors marché et assurent la gestion experte des négociations, facilitant toute opération de grande valeur ou arrangement confidentiel. Leur réseau s’avère précieux pour identifier des opportunités rares et garantir des résultats optimaux.

Évitez les pièges courants

Les acheteurs internationaux perdent souvent un temps précieux sur des annonces en double, obsolètes ou trompeuses en ligne, d'autant plus que près de 30% des maisons de luxe n'apparaissent jamais sur le marché public. Les agents du vendeur représentent les intérêts du vendeur, pas ceux de l'acheteur. Même demander des informations sur une propriété peut entraîner l'enregistrement par un agent du vendeur comme leur « client » sans votre consentement.
Avec Baerz Property Finders & Advisors, vous évitez entièrement tous ces pièges. Nous travaillons uniquement en votre nom, offrant une représentation indépendante, des conseils clairs et un accès à toutes les propriétés disponibles, y compris les opportunités hors marché que d'autres ne voient jamais.

Intéressé par un conseiller personnel en immobilier ?

Nous vous montrons toutes les maisons disponibles en un seul endroit. N'hésitez pas à nous contacter pour savoir comment nous pouvons répondre à vos besoins et protéger vos intérêts exclusivement.

Caractéristiques

Panneaux solaires
Climatisation
Transfert de propriété
Prix demandé
€ 1.345.000 k.k.
Statut
beschikbaar
Acceptation
in overleg
Construction
Type de maison
Herenhuis
Type de bâtiment
halfvrijstaande woning
Période de construction
2002
Classe énergétique
A
Type de toit
plat dak
Chambres
9
Salles de bain
3
Surfaces et volume
Surface habitable
382 m2
Autre espace intérieur
0 m2
Espace extérieur attenant au bâtiment
168 m2
Espace de stockage externe
9 m2
Volume en mètres cubes
1262 m3
Installations
Airconditioning
Rookkanaal
Schuifpui
Frans balkon
Glasvezel kabel
Zonnepanelen
Aan park
In woonwijk
Vrij uitzicht
Baerz & Co Property Brochure

Brochure

Vidéos

Van Herk Makelaars Excellent

Oudehoofdplein 4
3011 TM Rotterdam

xbek@vanherk.nl
+31 102581855

www.vanherk.nl/excellent/

Demande d'information / de visite

Xandra Bek profile image
Xandra Bek
Register makelaar - taxateur

Acheter une propriété de luxe à Zoetermeer

Zoetermeer s’affirme comme une communauté moderne et connectée pour tous ceux qui apprécient la sophistication, la culture vivante et des liaisons efficaces. Les résidents bénéficient de services sur-mesure, de biens de prestige et d’une ouverture internationale dans une ville à la fois paisible et dynamique.