Ons kantoor is lid van Baerz & Co Luxury Homes; een internationaal platform dat exclusieve woningmakelaars met elkaar verbindt. Neem contact op met ons secretariaat voor meer informatie over het landelijke aanbod, waarvan u hieronder een selectie kunt bekijken.

DELFT
Oosteinde 191 - 2611 VD
Pays-Bas

Jan Paul van Daal profile image
Jan Paul van Daal
Real estate agent
€1,250,000 k.k.
Surface habitable
237m2
Superficie du terrain
113m2
Chambres
7

Description

Cette maison de canal à Delft occupe un angle remarquable le long d’une voie d’eau emblématique et propose sept chambres réparties sur 237 m² de surface habitable raffinée. Son emplacement offre un accès dynamique au centre-ville, tandis que son architecture préserve le caractère historique tout en accueillant le rythme de vie contemporain. Rénovée avec soin, la demeure bénéficie d’une cuisine contemporaine, de sanitaires de luxe et de panneaux solaires installés sur un toit récemment restauré—bâti en 1898 et aujourd’hui entretenu selon des normes exceptionnelles.

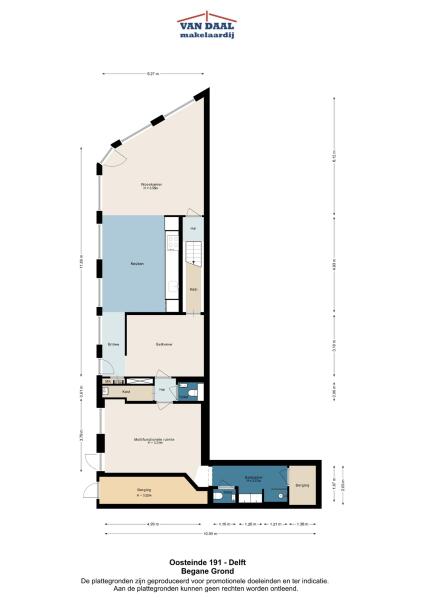
Dès l’entrée, de hautes façades vitrées et un plafond culminant à 3,55 mètres distinguent la cuisine de vie principale. Les moulures en stuc et les vitraux d’origine témoignent du prestige architectural. La cuisine, équipée d’appareils encastrés haut de gamme, s’articule autour d’espaces conviviaux dédiés à la gastronomie et à la réception, encadrés par deux grands salons. Un studio intégré, doté d’une entrée indépendante et d’une salle d’eau avec chauffage au sol, s’adapte aisément à un espace invité ou professionnel. Le rez-de-chaussée comprend de vastes rangements et un accès direct à Broerhuisstraat.

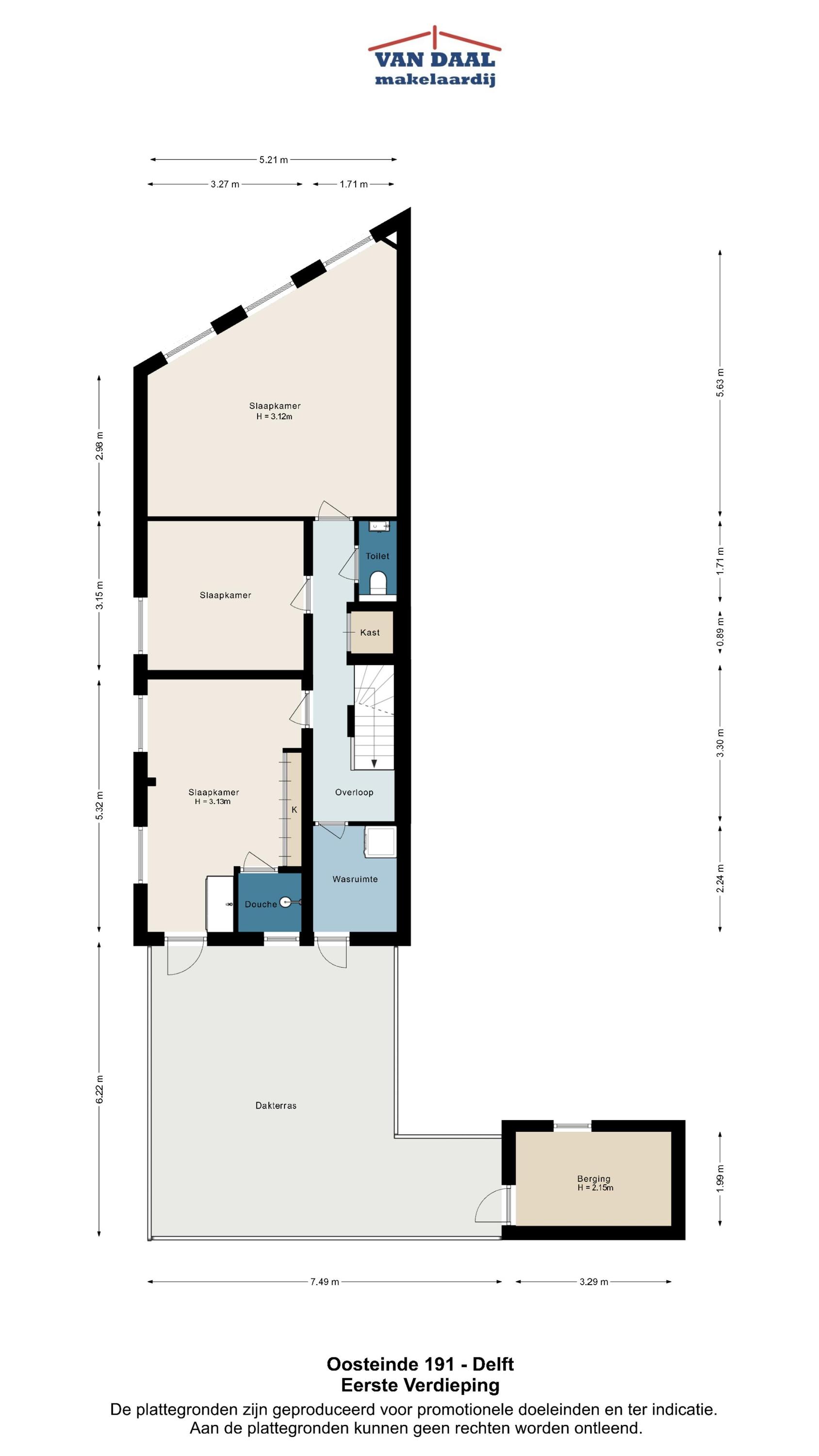
À l’étage, trois grandes chambres reflètent l’élégance d’époque, avec vues sur le canal et vitraux. Une buanderie mène à un jardin de toit intime, rare havre de verdure propice au soleil et à l’intimité. Le second étage offre trois chambres supplémentaires—dont une avec poutres apparentes—ainsi qu’une salle de bains luxueuse avec baignoire, douche à l’italienne et détails de designer.

Implantée sur 113 m² de terrain en pleine propriété, avec installation électrique renouvelée et double vitrage partiel, la maison s’inscrit dans le paysage protégé de Delft. À la croisée du raffinement familial et du dynamisme urbain, cette élégante maison de canal à vendre à Delft se situe à deux pas des cafés, restaurants et de la place historique Beestenmarkt.

Explorez Delft avec Baerz, votre conseiller et chercheur de biens immobiliers de confiance

Se repérer sur ce marché exclusif requiert discrétion et expertise. Les conseillers expérimentés donnent accès à des biens confidentiels, mènent des négociations avisées et maîtrisent parfaitement le contexte culturel et réglementaire local. Leur accompagnement est essentiel pour accéder à un inventaire rare et sécuriser chaque étape.

Évitez les pièges courants

Les acheteurs internationaux perdent souvent un temps précieux sur des annonces en double, obsolètes ou trompeuses en ligne, d'autant plus que près de 30% des maisons de luxe n'apparaissent jamais sur le marché public. Les agents du vendeur représentent les intérêts du vendeur, pas ceux de l'acheteur. Même demander des informations sur une propriété peut entraîner l'enregistrement par un agent du vendeur comme leur « client » sans votre consentement.
Avec Baerz Property Finders & Advisors, vous évitez entièrement tous ces pièges. Nous travaillons uniquement en votre nom, offrant une représentation indépendante, des conseils clairs et un accès à toutes les propriétés disponibles, y compris les opportunités hors marché que d'autres ne voient jamais.

Intéressé par un conseiller personnel en immobilier ?

Nous vous montrons toutes les maisons disponibles en un seul endroit. N'hésitez pas à nous contacter pour savoir comment nous pouvons répondre à vos besoins et protéger vos intérêts exclusivement.

Caractéristiques

Transfert de propriété
Prix demandé
€ 1.250.000 k.k.
Statut
beschikbaar
Acceptation
in overleg
Construction
Type de maison
Herenhuis
Type de bâtiment
hoekwoning
Période de construction
1898
Classe énergétique
B
Type de toit
zadeldak
Chambres
7
Salles de bain
3
Surfaces et volume
Surface habitable
237 m2
Autre espace intérieur
0 m2
Espace extérieur attenant au bâtiment
38 m2
Espace de stockage externe
14 m2
Volume en mètres cubes
972 m3
Superficie du terrain
113 m2
Installations
Aan rustige weg
In centrum
Open ligging
Baerz & Co Property Brochure

Brochure

Vidéos

Van Daal Makelaardij

Voldersgracht 33
2611 ED Delft

janpaul@vandaalmakelaardij.nl
+31 (0)15 - 212 73 00

www.vandaalmakelaardij.nl

Demande d'information / de visite

Jan Paul van Daal profile image
Jan Paul van Daal
Real estate agent

Acheter une propriété de luxe à Delft

Delft se distingue par son héritage artistique, son art de vivre raffiné et son urbanisme d’excellence. La ville attire une clientèle sophistiquée et propose des résidences personnalisées, des services exclusifs et une dynamique internationale.