Ons kantoor is lid van Baerz & Co Luxury Homes; een internationaal platform dat exclusieve woningmakelaars met elkaar verbindt. Neem contact op met ons secretariaat voor meer informatie over het landelijke aanbod, waarvan u hieronder een selectie kunt bekijken.

NES
Soarremoarre 1 - 8494 NA
Países Bajos

Ellen Schoneveld profile image
Ellen Schoneveld
Real Estate Agent
€745,000 k.k.
Superficie habitable
159m2
Tamaño del terreno
2300m2
Dormitorios
3

Descripción

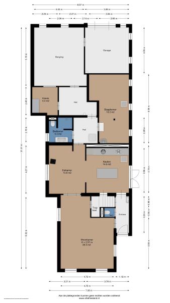
Farmhouse Nes Países Bajos ofrece un refugio discreto en perfecta armonía con el paisaje frisón. Esta casa tradicional frisona, catalogada a nivel nacional y datada en 1764, se alza silenciosa entre prados cerca de Akkrum, con 159 m² de superficie habitable en una parcela privada de 2.300 m². Reformada cuidadosamente para la vida contemporánea, la casa de campo dispone de tres dormitorios y un baño, acristalamiento doble, aislamiento y paneles solares, respetando la tradición y garantizando el confort diario.

En la planta baja, le da la bienvenida un elegante vestíbulo, una cocina moderna instalada en 2025 y puertas francesas que se abren a una terraza orientada al sur bañada de luz de jardín. El comedor conectado fluye hacia un salón con ventanas de seis paneles, enmarcando las vistas de un árbol maduro en el jardín delantero. La suite principal en planta baja, dotada de ventanas tipo establo y su propia zona de estar, crea un espacio íntimo y apacible, con suelos de madera blanca presentes en toda la vivienda.

La planta superior alberga dos dormitorios iluminados por claraboyas, mientras que la amplia zona trasera integra lavandería, garaje y trastero polivalente con grandes puertas de establo aptas para vehículos de gran tamaño. Varias dependencias, una caseta de jardín con taller y recintos para animales amplían el conjunto, brindando posibilidades de vida, trabajo o incluso actividades de hospitalidad.

Accediendo a través de un portón eléctrico, el jardín arbolado cuenta con terrazas, una zona vallada ideal para niños o mascotas y un huerto, configurando un ambiente privado y acogedor. Las vistas panorámicas sobre los pastos de Frisia enmarcan una vida dedicada al ciclismo, la navegación y el apacible ritmo rural neerlandés. Nes se encuentra a pocos minutos de los servicios y el transporte de Akkrum, combinando tranquilidad rural con accesibilidad. Farmhouse Nes Países Bajos representa una rara conjunción de origen, privacidad y elegancia rural.

Explora Nes con Baerz, Tu Buscador y Asesor Personal de Propiedades de Confianza

Negociadores expertos y acceso confidencialNavegar el mercado de Nes requiere experiencia local y relaciones establecidas. Los asesores brindan acceso a propiedades fuera del mercado y acompañan durante todo el proceso de adquisición. Su conocimiento cubre negociaciones sensibles y revisiones exhaustivas, protegiendo intereses de ambas partes. Para inversores extranjeros, los asesores gestionan asuntos regulatorios y garantizan privacidad en cada etapa.

Evita los errores comunes

Los compradores internacionales a menudo pierden tiempo valioso en listados en línea duplicados, desactualizados o engañosos, especialmente porque casi el 30% de las casas de lujo nunca aparecen en el mercado público. Los agentes del vendedor representan los intereses del vendedor, no los del comprador. Incluso solicitar información sobre una propiedad puede resultar en que un agente del vendedor te registre como su “cliente” sin tu consentimiento.
Con Baerz Property Finders & Advisors, evitas por completo todos estos errores. Trabajamos únicamente en tu nombre, ofreciendo representación independiente, orientación clara y acceso a todas las propiedades disponibles, incluidas oportunidades fuera del mercado que otros nunca llegan a ver.

¿Interesado en un Asesor Personal de Propiedades?

Te mostramos todas las casas disponibles en un solo lugar. No dudes en contactarnos para saber cómo podemos satisfacer tus necesidades y proteger tus intereses exclusivamente.

Características

Paneles solares
Transferencia de propiedad
Precio de venta
€ 745.000 k.k.
Estado
verkocht onder voorbehoud
Aceptación
in overleg
Construcción
Tipo de casa
Woonboerderij
Tipo de edificio
vrijstaande woning
Periodo de construcción
1764
Tipo de tejado
zadeldak
Dormitorios
3
Baños
1
Superficies y Volumen
Superficie habitable
159 m2
Otro espacio interior
39 m2
Espacio de almacenamiento externo
64 m2
Volumen en metros cúbicos
695 m3
Tamaño del terreno
2300 m2
Instalaciones
Rookkanaal
Dakraam
Glasvezel kabel
Zonnepanelen
Natuurlijke ventilatie
Aan water
Aan rustige weg
Vrij uitzicht
Beschutte ligging
Landelijk gelegen
Baerz & Co Property Brochure

Folleto

Vídeos

Villa Friesland Makelaardij

Lange Marktstraat 1
8911 AD Leeuwarden

info@villafriesland.nl
+31 (0)58 - 23 006 23

www.villafriesland.nl

Solicitud de información / Visita

Ellen Schoneveld profile image
Ellen Schoneveld
Real Estate Agent

Comprar una propiedad de lujo en Nes

Nes reúne vida rural refinada y riqueza cultural, brindando viviendas de lujo para familias y personas que valoran privacidad y tradición. La comunidad selecta, los servicios personalizados y el ambiente internacional completan una experiencia de vida única.