Ons kantoor is lid van Baerz & Co Luxury Homes; een internationaal platform dat exclusieve woningmakelaars met elkaar verbindt. Neem contact op met ons secretariaat voor meer informatie over het landelijke aanbod, waarvan u hieronder een selectie kunt bekijken.

ELST
De Oude Weg 29 - 3922 GB
Países Bajos

Wistik Zonnenberg profile image
Wistik Zonnenberg
Register Makelaar Taxateur/ Eigenaar
€984,000 k.k.
Superficie habitable
158m2
Tamaño del terreno
700m2
Dormitorios
4

Descripción

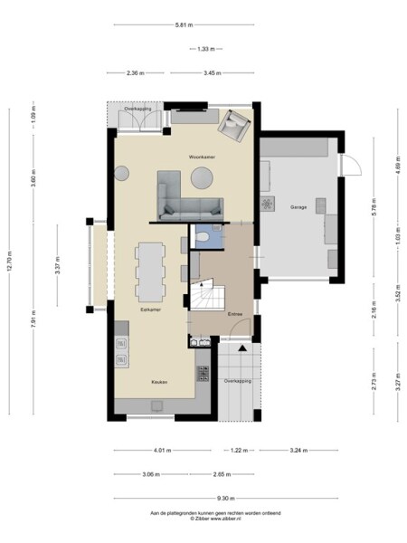
La casa independiente Elst ofrece un moderno y apacible refugio familiar en De Oude Weg 29, destacándose por sus 158 m² de versátil espacio habitable. Esta vivienda unifamiliar, construida en 2014, se ubica en una parcela de 700 m² lindante con las extensas llanuras de inundación, brindando vistas despejadas y una rara sensación de amplitud. Al entrar, una entrada privada conduce a un espacioso vestíbulo, iluminado de forma natural y conectado intuitivamente con cada ambiente principal, incluido el garaje integrado.

El salón, orientado hacia la vegetación, es luminoso y acogedor, enmarcado por grandes ventanales y puertas francesas que dan acceso directo al jardín orientado al suroeste. Aquí, los terrenos ajardinados invitan a reuniones privadas o momentos de tranquilidad, contando con una terraza cubierta ideal para el ocio o el teletrabajo. La cocina de planta abierta, equipada con electrodomésticos de alta gama y una encimera en L, se sitúa en el corazón de la vivienda, facilitando la vida cotidiana y la recepción de invitados.

En la primera planta, cuatro amplios dormitorios ofrecen flexibilidad como suites familiares, espacios de trabajo o alojamiento para invitados. El baño principal cuenta con bañera, ducha a ras de suelo y acabados refinados. Arriba, el desván ofrece espacio de almacenamiento adicional, mientras que el garaje aislado aporta funcionalidad. La vida sostenible está asegurada con 20 paneles solares, aislamiento integral y certificación energética APLUS en toda la propiedad.

Esta casa independiente en Elst brinda acceso inmediato a servicios locales, colegios y zonas de esparcimiento. La conectividad de fibra óptica, la ventilación mecánica y detalles cuidadosamente seleccionados como persianas enrollables y marcos de madera en ventanas completan la sensación de confort e integridad. Aquí, la arquitectura atemporal y la serenidad de la vida en pueblo neerlandés se fusionan en un entorno ideal para quienes valoran la privacidad, la luz y la sofisticación discreta.

Explora Elst con Baerz, Tu Buscador y Asesor Personal de Propiedades de Confianza

Compradores y vendedores exigentes confían en asesores expertos, que gestionan transacciones públicas y privadas con gran discreción. Su comprensión del patrimonio, la zonificación y la negociación garantiza la mejor elección y condiciones. El acceso exclusivo y el asesoramiento estratégico son clave en un mercado tan selectivo.

Evita los errores comunes

Los compradores internacionales a menudo pierden tiempo valioso en listados en línea duplicados, desactualizados o engañosos, especialmente porque casi el 30% de las casas de lujo nunca aparecen en el mercado público. Los agentes del vendedor representan los intereses del vendedor, no los del comprador. Incluso solicitar información sobre una propiedad puede resultar en que un agente del vendedor te registre como su “cliente” sin tu consentimiento.
Con Baerz Property Finders & Advisors, evitas por completo todos estos errores. Trabajamos únicamente en tu nombre, ofreciendo representación independiente, orientación clara y acceso a todas las propiedades disponibles, incluidas oportunidades fuera del mercado que otros nunca llegan a ver.

¿Interesado en un Asesor Personal de Propiedades?

Te mostramos todas las casas disponibles en un solo lugar. No dudes en contactarnos para saber cómo podemos satisfacer tus necesidades y proteger tus intereses exclusivamente.

Características

Paneles solares
Garaje
Transferencia de propiedad
Precio de venta
€ 984.000 k.k.
Estado
Available
Aceptación
In Concert
Referencia
07950
Construcción
Tipo de casa
Single Family House
Tipo de edificio
Detached House
Periodo de construcción
2014
Calificación energética
A+
Tipo de tejado
front gable
Dormitorios
4
Baños
1
Superficies y Volumen
Superficie habitable
158 m2
Otro espacio interior
26 m2
Espacio exterior adjunto al edificio
14 m2
Volumen en metros cúbicos
682 m3
Tamaño del terreno
700 m2
Instalaciones
Balcony
Fibreopticcable
Garage
Garden
Internetconnection
Rollerblinds
Solarpanels
Storageroom
Ventilation
Baerz & Co Property Brochure

Folleto

Vídeos

Zonnenberg Makelaardij

Kerkewijk 108
3904 JG Veenendaal

info@zonnenbergmakelaardij.nl
+31 318 559600

www.zonnenbergmakelaardij.nl

Solicitud de información / Visita

Wistik Zonnenberg profile image
Wistik Zonnenberg
Register Makelaar Taxateur/ Eigenaar

Comprar una propiedad de lujo en Elst

Elst reúne privacidad, servicios de primera, y una comunidad acogedora. Ofrece ambiente histórico y comodidades modernas, ideal para compradores internacionales que buscan seguridad, lujo discreto y conexiones europeas.