Villa Bergen NH, con vistas a la campiña, ofrece una rara síntesis de calidad, entorno y sostenibilidad. Ubicada en la tranquila Nesdijk, esta villa de 326 m² se asienta sobre una generosa parcela de 1.301 m², brindando interiores silenciosos y vistas despejadas sobre el pólder circundante. Cada detalle de la vivienda, desde los suelos continuos de hormigón calefactado hasta la cocina de nogal a medida y la escalera de diseño, transmite elegancia y mesura.
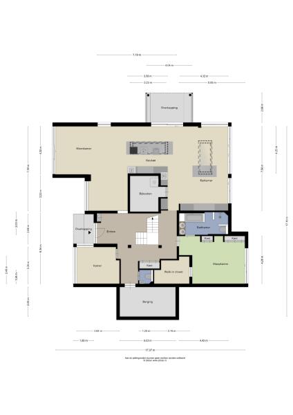
La planta baja, luminosa y espaciosa, presenta un vestíbulo de entrada hecho a medida, un acogedor salón con magníficas vistas y una cocina equipada con electrodomésticos de alta gama, un armario climatizado para vinos y un elegante muro arquitectónico de nogal que oculta una práctica zona de servicio. La suite principal, también en la planta baja, dispone de vestidor y un baño tipo spa con ducha a ras de suelo, bañera, doble lavabo, calefacción por suelo radiante y acceso directo a la serenidad del jardín.
En la planta superior se encuentran tres dormitorios, un despacho versátil con vistas panorámicas, sala de yoga y un altillo con un diseño lúdico, ideales tanto para la vida familiar como para actividades creativas. Un segundo baño completo, una lavandería independiente y detalles cuidadosamente pensados en todo el inmueble aportan sensación de confort estudiado.
El exterior garantiza una privacidad absoluta con sol y sombra, un invernadero adaptado para descansar junto a la chimenea exterior y un garaje independiente de piedra de 50 m² con capacidad para dos vehículos. Dos accesos para coche y dos puntos de recarga para vehículos eléctricos aportan comodidad tanto a la familia como a los invitados.
Totalmente renovada y libre de gas, esta villa ofrece eficiencia energética clase A_PPP, más de 50 paneles solares, triple acristalamiento HR en marcos de aluminio con acabado madera y cristales reflectantes para mayor confort en verano. Cada elemento ha sido seleccionado por su durabilidad, fusionando sostenibilidad moderna y la pertenencia al paisaje abierto neerlandés. Quienes buscan una villa de lujo en venta en Bergen NH sabrán apreciar la privacidad, el estilo atemporal y la excelencia técnica que definen a esta propiedad excepcional.