Ons kantoor is lid van Baerz & Co Luxury Homes; een internationaal platform dat exclusieve woningmakelaars met elkaar verbindt. Neem contact op met ons secretariaat voor meer informatie over het landelijke aanbod, waarvan u hieronder een selectie kunt bekijken.

'S-GRAVENHAGE
Hellingkade 82 - 2583 WC
Países Bajos

Irma Postma profile image
Irma Postma
Real estate agent
€800,000 k.k.
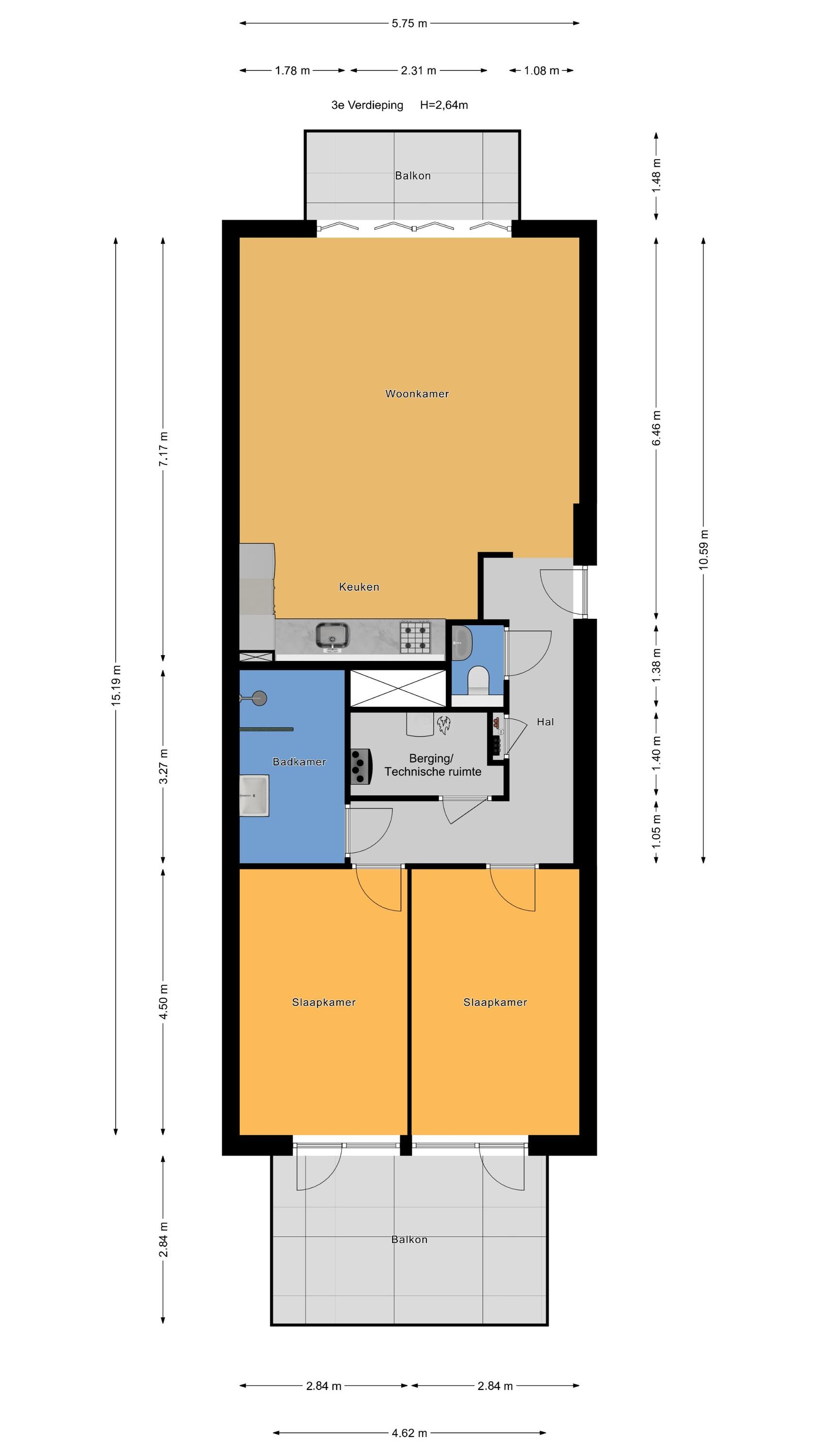
Superficie habitable
86m2
Tamaño del terreno
N/A
Dormitorios
2

Descripción

Apartment Scheveningen ofrece 86 m² de refinado estilo de vida costero, ubicado junto al puerto con impresionantes vistas al mar. Esta residencia de nueva construcción con dos dormitorios, situada en la tercera planta, logra un equilibrio de vitalidad y privacidad, con grandes ventanales y puertas correderas que inundan de luz panorámica el espacio y transmiten el ritmo del agua bajo tus pies. Las vistas al puerto y la energía del paseo marítimo de Scheveningen conectan la vida cotidiana con los continuos cambios de humor del mar.

El espacio de estar de concepto abierto se organiza en torno a una cocina NEXT-125 con encimera de material compuesto y electrodomésticos integrados, incluyendo un Quooker, placa de inducción con ventilación integrada y horno combinado. La calefacción y refrigeración por suelo radiante llegan a todas las estancias del apartamento, alcanzando la eficacia energética de la etiqueta A+++. Todas las habitaciones, salvo el espacio técnico, desprenden confort. El balcón trasero, orientado al sur, invita a disfrutar de tranquilos momentos con vistas a un patio compartido y es accesible desde ambos dormitorios.

Los residentes se benefician de aparcamiento privado, con la opción de instalar un punto de recarga individual para coche eléctrico, así como de un almacén de bicicletas común en el interior con puntos de recarga. Totalmente aislado, sin gas y equipado con una bomba de calor de propiedad, este apartamento se sitúa a la vanguardia de la sostenibilidad. Cerca, las boutiques de Frederik Hendriklaan, el casco histórico de La Haya y los vibrantes restaurantes y playas del puerto refuerzan el exclusivo estilo de vida que solo un apartamento de lujo en venta en Scheveningen puede ofrecer.

Características

Transferencia de propiedad
Precio de venta
€ 800.000 k.k.
Estado
verkocht onder voorbehoud
Aceptación
in overleg
Construcción
Tipo de casa
Portiekflat
Tipo de edificio
appartement
Periodo de construcción
2024
Calificación energética
A+++
Tipo de tejado
plat dak
Dormitorios
2
Baños
1
Superficies y Volumen
Superficie habitable
86 m2
Otro espacio interior
0 m2
Espacio exterior adjunto al edificio
18 m2
Espacio de almacenamiento externo
6 m2
Volumen en metros cúbicos
289 m3
Instalaciones
Mechanische ventilatie
Lift
Glasvezel kabel
Balansventilatie
Vrij uitzicht
Open ligging
Zeezicht
Baerz & Co Property Brochure

Folleto

Vídeos

Planos

Nelisse Makelaarsgroep

Statenlaan 128
2582 GW Den Haag

info@nelisse.nl
+31 (70) 350 14 00

www.nelisse.nl

Solicitud de información / Visita

Irma Postma profile image
Irma Postma
Real estate agent