Ons kantoor is lid van Baerz & Co Luxury Homes; een internationaal platform dat exclusieve woningmakelaars met elkaar verbindt. Neem contact op met ons secretariaat voor meer informatie over het landelijke aanbod, waarvan u hieronder een selectie kunt bekijken.

SCHOORL
Duinweg 65 - 1871 AD
Netherlands

Angeline Croonen profile image
Angeline Croonen
Real Estate Agent
€2,745,000 k.k.
Living Area
273m2
Plot Size
7454m2
Bedrooms
4

Description

To discover new worlds, you don’t have to travel far. Sometimes, the extraordinary is closer than you think. At Duinweg 65 in Schoorl, we are proud to offer a rare country house – a place where peace, history, and nature come together, allowing you to truly unwind.

A long forest path leads you to this striking property, built in 1935 using 17th-century materials and designed by architect Royaards. The house exudes character and history: robust fireplaces – currently not functional but eligible for renovation – antique elements such as solid oak beams and floors, and clay-plastered walls that create a pleasant indoor climate and promote restful sleep. Here, you experience the luxury of silence, space, and privacy, surrounded by the scent of the forest, the gentle rustling of trees, and the songs of countless birds – this is truly a bird lover’s paradise.

The generous plot of over 7,000 m² is a haven of tranquility, entirely enclosed by a moat with multiple dune streams, and landscaped with unique groups of trees in a thoughtfully designed pattern. In addition to the main house, you’ll find a separate, fully functional guest house and several charming outbuildings and covered spaces, making this property a truly unique ensemble. Whether you’re looking to relax, find inspiration, entertain guests, enjoy a cup of tea in the lovely tea pavilion, or bake a pizza in your very own clay outdoor oven – this country home offers it all.

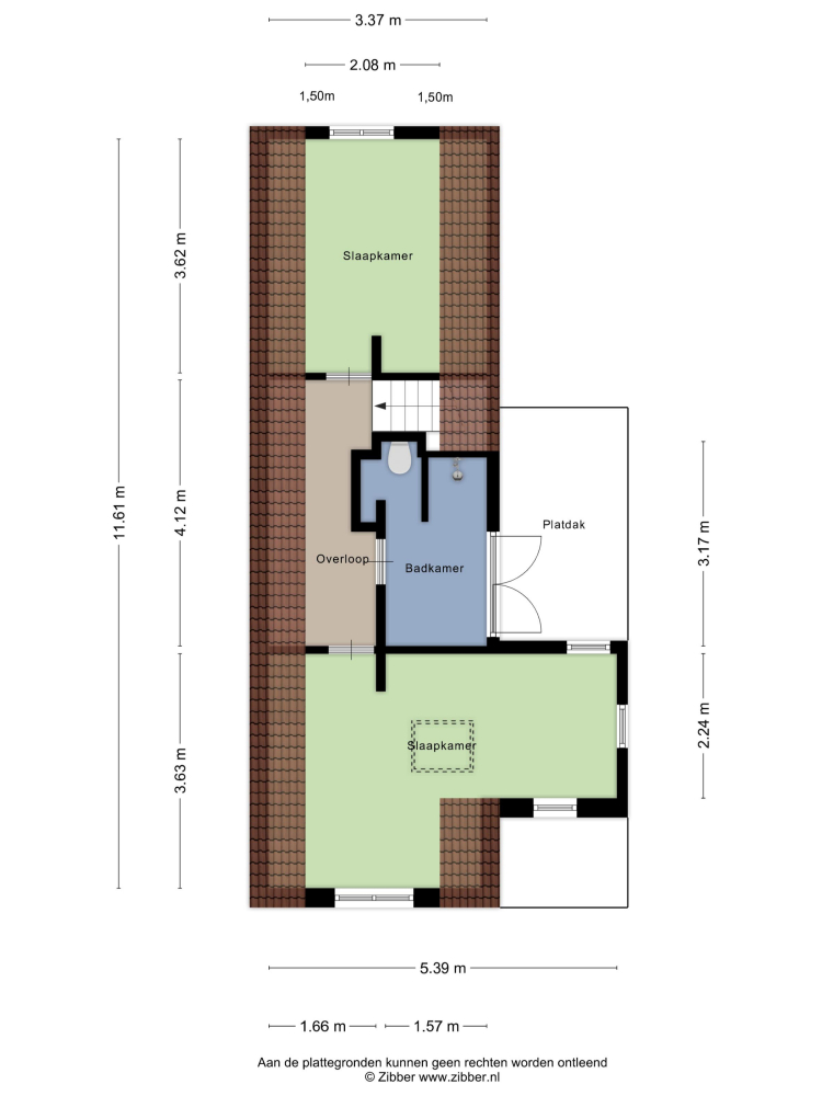
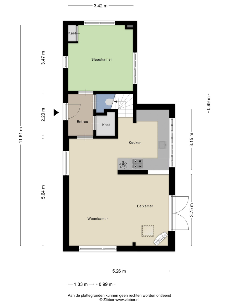
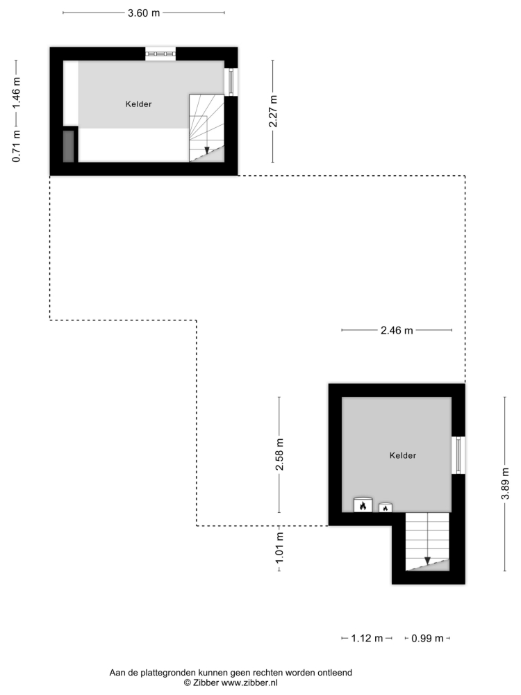
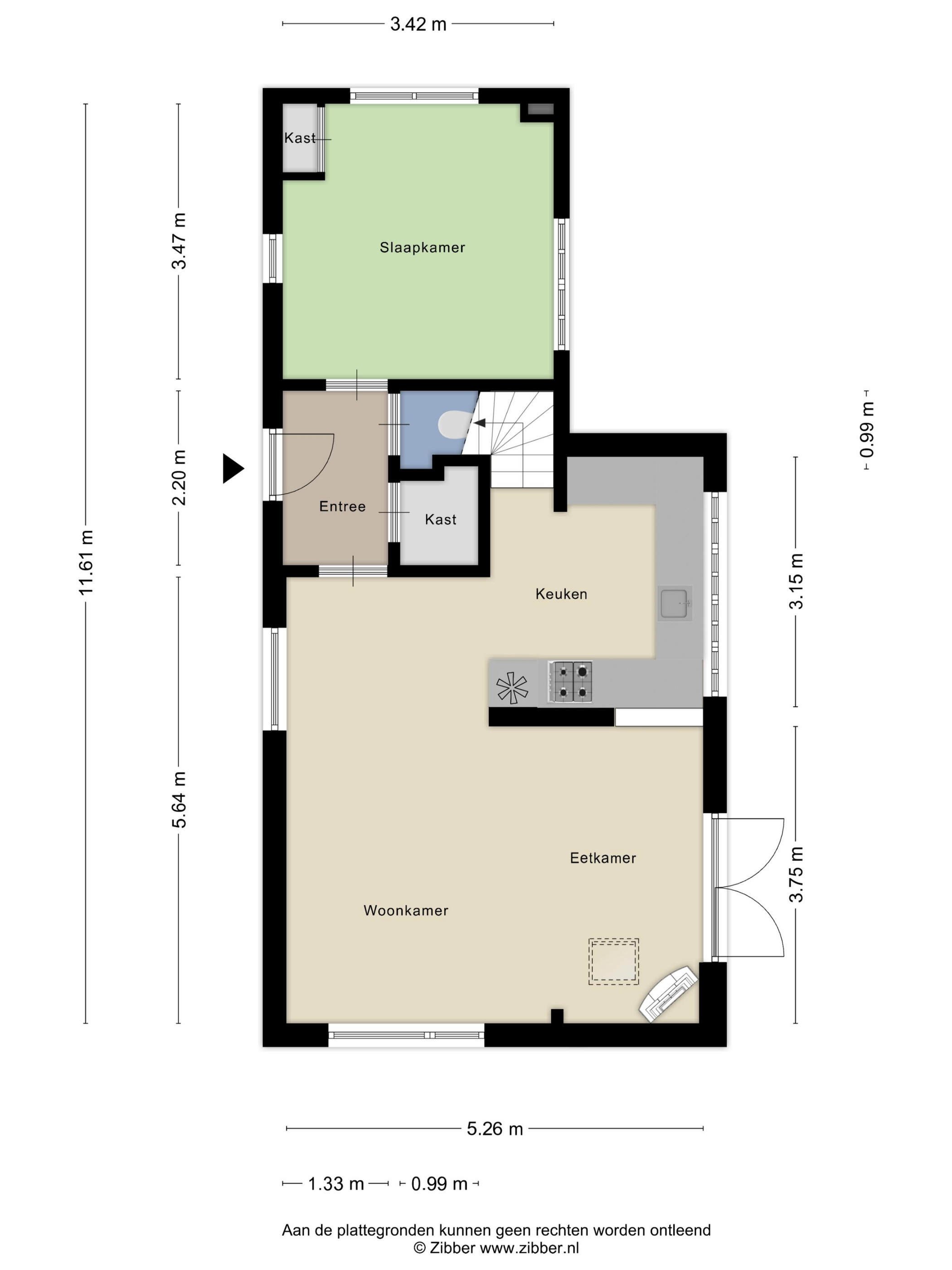
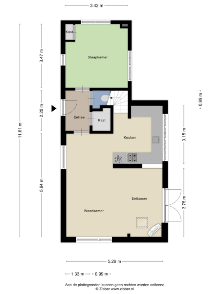
Let us take you inside the main residence. The ground floor welcomes you with a bright entrance, an open staircase, and a toilet. The kitchen, utility room, and cellar offer plenty of possibilities. The attached office is a pleasant and inspiring space. The garden-side living room features a charming fireplace, while the front living room includes a second fireplace and a raised alcove.

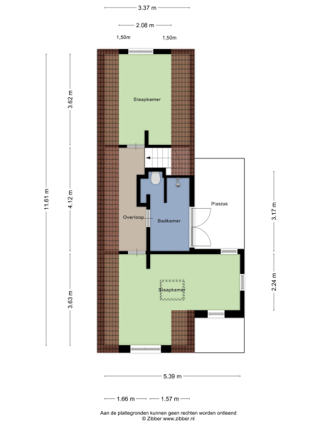
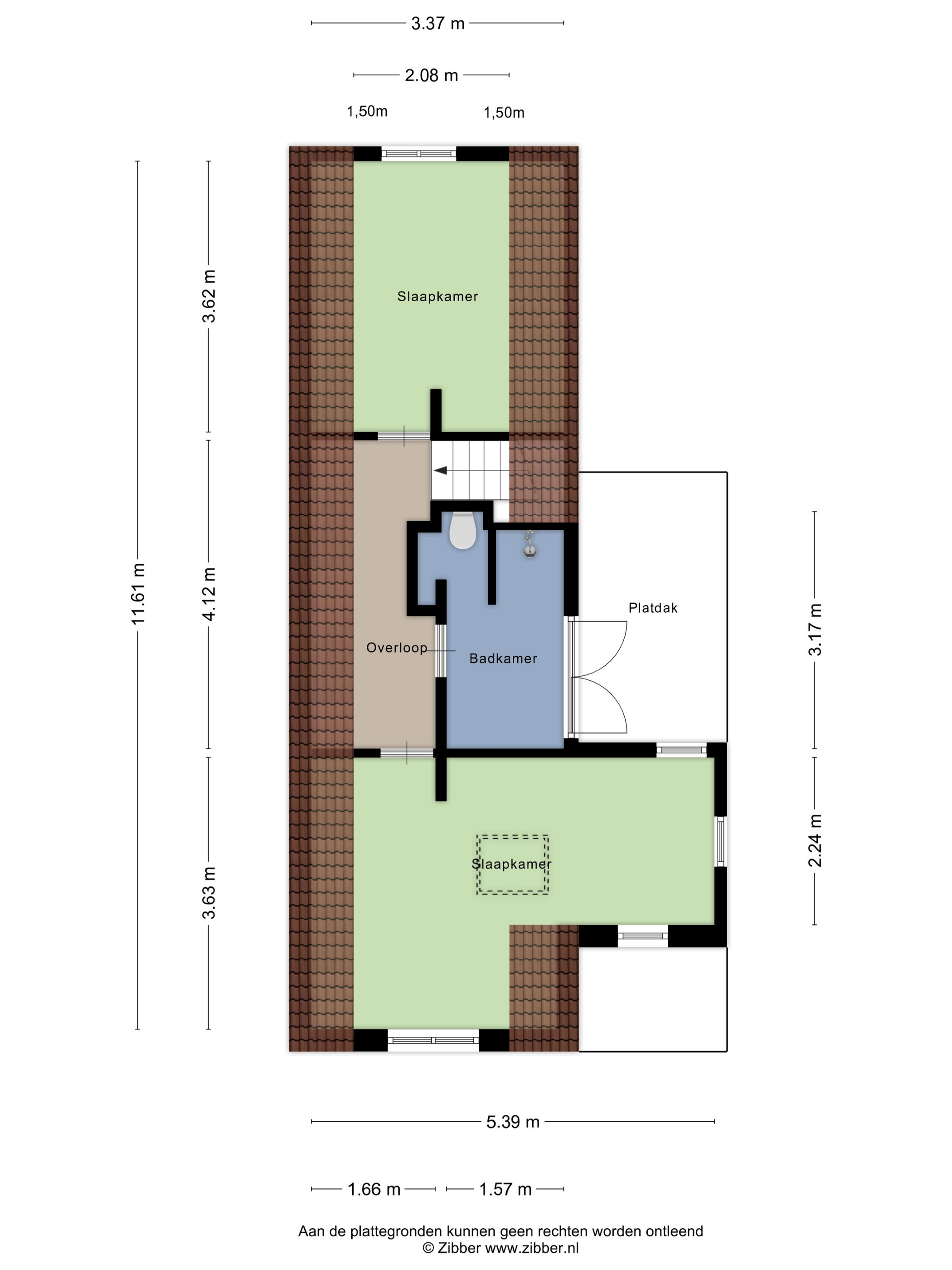
Upstairs, the spacious landing leads to two bedrooms with built-in wardrobes and a modern bathroom finished in tadelakt, complete with a toilet, bathtub, sink, and shower. It’s also wonderful to see how the original beams have been left visible, adding to the authentic atmosphere.

This is a rare opportunity to live in a place where time and nature take center stage – a unique combination of history, comfort, and freedom. A place to recharge, to enjoy, and to gain fresh perspective. Welcome home to Duinweg in Schoorl. We would be delighted to offer you a personal tour.

Highlights:

Prime location near the beach and forest

Separate guest house

Thatched roof renewed in 2008

A unique experience of serenity, space, privacy, and nature

Features

Transfer of ownership
Asking Price
€ 2.745.000 k.k.
Status
beschikbaar
Acceptance
in overleg
Construction
Kind of house
Landhuis
Building type
vrijstaande woning
Construction period
1935
Energy rating
D
Roof type
schilddak
Bedrooms
4
Bathrooms
2
Surface Areas And Volume
Living Area
273 m2
Other indoor space
17 m2
External storage space
94 m2
Volume in cubic meters
660 m3
Plot Size
7454 m2
Facilities
Tv kabel
Rookkanaal
Dakraam
Vrij uitzicht
Beschutte ligging
In bosrijke omgeving
Baerz & Co Property Brochure

Brochure

Videos

Croon Makelaars

Breelaan 41
1861 GD Bergen

info@croonmakelaars.nl
+31 (0)72 743 32 44

www.croonmakelaars.nl

Information / Viewing request

Angeline Croonen profile image
Angeline Croonen
Real Estate Agent