Baerz & Co is een landelijk samenwerkingsverband van zorgvuldig geselecteerde boutique luxury makelaars. Samen vormen wij één netwerk, met één gedeeld aanbod. De woningen die u op onze website ziet, zijn afkomstig van alle aangesloten kantoren binnen Baerz & Co. Daardoor is niet ieder object rechtstreeks door ons kantoor in verkoop, maar door een gespecialiseerde collega binnen ons netwerk. Heeft u een woning gevonden die u aanspreekt en wilt u meer informatie? Dan brengen wij u graag persoonlijk in contact met de betreffende verkoopmakelaar, zodat u direct en zorgvuldig wordt begeleid.

LEPELSTRAAT
Kerkstraat 57 - 4664 BP
Netherlands

Niels Eering profile image
Niels Eering
Real Estate Agent
€1,250,000 k.k.
Living Area
570m2
Plot Size
771m2
Bedrooms
6

Description

This remarkable property with a rich history is a listed municipal monument that has served a variety of purposes over the years. Originally a convent, it later became a girls’ school and a library, and subsequently functioned as a community support center and neighborhood hub—a place where connection and community were central. Today, the current owners have carefully and thoughtfully transformed the building into a versatile space where living and working are uniquely combined.

The ground floor features several office rooms, restrooms, and a kitchen. In addition, this level includes a spacious hall that is perfectly suited for presentations, meetings, creative workspaces, or even additional living space. The property also offers potential for retail or business use. Thanks to its practical layout and generous proportions, this floor provides a wide range of possibilities.

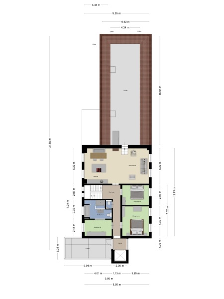
The first floor is currently arranged as a comfortable apartment. Here you will find a spacious living room with an open-plan kitchen, three bedrooms, and a modern bathroom. There is also an attic space that can be further customized as desired, for example as an additional workspace, hobby room, or bedroom.

The second floor is also used as an apartment. This level features a bright living room with a Velux balcony window, an open kitchen, and a sleeping area with an en-suite bathroom, creating a pleasant and self-contained living environment.

In 2020, the property was fully renovated and refurbished, with a strong focus on comfort and sustainability. For example, 24 solar panels were installed and several rooms are equipped with air conditioning.

The combination of history, space, and flexibility makes this property particularly suitable for a wide variety of uses. Consider living and working under one roof, a bed & breakfast (subject to municipal approval), a multi-generational home, or accommodation for extended or blended families. The property offers broad possibilities, including retail, business, and hospitality, thanks to its mixed-use zoning.

A characterful building with a story, ready for a new future!

HIGHLIGHTS:
- 14 rooms
- Multifunctional space of 125 m² with bar
- 3 kitchens
- 2 bathrooms
- 9 toilets
- 24 solar panels and 7 air conditioning units
- Alarm system with 8 cameras
- Electronic locking system with key plan
- Jeu de boules court
- 30 minutes’ drive from Antwerp, Breda, and Rotterdam

LAYOUT:
Ground floor:
Entrance hall with staircase to the first floor; plastered walls, linoleum flooring, plastered ceiling

Cloakroom

Extensive meter cupboard with residual-current circuit breakers

Two tiled toilets with hand basins

Hall / open space with plastered walls, wooden floor, suspended ceiling, and French doors to the front

Bar / kitchen area with a linear kitchen unit equipped with dishwasher, combination oven/microwave, fridge-freezer, and two separate units

Four tiled toilets, one with urinal

Storage room

Accessible toilet

Additional meter cupboard

Office / workspace I at the front with washbasin and air conditioning; plastered walls, carpeted floor, plastered ceiling

Offices II and III at the rear with air conditioning; plastered walls, carpeted floors, plastered ceilings

Internal storage room

Lift shaft with the possibility to install a lift

First floor:
Landing with fixed staircase to the second floor; fiberglass wallpaper, carpeted floor, spray-finished ceiling

Living room with air conditioning; plastered and wallpapered walls, carpeted floor, plastered ceiling; door to attic space

Open kitchen with fitted units, cooking island and bar area, composite worktop with sink, built-in induction hob with integrated extraction system, refrigerator drawer, combination oven/microwave, and dishwasher; plastered walls, vinyl flooring, plastered ceiling; steps and door to attic space

Spacious attic room on the right with potential for an additional bedroom/hobby/work room, two skylights, plastered walls, wooden floor, visible roof structure

Front middle bedroom; wallpapered walls, carpeted floor, plastered ceiling

Front left bedroom; wallpapered walls, carpeted floor, plastered ceiling

Rear right bedroom / study

Modern tiled bathroom with bathtub, walk-in shower, wall-mounted toilet, vanity unit with washbasin, cabinet with washer/dryer connections, electric underfloor heating, and mechanical ventilation

Separate tiled toilet with wall-mounted unit

Access to roof terrace

Second floor:
Landing; plastered walls, carpeted floor, plastered ceiling

Living room with Velux skylights including blackout blinds and insect screens, air conditioning, and a Velux balcony window; plastered walls, carpeted floor, visible roof structure

Open kitchen with fitted units including built-in sink, combination oven/microwave, dishwasher, and induction hob

Bedroom with air conditioning; plastered walls, carpeted floor, plastered ceiling

Tiled en-suite bathroom with walk-in shower, bathtub, and vanity unit

Laundry room with high-efficiency combi boilers

Intermediate hallway

Tiled toilet with wall-mounted unit

Outbuildings:
Internal storage

Open wooden storage for bicycles/containers

Garden:
Landscaped garden with paved terrace, decorative paving, planting borders, jeu de boules court, fully enclosed with fencing, and rear access to the parking area

Construction:
Residential building:
Traditionally built with cavity walls in brickwork, concrete ground floor, wooden upper floors, and a pitched roof covered with tiles

Open storage:
Wooden construction with decorative paving and corrugated sheet roofing

Insulation and energy:
The property features insulated walls, roof insulation, and double glazing. It is also partially equipped with air conditioning and includes no fewer than 24 solar panels

Heating and hot water:
The property is equipped with central heating. The high-efficiency combi boilers are located in the laundry room on the second floor: one boiler (Nefit, 2020) provides heating, and one (Remeha Quinta) supplies hot water

Additional features:
-Electronic locking system with key plan
-Camera system (8 units)
-Alarm system

Features

Solar panels
Air conditioning
Transfer of ownership
Asking Price
€ 1.250.000 k.k.
Status
beschikbaar
Acceptance
in overleg
Construction
Kind of house
Eengezinswoning
Building type
vrijstaande woning
Construction period
1922
Energy rating
B
Roof type
zadeldak
Bedrooms
6
Bathrooms
2
Surface Areas And Volume
Living Area
570 m2
Other indoor space
32 m2
Exterior space attached to the buildinge
32 m2
Volume in cubic meters
2231 m3
Plot Size
771 m2
Facilities
Mechanische ventilatie
Airconditioning
Dakraam
Zonnepanelen
Natuurlijke ventilatie
In centrum
In woonwijk
Baerz & Co Property Brochure

Brochure

Videos

Floor Plans

11 Makelaars - Amsterdam Noord

Mt. Lincolnweg 38 - 617
1033SN Amsterdam

info@11makelaars.nl
+31 20 20 50 208

www.11makelaars.nl

Information / Viewing request

Niels Eering profile image
Niels Eering
Real Estate Agent

Buying a Luxury Property in Lepelstraat

Lepelstraat appeals to those valuing discretion, peaceful living, and a sense of tradition, supported by expert advisory services and a close-knit community. This village attracts global buyers seeking refined homes and a cultivated Dutch countryside lifestyle.