Baerz & Co is een landelijk samenwerkingsverband van zorgvuldig geselecteerde boutique luxury makelaars. Samen vormen wij één netwerk, met één gedeeld aanbod. De woningen die u op onze website ziet, zijn afkomstig van alle aangesloten kantoren binnen Baerz & Co. Daardoor is niet ieder object rechtstreeks door ons kantoor in verkoop, maar door een gespecialiseerde collega binnen ons netwerk. Heeft u een woning gevonden die u aanspreekt en wilt u meer informatie? Dan brengen wij u graag persoonlijk in contact met de betreffende verkoopmakelaar, zodat u direct en zorgvuldig wordt begeleid.

LANDSMEER
Langhuislaan 19 - 1121 RL
Netherlands

€1,498,011
Living Area
233m2
Plot Size
395m2
Bedrooms
5

Description

Langhuislaan 19 in Landsmeer

Call now to make an appointment or to request a brochure of this fantastic luxury townhouse in Luijendijk-Zuid! Just 2 minutes from the Amsterdam Ring A10 and located on navigable water!

This richly detailed townhouse (2016) stands out with its high gutters, masonry pilasters, French balcony, and characteristic truncated hipped roof. Also striking is the space and pleasant layout on all floors, including 5 bedrooms and 2 bathrooms. Ideal for living with a (larger) family. This is also reflected on the ground floor in the generously sized kitchen-diner at the front of the house, featuring a large sink/cooking island and a wall with built-in appliances.

The living room at the garden side is cozy, with a striking cinewall and fireplace. From here, you walk through the double doors into the garden with a very large porch. Perfect for long evenings and outdoor gatherings on the terrace. Built-in trampoline and a swing for the kids. With a glass of wine in hand, you can keep a (small) eye on things. The garden cushions and those of your sloop can be neatly stored in the wooden shed. And that sloop? You simply moor it directly behind the house. On a beautiful summer day, you can sail straight to Amsterdam.

Or do you prefer nature? The nature/recreation area Het Twiske is literally around the corner. The same goes for the sports park and the center of Landsmeer, with 2 supermarkets, well-known retail chains, and pleasant specialty shops, including a liquor store—for your wine supply on the terrace or in the sloop.

And the kids? They still play outside here, right in front of the house. They attend a school of choice, from Montessori education to public schooling. Childcare without waiting lists. And after school, there are plenty of options in music, art, or sports. At swimming pool De Breek, they take swimming lessons and enjoy an unforgettable childhood.

Layout:

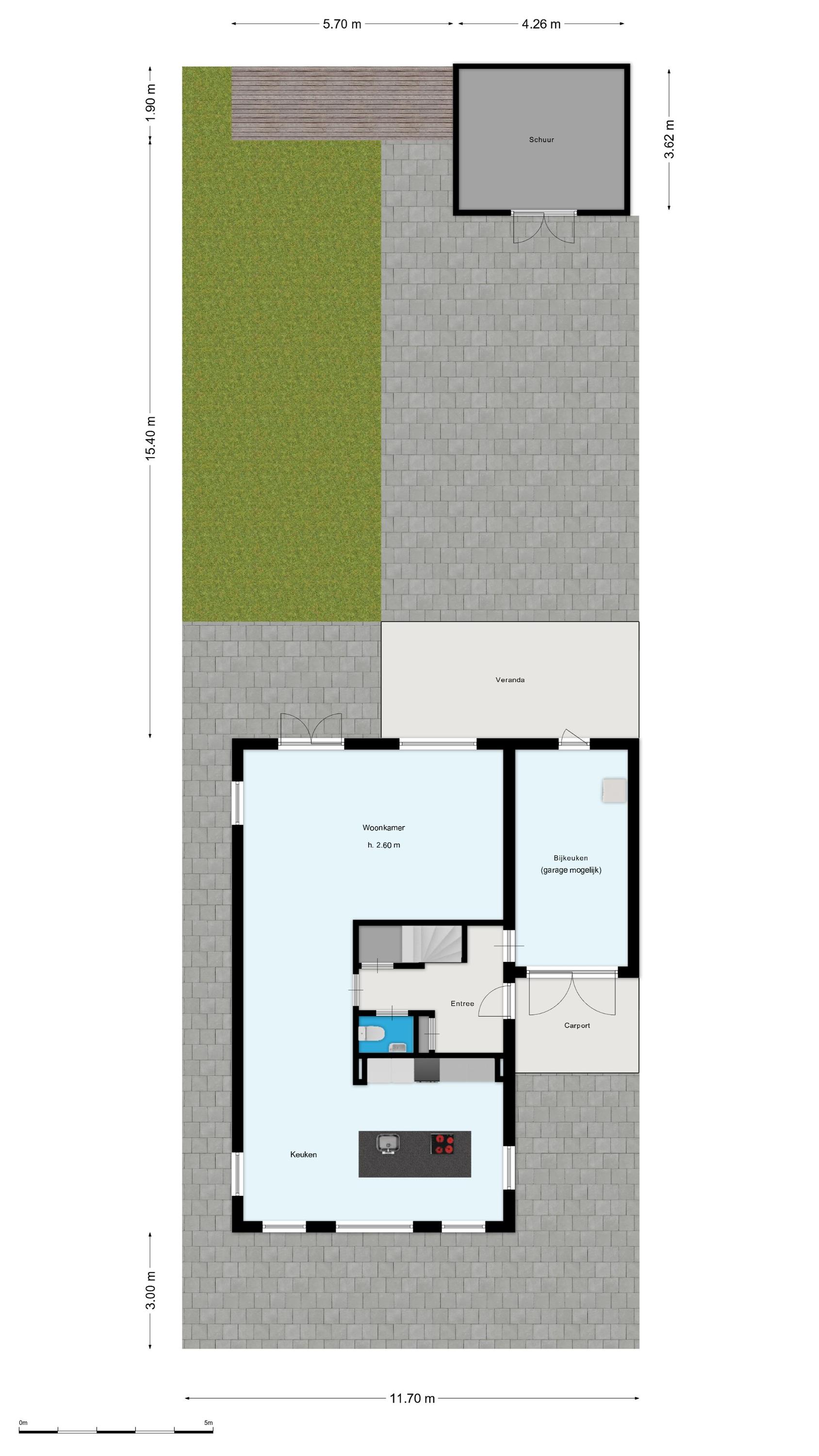
Ground floor:
Through the entrance, you enter the hall with meter cupboard, toilet, and staircase to the upper floor. From the hall, you have access to the spacious and bright living room, located at the rear of the house, with French doors opening onto the veranda and garden.

At the front is the generous kitchen-diner, equipped with a cooking island and various built-in appliances. Adjacent to the living room is the garage (currently used as a very pleasant utility/laundry room), also with a door to the outside and access to the carport.

First floor:
The landing provides access to three spacious bedrooms and the bathroom. Two bedrooms are located at the rear and one large bedroom at the front.

The luxury bathroom is fully equipped with a bathtub, shower, double sink, and toilet. There is also a separate room set up as a walk-in closet.

Second floor:
Via the fixed staircase, you reach the second floor. Here you will find two more bedrooms, both with natural light via dormers/roof windows.

On the landing, there is additional storage space and a second bathroom, equipped with a bathtub, sink, and toilet.

Noteworthy:

Detached living on navigable water
Detailed finish with high-quality materials
Sustainable home with good insulation and 35 solar panels
Spacious kitchen-diner with cooking/sink island
Parking on private property
Plot FREEHOLD LAND 395 m²
Built-in lighting inside & outside
Ideally located relative to Amsterdam and nature area Het Twiske
5 bedrooms, 2 bathrooms
Air conditioning, underfloor heating
Garden with lots of privacy
Fantastic luxury townhouse in Luijendijk-Zuid!

Features

Solar panels
Alarm system
Air conditioning
Transfer of ownership
Asking Price
€ 1.498.011
Status
verkocht onder voorbehoud
Acceptance
in overleg
Construction
Kind of house
Herenhuis
Building type
vrijstaande woning
Construction period
2016
Energy rating
A++
Roof type
schilddak
Bedrooms
5
Bathrooms
2
Surface Areas And Volume
Living Area
233 m2
Other indoor space
0 m2
Exterior space attached to the buildinge
28 m2
External storage space
15 m2
Volume in cubic meters
843 m3
Plot Size
395 m2
Facilities
Mechanische ventilatie
Alarminstallatie
Tv kabel
Airconditioning
Frans balkon
Dakraam
Cctv
Zonnepanelen
Aan water
Aan rustige weg
In woonwijk
Aan vaarwater
Baerz & Co Property Brochure

Brochure

Videos

11 Makelaars - Amsterdam

Mt. Lincolnweg 38 - 617
1033SN Amsterdam

info@11makelaars.nl
+31 20 20 50 208

www.11makelaars.nl

Information / Viewing request

Niels Eering profile image
Niels Eering
Real Estate Agent

Buying a Luxury Property in Landsmeer

Landsmeer embodies harmonious living with access to premier services, natural beauty, and a sophisticated community. Its blend of privacy and cosmopolitan connection attracts a discerning, globally minded clientele.