Baerz & Co is een landelijk samenwerkingsverband van zorgvuldig geselecteerde boutique luxury makelaars. Samen vormen wij één netwerk, met één gedeeld aanbod. De woningen die u op onze website ziet, zijn afkomstig van alle aangesloten kantoren binnen Baerz & Co. Daardoor is niet ieder object rechtstreeks door ons kantoor in verkoop, maar door een gespecialiseerde collega binnen ons netwerk. Heeft u een woning gevonden die u aanspreekt en wilt u meer informatie? Dan brengen wij u graag persoonlijk in contact met de betreffende verkoopmakelaar, zodat u direct en zorgvuldig wordt begeleid.

GOIRLE
De Vloed 20 - 5051 AV
Netherlands

Niels Eering profile image
Niels Eering
Real Estate Agent
€1,595,000 v.o.n.
Living Area
266m2
Plot Size
902m2
Bedrooms
5

Description

Fantastic, modern, luxury villa in a great location in the new “Land van Anna” neighborhood in Goirle. This luxury villa is the most beautiful of all 10, situated completely detached at the end of the row, in a very quiet location and directly on the edge of the nature reserve.

This modern and luxurious villa stands in one of the most beautiful spots in Goirle, in a prime location in the newly developed “Land van Anna” neighborhood – just a few minutes' walk from nature and around the corner from the center of Goirle. This gem in the greenery has a spacious private plot of 902 m² and is situated in the area along the Leij, featuring an extra-deep garden.

The private greenery transitions into the communal flood garden, which extends to the maintenance path along the Nieuwe Leij. This flower-rich meadow forms a beautiful transition to the nature of the Beekdal and the Gorp en Roovert estate. A (wooden) boardwalk leads you to your private ‘flood raft’: a floating wooden terrace above the flood garden. After an adventurous ‘walk’ or a hard day’s work, you will find your own quiet spot here by the beautiful Beekdal.

The flood garden on the edge of Land van Anna is a communal piece of hay meadow that belongs exclusively to the ten detached villas and is occasionally flooded by excess (rain)water in the Nieuwe Leij. This creates the botanical richness of a dry to wet flower-rich meadow.

General
Living space: approx. 266 m2
Year of construction: 2025
Volume: approx. 987 m³
Plot area: 902 m²
Energy label: A+++
Acceptance: immediately

This top-insulated, energy-efficient villa features triple glazing. Additionally, the home is equipped with underfloor heating on every floor and is future-proof, with a heating system powered by a ground source heat pump. The home is completely gas-free. The heat pump allows you to heat the home and, on warm days, also cool it. The home is also equipped with a heat recovery system, ensuring a comfortable indoor climate with filtered clean air.

With this XL villa, you get a living room featuring a ‘glass’ extension. The XL living room is twelve meters wide and partly seven to eight meters deep, and features almost panoramic windows and a house-wide terrace. Whether you are sitting on the terrace or on the sofa, you always enjoy a breathtakingly beautiful view of the Beekdal and nature. Upstairs, you also have plenty of space. There are three spacious bedrooms on the first floor. And as you might expect, the master bedroom has an en-suite bathroom. Under the atmospheric sloping roof on the second floor, there are two more bedrooms and a second bathroom.

The villa has now been completed, after which it can be furnished to your own taste. It was decided to deliver the sanitary facilities as shells, to provide the villa without a kitchen, and also not to supply interior doors or door frames. This is to allow the eventual owner to determine the atmosphere themselves, so that they can put their own stamp on this fantastic villa. Layout

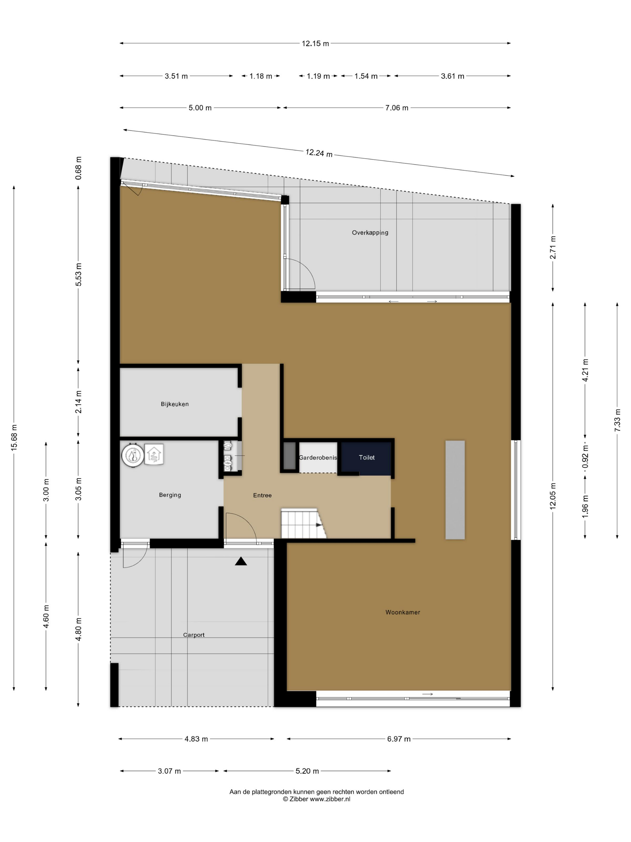
Ground floor
Entrance, hall with meter cupboard, internally accessible storage (for bicycles, among other things)/technical room, toilet, and cloakroom area. There is also a practical utility room with connections for laundry appliances and additional storage/pantry space, as well as the staircase to the first floor.

Beautiful, wide living room approximately 101m² (including kitchen) with a width of no less than 12 meters. This amazing space with lots of glass at the rear offers plenty of living space and a phenomenal view. A sliding door provides access to a large terrace with a veranda.

There is a beautiful mezzanine, and the kitchen can still be furnished according to your own preferences. Connections for a large cooking and sink island are already provided.

First floor
Adjacent to the spacious landing with a beautiful mezzanine are three bedrooms, a separate toilet, and a bathroom. A beautiful master bedroom located at the rear with a spectacular view, approximately 29m² in size, with an en-suite bathroom. The bathroom can still be furnished according to your own preferences. At the front, there are two other spacious bedrooms of approximately 16m² and approximately 14m².

Second floor
A spacious landing is accessible via a fixed staircase, providing access to two bedrooms and a second bathroom.

One bedroom is located at the front of the villa, and the second bedroom at the rear.

Second bathroom that can still be furnished according to your own preferences.

The garden
The surrounding garden can be designed entirely freely. This also applies to the paving. The property itself comes with a spacious garden, which faces the sunny southwest. Connections are available for an outdoor kitchen and potentially an outdoor swimming pool. The beauty of this garden is that it flows naturally into the communal flood garden.

Land van Anna - history
Life is good in Land van Anna. A beautiful, green residential area situated on a piece of industrial heritage in Goirle. Textiles were woven here for over a century and a half. Here, village coziness meets the beautiful nature of the Gorp en Roovert Estate and the Nieuwe Leij stream valley. Land van Anna stands for high-quality living and an active and healthy lifestyle. You are in contact with nature and experience the seasons. You unwind as soon as you step out the door and walk along the green carpet or the Nieuwe Leij. Nearby are cycling and walking routes past fens, heathland, and forests. Children play, discover, and grow up with nature.

Special features
- This villa has already been completed; you can design your dream kitchen and bathrooms yourself.
- New, energy-efficient, and gas-free villa situated in a prime location.
- A total of 5 bedrooms and 2 bathrooms.
- Fully insulated and equipped with a ground source heat pump.
- 3 solar panels.
- Adjacent to the private garden is a share in the adjoining collective nature garden/flood garden containing a private deck terrace.
- Connections are available for an outdoor kitchen and a (future) outdoor swimming pool.
- Parking on private, enclosed grounds in front of the house, equipped with a charging facility for an electric car. The beautiful gate is fully electric and can be operated both via a portal in the hall and via a mobile remote control.
- For a sale, the standard purchase agreement model established by the Dutch Association of Real Estate Agents (NVM), the Consumers' Association (Consumentenbond), and the Homeowners' Association (Vereniging Eigen Huis) is used. This purchase agreement standardly includes the obligation for the buyer to deposit a security deposit or provide a bank guarantee amounting to 10% of the purchase price.
- The above information has been compiled with the utmost care; however, no rights can be derived from it.

Curious about this amazing home? Let yourself be inspired and surprised. Make an appointment for a viewing with Marleen de Bekker of Finesse Makelaardij; you can find more info about this specific property at www.finesse-makelaardij.nl. Additionally, we recommend visiting www.landvananna.nl for more information about this beautiful new residential area, Land van Anna, developed by Wilma Wonen/CRA Vastgoed and built by Huybregts Relou.

Features

Solar panels
Transfer of ownership
Asking Price
€ 1.595.000 v.o.n.
Status
beschikbaar
Acceptance
direct
Construction
Kind of house
Villa
Building type
vrijstaande woning
Construction period
2025
Energy rating
A+++
Roof type
zadeldak
Bedrooms
5
Bathrooms
2
Surface Areas And Volume
Living Area
266 m2
Other indoor space
0 m2
Exterior space attached to the buildinge
49 m2
Volume in cubic meters
987 m3
Plot Size
902 m2
Facilities
Tv kabel
Dakraam
Glasvezel kabel
Zonnepanelen
Balansventilatie
Aan water
Aan park
In woonwijk
Vrij uitzicht
Baerz & Co Property Brochure

Brochure

Videos

Floor Plans

11 Makelaars - Amsterdam Noord

Mt. Lincolnweg 36 - 617
1033SN Amsterdam

info@11makelaars.nl
+31 20 20 50 208

www.11makelaars.nl

Information / Viewing request

Niels Eering profile image
Niels Eering
Real Estate Agent

Buying a Luxury Property in Goirle

Goirle’s community attracts those who seek authentic connection, refined amenities, and a cultured yet relaxed Dutch lifestyle. The locale offers bespoke services and enduring appeal, with international residents drawn to its quality of life and elegant ambiance.