Baerz & Co is een landelijk samenwerkingsverband van zorgvuldig geselecteerde boutique luxury makelaars. Samen vormen wij één netwerk, met één gedeeld aanbod. De woningen die u op onze website ziet, zijn afkomstig van alle aangesloten kantoren binnen Baerz & Co. Daardoor is niet ieder object rechtstreeks door ons kantoor in verkoop, maar door een gespecialiseerde collega binnen ons netwerk. Heeft u een woning gevonden die u aanspreekt en wilt u meer informatie? Dan brengen wij u graag persoonlijk in contact met de betreffende verkoopmakelaar, zodat u direct en zorgvuldig wordt begeleid.

DEN ILP
Den Ilp 96 - 1127 PJ
Netherlands

Niels Eering profile image
Niels Eering
Real Estate Agent
€2,295,011 k.k.
Living Area
273m2
Plot Size
3835m2
Bedrooms
4

Description

Den Ilp 96 in Den Ilp (Municipality of Landsmeer)

Call now to schedule a viewing or to request a brochure of this non-plus-ultra white villa featuring a luxurious guesthouse, double garage, and private boathouse.

Welcome to Den Ilp — an idyllic ribbon village within the Municipality of Landsmeer, located just a few traffic-free minutes from the vibrant heart of Amsterdam. Nestled on the edge of the Het Twiske nature and recreational area lies a residence of unparalleled distinction: an exclusive detached villa with guesthouse, double garage, and direct waterway access to the canals of Amsterdam.

This non-plus-ultra white villa is in absolute mint condition and sits on a private plot of no less than 3,835 m². The combination of serene tranquility, surrounding water and nature, and exceptional luxury makes this a property of rare prestige.

Just minutes after leaving Amsterdam’s A10 Ring Road, the electric gate opens to reveal an impressive driveway with generous parking on-site and under the carport. Parking is, of course, also available in the heated double garage.

A covered entrance provides access to the villa.

Ground Floor
The entrance leads into a spacious hallway connecting the various living areas: an elegant kitchen with a large cooking island and premium built-in appliances, a cozy TV room, a generous living area with conservatory/garden room, utility/storage room, and guest toilet.

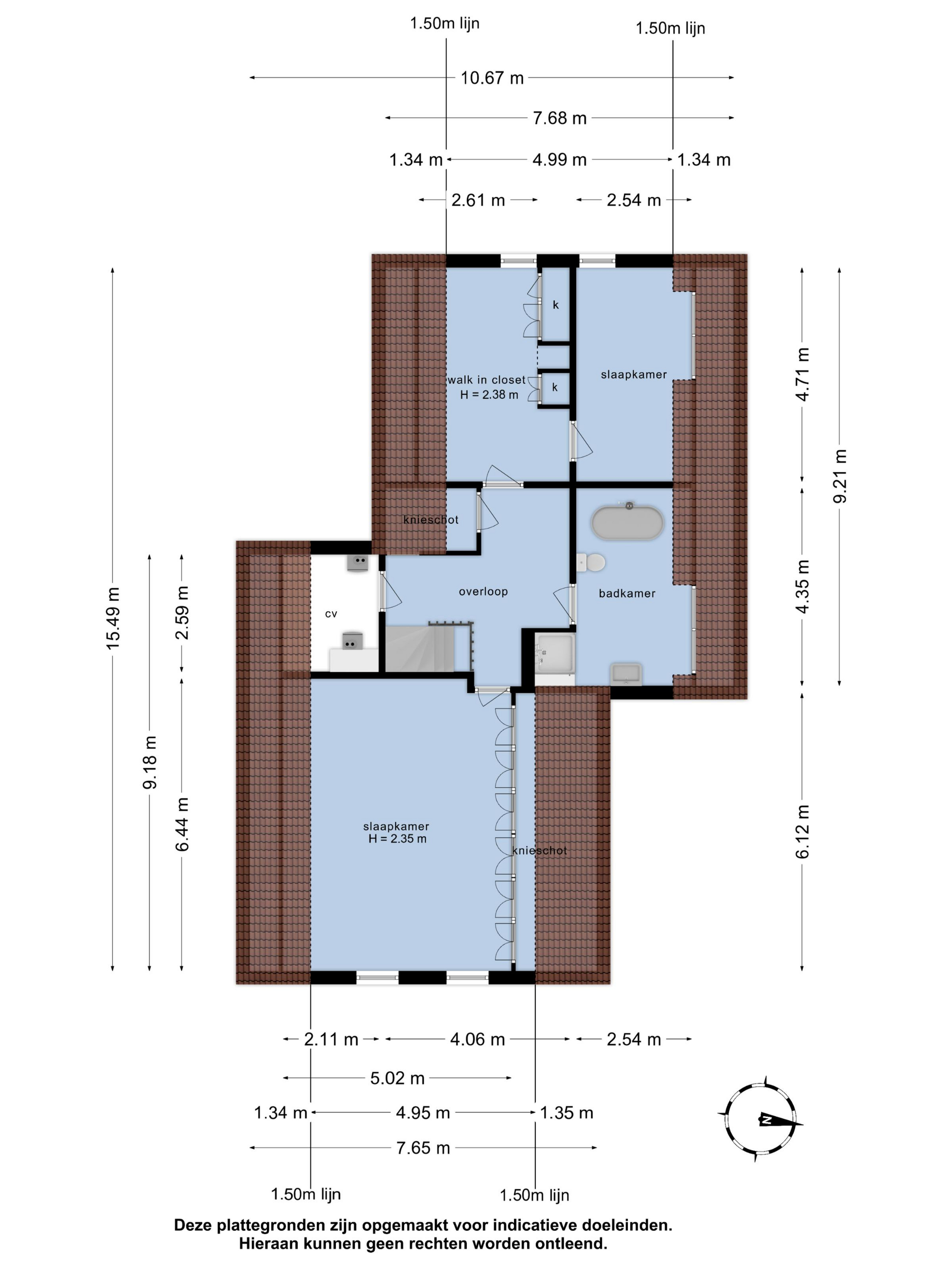
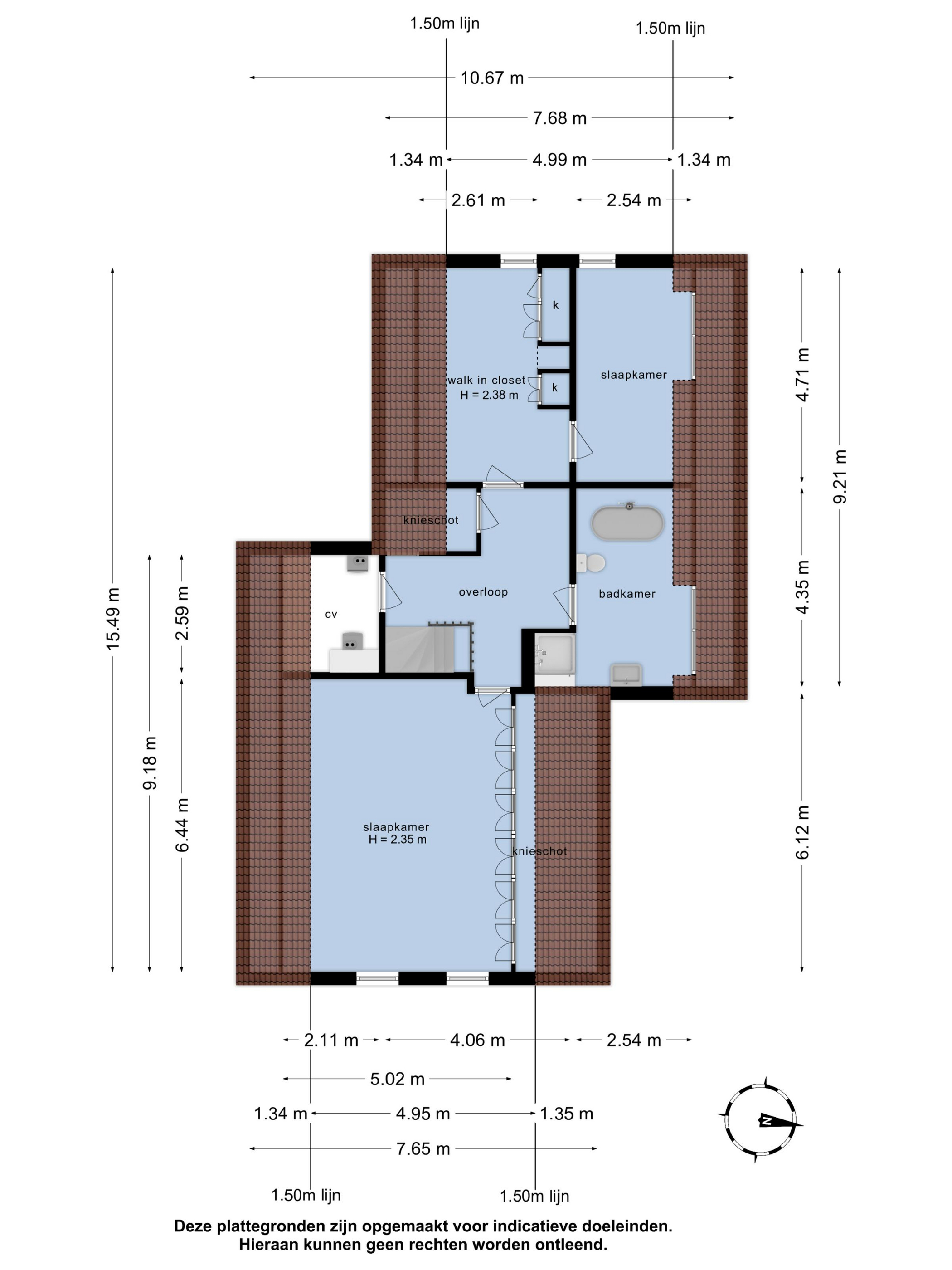
First Floor
Three spacious bedrooms, including an elegant master bedroom with ample wardrobe space, and a luxurious bathroom featuring a walk-in shower and bathtub.

Large windows throughout ensure abundant natural light and offer panoramic views over the garden and water.

Guesthouse & Double Garage
The multifunctional annex reflects the same high-end quality and refinement.

Ground Floor:
Side entrance, double garage, bathroom with shower, sink, and toilet, and a bright living room with modern open kitchen.

First Floor:
Spacious bedroom, storage room, and attic space.

Perfect as guest accommodation, home office, or hobby area.

Outdoor Living & Location
The beautifully landscaped garden is an oasis of peace and elegance. Sleek terraces, mature trees, and perfect positioning toward sun and water create an environment where privacy and relaxation take center stage. From the private boathouse, you step directly into your boat for a trip across open waterways — from Het Twiske to the canals of Amsterdam.

Just around the corner lies the picturesque Ilperveld, ideal for boating, canoeing, and even ice skating in winter. At the rear, views extend over Het Twiske, where you can walk, swim, sail, or ride horses. From this delightfully rural setting, you can reach Amsterdam’s Zuidas business district or city center in just 20 minutes.

Highlights
- Non-plus-ultra white villa in absolute mint condition
- Unique location directly adjacent to the Het Twiske nature and recreational area
- Generous 3,835 m² private plot
- Stunning west-facing garden along wide-open waterways
- Luxurious guesthouse with double garage
- Boathouse (4.50 x 6.50 m) with direct waterway access to Amsterdam
- High-quality finishes and impeccably maintained — move-in ready
- Just minutes from Amsterdam with no traffic delays
- A residence that brings luxury, comfort, and nature into perfect harmony

Features

Alarm system
Air conditioning
Transfer of ownership
Asking Price
€ 2.295.011 k.k.
Status
beschikbaar
Acceptance
direct
Construction
Kind of house
Villa
Building type
vrijstaande woning
Construction period
1983
Energy rating
C
Roof type
zadeldak
Bedrooms
4
Bathrooms
2
Surface Areas And Volume
Living Area
273 m2
Other indoor space
95 m2
Exterior space attached to the buildinge
29 m2
External storage space
42 m2
Volume in cubic meters
1365 m3
Plot Size
3835 m2
Facilities
Mechanische ventilatie
Alarminstallatie
Rolluiken
Tv kabel
Buitenzonwering
Airconditioning
Rookkanaal
Schuifpui
Dakraam
Cctv
Aan water
Vrij uitzicht
Aan vaarwater
Baerz & Co Property Brochure

Brochure

Videos

11 Makelaars - Amsterdam Noord

Mt. Lincolnweg 36 - 617
1033SN Amsterdam

info@11makelaars.nl
+31 20 20 50 208

www.11makelaars.nl

Information / Viewing request

Niels Eering profile image
Niels Eering
Real Estate Agent

Buying a Luxury Property in Den Ilp

Den Ilp offers privileged access to refined rural living, a welcoming community, and discerning services. The area appeals to globally minded individuals valuing privacy, authenticity, and proximity to cultural amenities.