In a beautiful location on Dorpsstraat, surrounded by greenery and within walking distance of the town center, you will find this surprisingly spacious and energy-efficient home with an attached annex and no fewer than 29 solar panels. The house offers generous living space and an abundance of natural light, making it an ideal family home.
Upon entering from Dorpsstraat, you step directly into the spacious kitchen-diner. This open kitchen is equipped with modern built-in appliances and a cooking island, seamlessly connected to the dining area. Large windows make this a wonderfully bright and inviting space. From here, you also have access to the basement, which provides additional storage.
Adjacent to the kitchen is the cozy living room with a wood-burning stove, windows on all sides, and French doors leading to the garden. The wooden details and warm atmosphere make this an inviting place to relax—whether in winter by the fireplace or in summer with the doors open to the garden. A practical storage cupboard can be found under the stairs.
On the ground floor, there is also a second hallway, which features a cloakroom, meter cupboard, an additional door to the garden, and access to the laundry and storage room. Here, the underfloor heating begins, which runs throughout the entire ground floor.
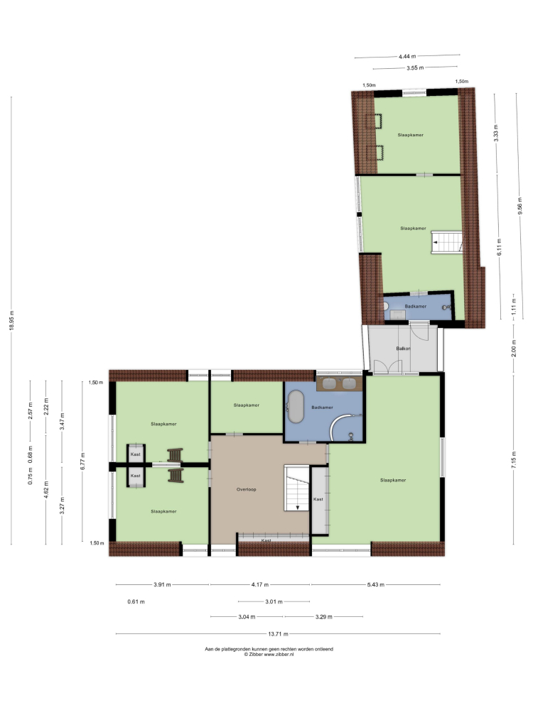
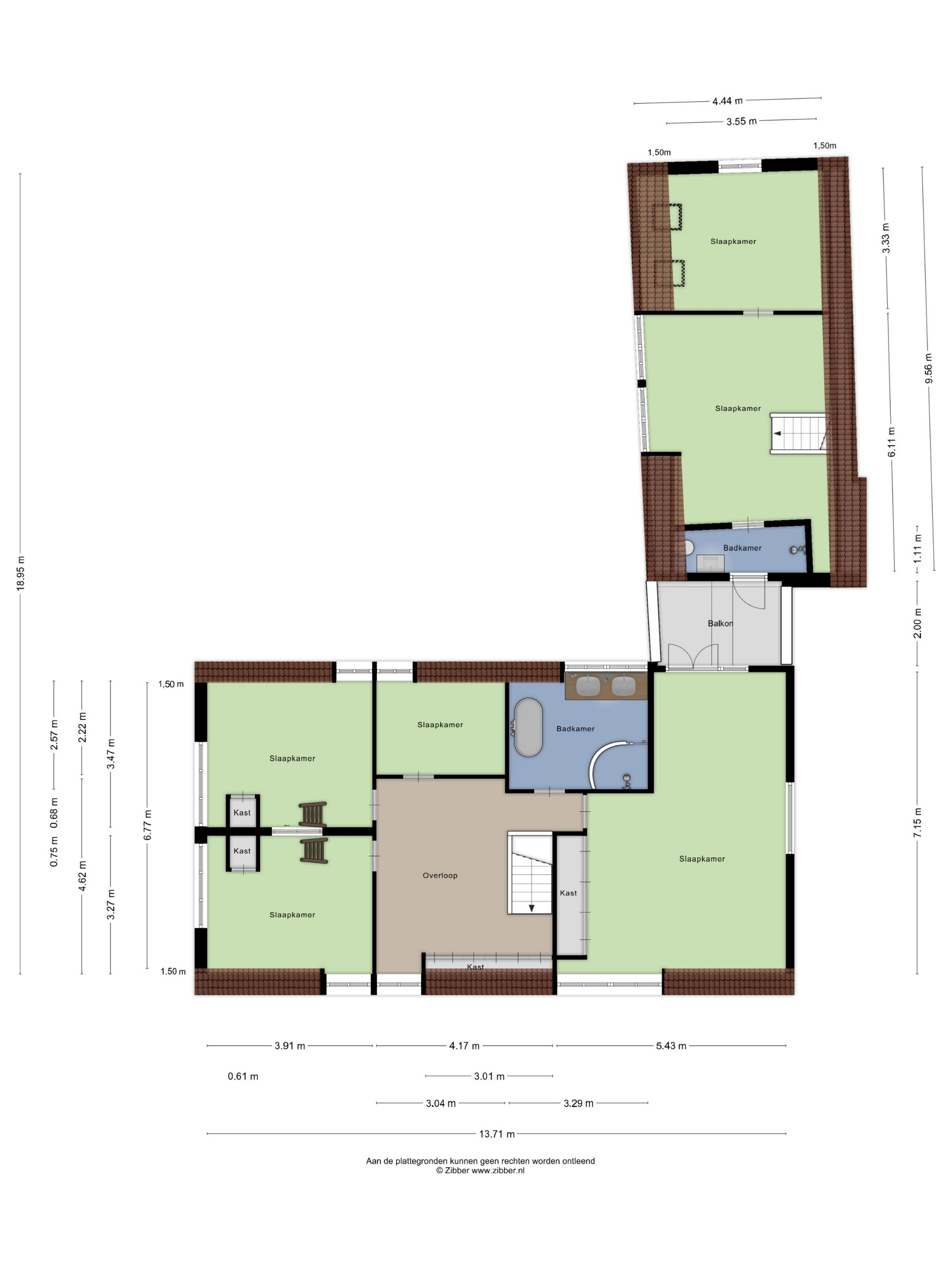
The upper floor offers a spacious landing with high ceilings and built-in eaves storage. The generous master bedroom features a small balcony, and the luxurious bathroom boasts double sinks, a walk-in shower, a toilet, a bathtub, and underfloor heating. In addition, there is a walk-in closet and two more bedrooms, divided by a sliding door, each with its own mezzanine.
On the other side of the house, you will find the former atelier, now used as a guesthouse with a kitchenette and sleeping area. The roof has been insulated, and the upper floor is beautifully light and spacious.
Next to the house is a wooden shed with electricity, large enough to accommodate a car (doors still to be fitted). At the front of the property, along Dorpsstraat, there is a parking space for up to four cars.