Baerz & Co is een landelijk samenwerkingsverband van zorgvuldig geselecteerde boutique luxury makelaars. Samen vormen wij één netwerk, met één gedeeld aanbod. De woningen die u op onze website ziet, zijn afkomstig van alle aangesloten kantoren binnen Baerz & Co. Daardoor is niet ieder object rechtstreeks door ons kantoor in verkoop, maar door een gespecialiseerde collega binnen ons netwerk. Heeft u een woning gevonden die u aanspreekt en wilt u meer informatie? Dan brengen wij u graag persoonlijk in contact met de betreffende verkoopmakelaar, zodat u direct en zorgvuldig wordt begeleid.

BERGEN AAN ZEE
Elzenlaan 30 - 1865 BM
Netherlands

Niels Eering profile image
Niels Eering
Real Estate Agent
€1,795,000 k.k.
Living Area
126m2
Plot Size
768m2
Bedrooms
4

Description

At Elzenlaan 30 in Bergen aan Zee, we are offering this delightful, lifetime-proof family home for sale, with the possibility of creating an additional holiday home. We would like to welcome you to this characterful detached house with a lovely garden surrounding it. A truly delightful family home that has been cherished for generations and was renovated and made sustainable in 2022. With roof and glass insulation, a new kitchen and a modern central heating system, this house is ready for the future.
Elzenlaan is a special place in Bergen aan Zee, located on the edge of the forest and within walking distance of the dunes and beach. Here you can truly relax.

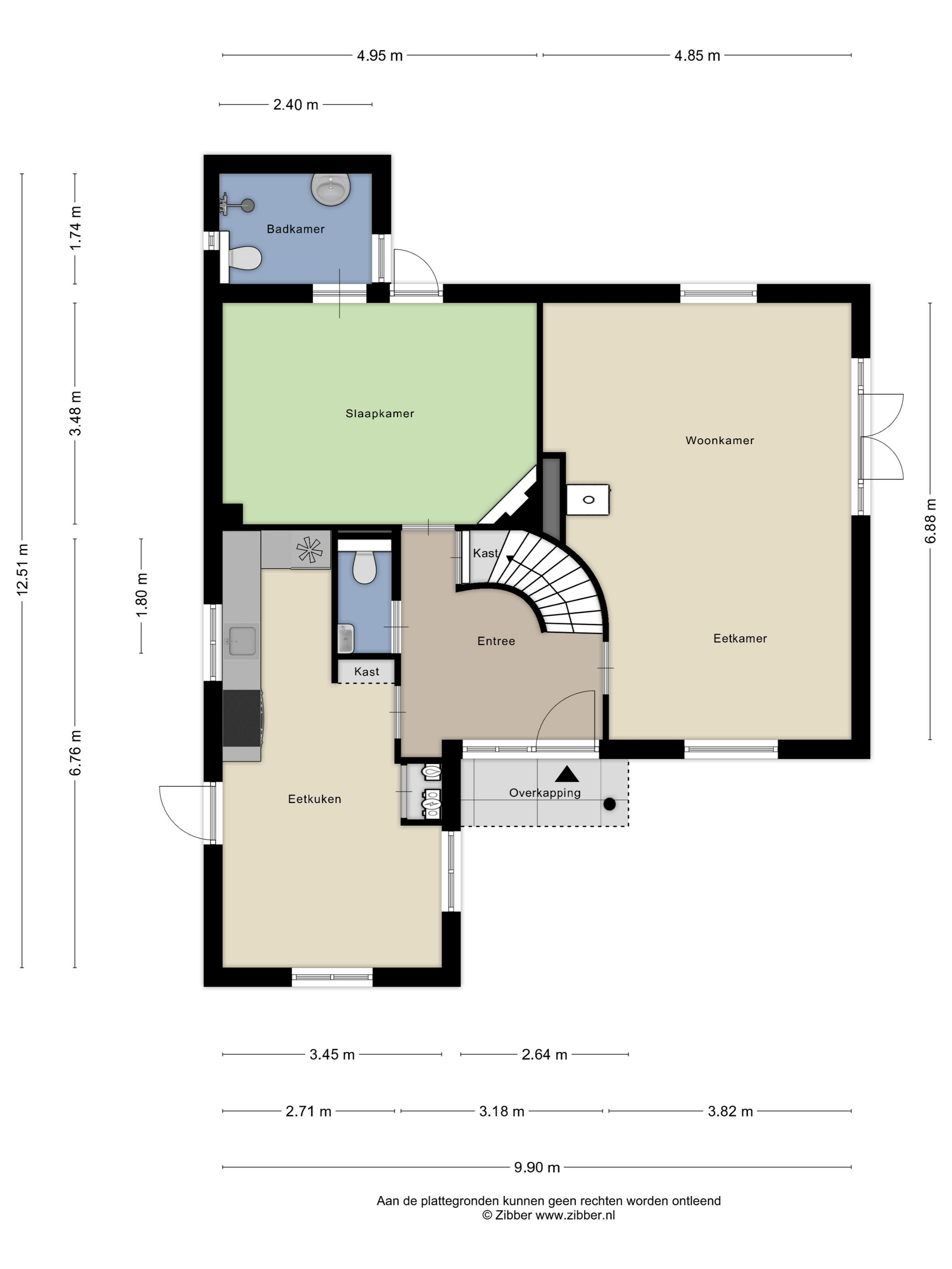
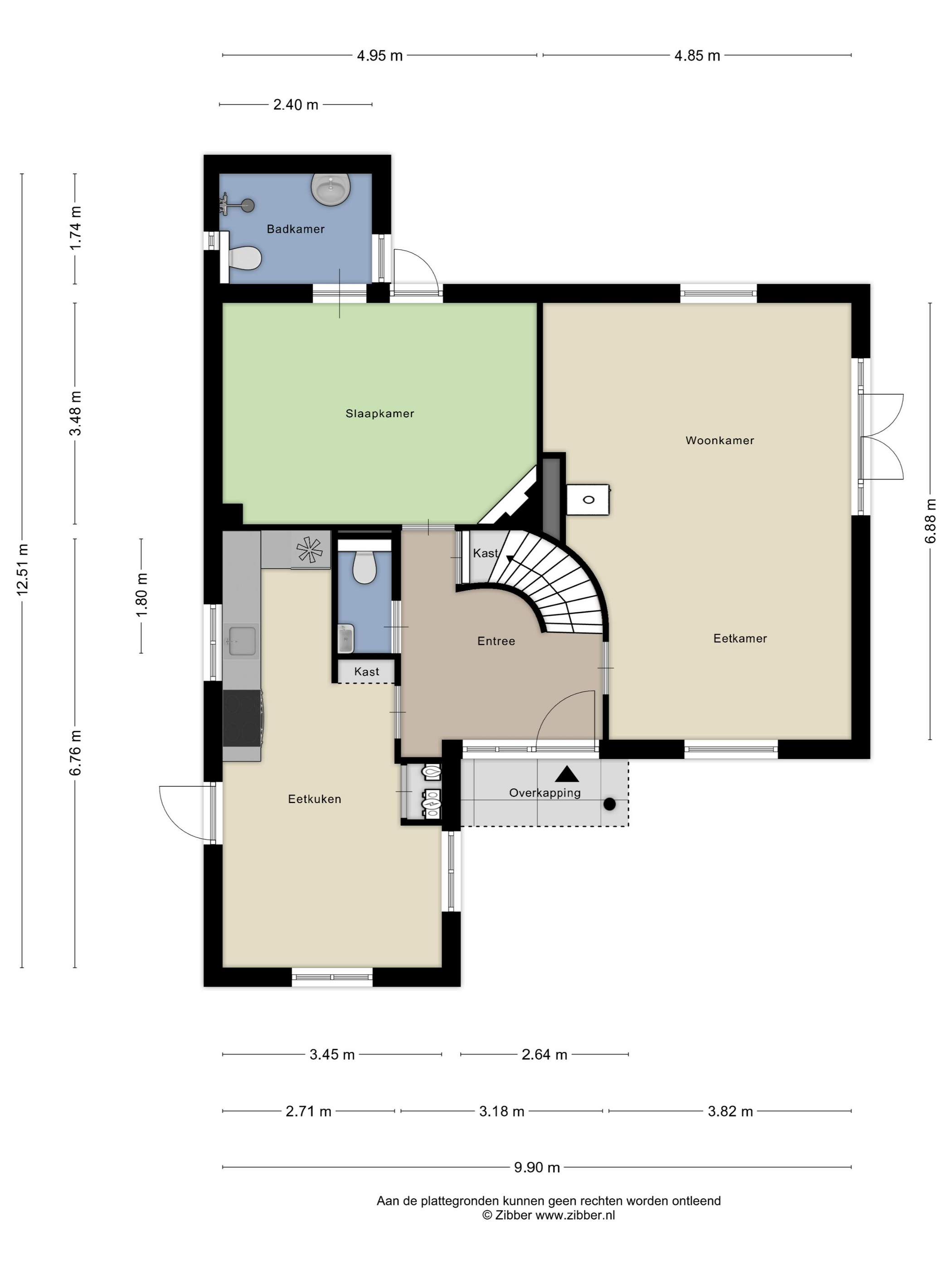
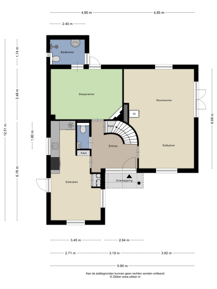
Let us take you inside. Upon entering, you will immediately notice the beautiful entrance hall with a stylish staircase with wrought iron banister, a modern toilet and a handy basement cupboard. The living room is light and cosy with original wooden parquet flooring, a wood-burning stove and French doors opening onto the green garden. Built-in custom wooden cupboards add extra charm and storage space.

On the ground floor, there is also a bedroom with an en-suite bathroom. Here you will find a shower, toilet and washbasin. In short, a lifetime-proof layout.
The kitchen is a lovely place for the whole family, equipped with all conveniences: a Quooker, dishwasher, extractor hood, large oven with induction hob and a separate fridge-freezer. The kitchen also provides access to the meter cupboard.

The ground floor also has a bedroom with an en-suite bathroom. This bathroom has a shower, toilet and washbasin. In short, a layout suitable for all stages of life.
The kitchen is a pleasant place for the whole family, equipped with all conveniences: a Quooker, dishwasher, extractor hood, large oven with induction hob and a separate fridge-freezer. The kitchen also provides access to the meter cupboard.

The first floor has three bedrooms, each with a washbasin and built-in wardrobe. Thanks to several dormer windows, there is plenty of light and space. There is a separate central heating cupboard and a second bathroom with a bath, shower, toilet, skylight and mechanical ventilation. From the landing, a small dormer window offers a view of the coast.

There is also a detached outbuilding on the plot. This outbuilding already has a recreational purpose, but is currently used as a garage. This building has a kitchen unit, washing machine connection, bathroom (shower, toilet, washbasin), and an attic accessible via a hatch with a separate staircase. The outbuilding needs modernisation, but offers plenty of potential.

The property is in a quiet location with lots of greenery and privacy. It is suitable for both permanent residence and use as a second (holiday) home. The house is currently rented out on a short and long-term basis and is partly used by the family themselves.

If you are interested in this property, please let us know, we would be happy to show you around!

Features

Transfer of ownership
Asking Price
€ 1.795.000 k.k.
Status
beschikbaar
Acceptance
in overleg
Construction
Kind of house
Villa
Building type
vrijstaande woning
Construction period
1950
Energy rating
D
Roof type
zadeldak
Bedrooms
4
Bathrooms
2
Surface Areas And Volume
Living Area
126 m2
Other indoor space
0 m2
Exterior space attached to the buildinge
3 m2
External storage space
44 m2
Volume in cubic meters
467 m3
Plot Size
768 m2
Facilities
Mechanische ventilatie
Tv kabel
Rookkanaal
Dakraam
Natuurlijke ventilatie
Aan bosrand
Aan rustige weg
Beschutte ligging
In bosrijke omgeving
Baerz & Co Property Brochure

Brochure

Videos

Floor Plans

11 Makelaars - Amsterdam Noord

Mt. Lincolnweg 36 - 617
1033SN Amsterdam

info@11makelaars.nl
+31 20 20 50 208

www.11makelaars.nl

Information / Viewing request

Niels Eering profile image
Niels Eering
Real Estate Agent

Buying a Luxury Property in Bergen Aan Zee

Bergen Aan Zee offers an elegant community known for privacy, natural beauty, and a vibrant cultural scene. Buyers and residents enjoy refined coastal living supported by expert advisory services and an exclusive, international atmosphere.