Baerz & Co is een landelijk samenwerkingsverband van zorgvuldig geselecteerde boutique luxury makelaars. Samen vormen wij één netwerk, met één gedeeld aanbod. De woningen die u op onze website ziet, zijn afkomstig van alle aangesloten kantoren binnen Baerz & Co. Daardoor is niet ieder object rechtstreeks door ons kantoor in verkoop, maar door een gespecialiseerde collega binnen ons netwerk. Heeft u een woning gevonden die u aanspreekt en wilt u meer informatie? Dan brengen wij u graag persoonlijk in contact met de betreffende verkoopmakelaar, zodat u direct en zorgvuldig wordt begeleid.

BEEGDEN
Heerstraat-noord 63 - 6099 AW
Netherlands

Niels Eering profile image
Niels Eering
Real Estate Agent
€1,595,000 k.k.
Living Area
426m2
Plot Size
7190m2
Bedrooms
6

Description

This stunning estate in Beegden lies on an exceptionally spacious plot and is surrounded by a park-like garden with a swimming pool – a dream come true!

Located on Heerstraat, this unique and charming country house offers panoramic views of the surrounding landscape, situated on a contiguous plot of over 7,000 m². The view here never gets old!

Thanks to the large glass facades and numerous windows, there is seamless contact with the beautiful landscaped garden, and an abundance of natural light.This comfortable home features a spacious living room, a luxurious kitchen with cooking island, a generous ground-floor (bed)room or office, five (bed)rooms on the first floor, and no less than three bathrooms.
The front of the house also exudes style and luxury, with a private driveway and automatic gate. Once you enter the property, you’ll feel like you’ve stepped into a fairytale.
The park-like garden with swimming pool is a true oasis of tranquility and offers a wide range of possibilities—especially with the spacious outbuilding.

The home is fully equipped with underfloor heating throughout, has an Energy Label A, features wooden window frames with insulating glazing, and comes equipped with 64 solar panels.

Entrance & Grounds
Accessed via an electric gate, the inner courtyard leads to the double garage and main entrance. The driveway also connects to the outbuilding located at the rear of the property.

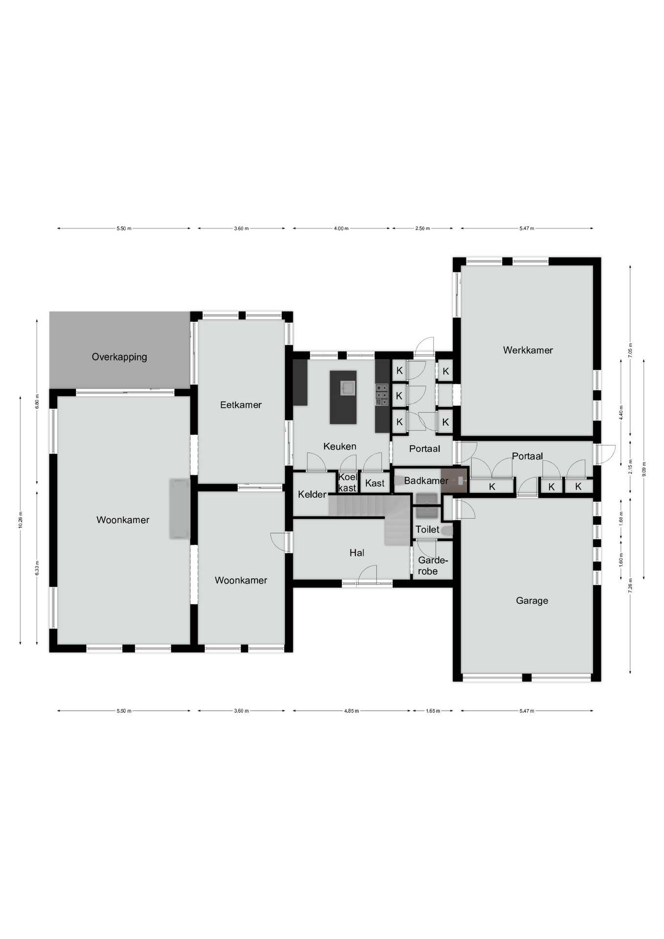
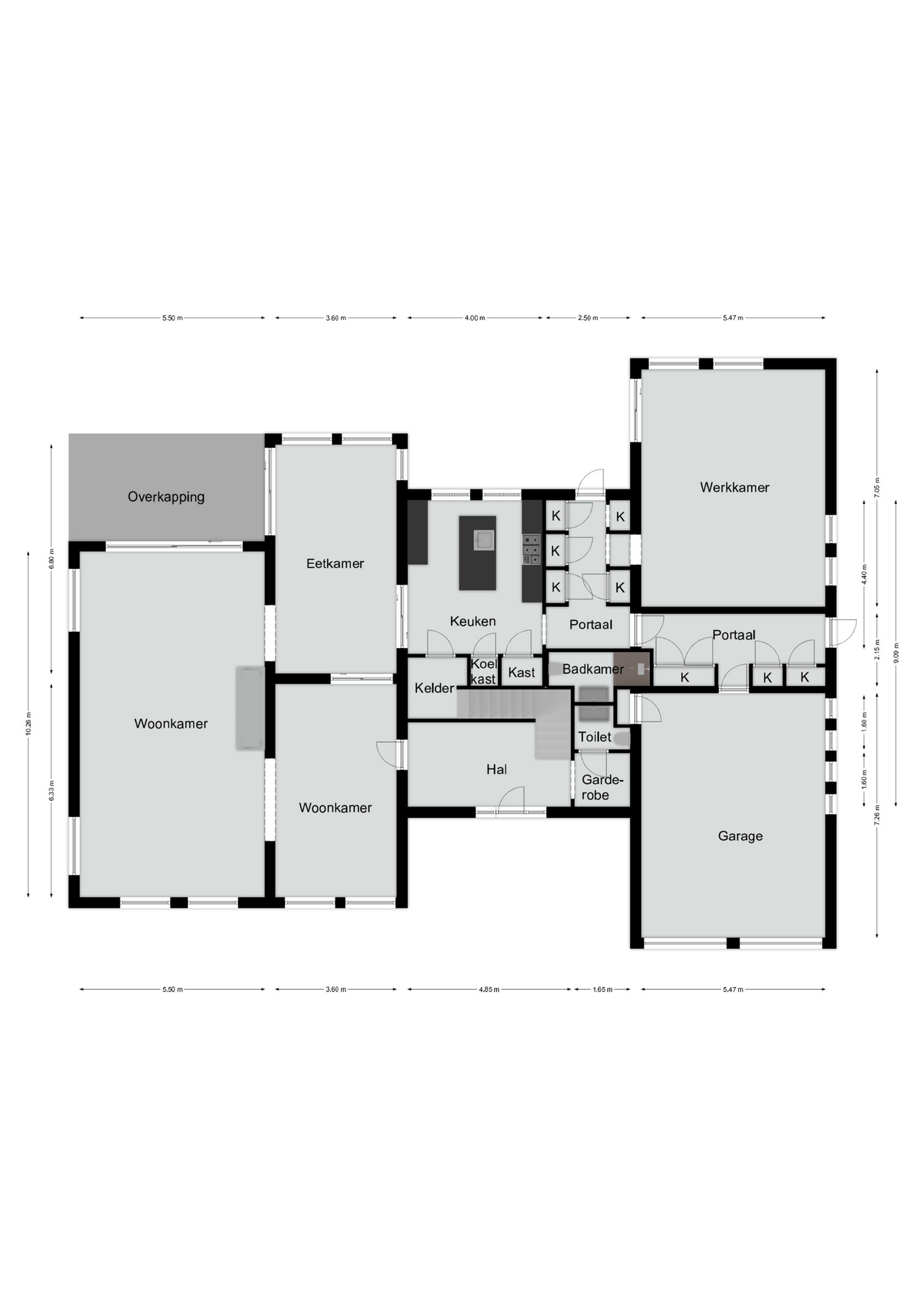
Basement
Accessible from the kitchen, the basement is divided into two sections: a practical laundry cellar with washing machine connections, and a provision/wine cellar.

Ground Floor
The spacious hallway features a marble floor with underfloor heating, a staircase to the first floor, cloakroom, and guest toilet. The living areas offer a bright and open layout, including a cozy fireplace, dining room adjacent to the kitchen, and a front-facing sitting room. Large windows and the open connection to the covered terrace create a wonderfully spacious feel.

The fully equipped kitchen is a dream for any culinary enthusiast, featuring:
Granite-topped island, freestanding 6-burner gas stove, freestanding cabinetry, built-in appliances (dishwasher, refrigerator), sliding doors to the covered terrace

From the kitchen, a hallway with built-in cupboards and meter cabinet leads to:
Office (approx. 40 m²) with garden views and fireplace, indoor double garage and a ground-floor bathroom with walk-in shower, toilet, and vanity.

This wing also has its own entrance and terrace access, ideal for combining living and working or dual occupancy.

First Floor
Five (bed)rooms and two bathrooms. The master suite at the rear includes: En-suite bathroom with walk-in shower, bathtub, toilet, bidet, and double vanity, walk-in closet, balcony overlooking the garden.

The other four bedrooms are spacious and versatile—perfect for hobbies or children’s playrooms. A second bathroom includes a walk-in shower, toilet, and vanity. The boiler room houses two Nefit Topline boilers (2009) and a boiler.

Second Floor
Attic storage accessible via loft ladder.

Garden & Outdoor Living
The lush, park-like garden offers complete privacy and includes: Mature trees and lawn (with groundwater pump and irrigation system), Flower beds with various plantings, a large tiled terrace directly behind the house, professionally installed, fully automated swimming pool with cover and jet stream and a pool house with pump installation.

Multifunctional Space
The spacious outbuilding (warehouse/garage) offers: ground floor: approx. 120 m², upper floor: approx. 80 m², flexible layout with partition wall, lift and staircase, high double doors;, ideal for work, hobbies, or even horse stables.

Key Features:
* 6 (bed)rooms and 3 bathrooms
* Suitable for home office or dual occupancy
* Energy label A
* Fully insulated with underfloor heating
* Two CV installations (2009), updated in 2020
* 64 solar panels (2022, owned)
* Complete privacy
* Daily amenities nearby
* Excellent access to A2 motorway

Location
This beautiful country house is centrally located in Beegden, part of the municipality of Maasgouw. Enjoy scenic boat trips on nearby rivers, explore historic castles, and hike through rolling landscapes.
The A2 motorway is just minutes away, offering easy access to cities such as Eindhoven, Sittard, and Maastricht. Roermond’s city center, Designer Outlet, and Retailpark are also just a stone’s throw away.

Features

Swimming pool
Solar panels
Alarm system
Air conditioning
Transfer of ownership
Asking Price
€ 1.595.000 k.k.
Status
beschikbaar
Acceptance
in overleg
Construction
Kind of house
Landhuis
Building type
vrijstaande woning
Construction period
1980
Energy rating
A
Roof type
schilddak
Bedrooms
6
Bathrooms
3
Surface Areas And Volume
Living Area
426 m2
Other indoor space
130 m2
Exterior space attached to the buildinge
31 m2
External storage space
246 m2
Volume in cubic meters
2044 m3
Plot Size
7190 m2
Facilities
Mechanische ventilatie
Alarminstallatie
Rolluiken
Tv kabel
Zwembad
Airconditioning
Rookkanaal
Schuifpui
Zonnepanelen
Aan drukke weg
In woonwijk
Vrij uitzicht
Open ligging
Landelijk gelegen
Baerz & Co Property Brochure

Brochure

Videos

Floor Plans

11 Makelaars - Amsterdam Noord

Mt. Lincolnweg 36 - 617
1033SN Amsterdam

info@11makelaars.nl
+31 20 20 50 208

www.11makelaars.nl

Information / Viewing request

Niels Eering profile image
Niels Eering
Real Estate Agent

Buying a Luxury Property in Beegden

Beegden offers refined countryside living, a close-knit community, and discreet luxury services. Its international appeal is defined by privacy, water access, and elegant residences tailored for connoisseurs of exceptional property.