Baerz & Co is een landelijk samenwerkingsverband van zorgvuldig geselecteerde boutique luxury makelaars. Samen vormen wij één netwerk, met één gedeeld aanbod. De woningen die u op onze website ziet, zijn afkomstig van alle aangesloten kantoren binnen Baerz & Co. Daardoor is niet ieder object rechtstreeks door ons kantoor in verkoop, maar door een gespecialiseerde collega binnen ons netwerk. Heeft u een woning gevonden die u aanspreekt en wilt u meer informatie? Dan brengen wij u graag persoonlijk in contact met de betreffende verkoopmakelaar, zodat u direct en zorgvuldig wordt begeleid.

AMSTERDAM
Herman Gorterstraat 24 - 1077 WH
Netherlands

Niels Eering profile image
Niels Eering
Real Estate Agent
€10,000,000 k.k.
Living Area
397m2
Plot Size
618m2
Bedrooms
6

Description

Herman Gorterstraat 24, 1077 WH AMSTERDAM

This unique villa located in Amsterdam-Zuid offers a living area of approximately 397 m², spread across three full residential floors, with multiple outdoor spaces including a private jetty, garden, balcony, and a spacious rooftop terrace.

Location & Accessibility
Herman Gorterstraat is situated in one of the most prestigious areas of Amsterdam-Zuid, in the peaceful and green Apollobuurt. This neighbourhood is renowned for its grand architecture, wide streets, and charming avenues. Nearby, you will find numerous facilities for daily shopping, such as Albert Heijn, delicatessens, and various boutiques along the nearby Beethovenstraat. There are also many lovely restaurants, chic cafés and speciality shops that contribute to the vibrant character of the area. Just a short distance away are Museumplein and the elegant P.C. Hooftstraat, offering a wide array of museums, luxury shops, and dining options.
For relaxation and recreation, you can visit the nearby Beatrixpark or Vondelpark, both within easy cycling distance. The area provides the perfect balance between tranquillity and urban amenities, with plenty of green spaces to enjoy. The location is very conveniently situated in relation to major motorways (A10 and A4) and public transport. Amsterdam Zuid railway station, the WTC, Zuidas business district and Schiphol Airport are all quickly accessible. Parking is by permit, but there is always ample street parking available. Furthermore, it is possible to apply for two permits at this address with no waiting list.

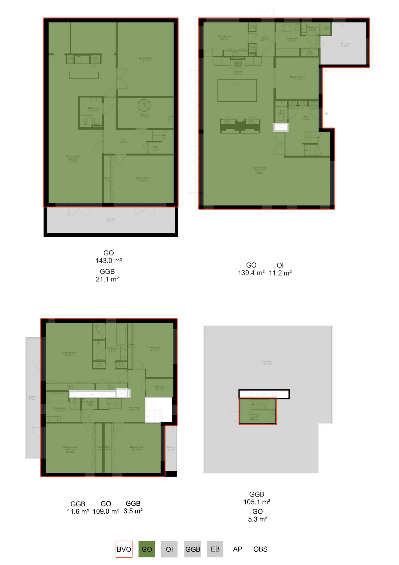
Layout
Ground floor
Entrance; through the hall with cloakroom and separate toilet, you reach the living area of the home. Steel doors lead to the spacious dining and living room, featuring a fireplace and French doors opening onto both the front and rear gardens. Large windows allow for ample natural light and create a seamless connection with the outdoors. Adjacent to the living room is the generously sized kitchen-diner. It includes a central island with double sink, double dishwasher, Quooker, and pull-out pantry. On the opposite side is the cooking area, featuring a five-burner gas hob, concealed spice cabinet, a large American fridge with integrated water and ice dispenser, and ample storage space. Two Bosch ovens and a warming drawer are also built in. The kitchen also boasts its own gas fireplace, which is integrated into a double wall shared with the living room fireplace. French doors in the kitchen lead to the rear garden with a private jetty, suitable for mooring a boat.
Adjacent to the kitchen is the utility room with extra storage space, leading to a full bathroom with walk-in shower and washbasin. From here, you also have internal access to the spacious garage, suitable for bicycles, storage or as a workspace. At the rear of the house is a study with garden views. On the right side is a multifunctional room, currently used as a gym, which can be closed off with sliding steel doors.

Basement
The staircase in the hall leads to the basement level. This floor includes one spacious bedroom with French doors opening onto a patio. Thanks to light wells, there is a surprising amount of daylight. You’ll also find a bathroom with shower and toilet, a large hallway, a generous storage room, and a technical room. Additionally, part of the basement is set up as a home cinema, enclosed by glass doors that block out daylight. Adjacent is a bar area. There is also a large open space, currently fitted with a pool table, which can be freely arranged as a lounge, workspace or hobby area.

First floor
The stairs lead to a spacious landing with access to four bedrooms, two bathrooms and a separate toilet. The master bedroom is located at the rear and features a large built-in wardrobe and French doors to a balcony. It also has an en-suite bathroom with bathtub, walk-in shower, double washbasin unit and a separate toilet. Two of the other bedrooms on this floor each have their own balcony, at the front and rear of the property respectively. The fourth bedroom — currently used as a guest room — is at the front and does not have outdoor space. The second bathroom is centrally located and features a walk-in shower, bathtub and double washbasin unit.

Second floor
The top floor is accessible via a fixed staircase and leads to a spacious rooftop terrace of approximately 105 m². This terrace offers a unique 360-degree view over the surroundings. At the centre of the terrace is a built-in jacuzzi — a wonderful spot to relax in complete peace and privacy.

Details

- Usable living area approx. 397 m² (measured in accordance with NEN2580 guidelines)
- Five spacious bedrooms, including a luxurious master suite with en-suite bathroom
- Spacious and sunny garden surrounding the entire property of approx. 441 m², with direct access to a private jetty
- Large rooftop terrace of approx. 105 m² with built-in jacuzzi and 360° views over Amsterdam-Zuid
- Basement with high ceilings, ample storage space, home cinema and bar
- Energy label A+
- Ground lease bought off in perpetuity under the favourable AB2016 terms
- Two parking permits possible
- Completion in consultation

This information has been compiled by us with the necessary care. However, we accept no liability for any incompleteness, inaccuracy or otherwise, nor for the consequences thereof. All stated measurements and surface areas are indicative. The buyer has their own duty to investigate all matters that are important to them. With regard to this property, the estate agent acts as advisor to the seller. We advise you to engage a qualified (NVM) estate agent to assist you during the purchasing process. If you have specific wishes concerning the property, we advise you to make these known to your purchasing agent in good time and to conduct (or have conducted) your own investigations accordingly. If you do not engage a qualified representative, you are deemed legally competent to oversee all relevant matters yourself. NVM terms and conditions apply.

Features

Transfer of ownership
Asking Price
€ 10.000.000 k.k.
Status
beschikbaar
Acceptance
in overleg
Construction
Kind of house
Eengezinswoning
Building type
vrijstaande woning
Construction period
2014
Energy rating
A+
Roof type
plat dak
Bedrooms
6
Bathrooms
4
Surface Areas And Volume
Living Area
397 m2
Other indoor space
11 m2
Exterior space attached to the buildinge
141 m2
Volume in cubic meters
1531 m3
Plot Size
618 m2
Facilities
Rolluiken
Tv kabel
Balansventilatie
Aan water
In centrum
In woonwijk
Vrij uitzicht
Baerz & Co Property Brochure

Brochure

Videos

11 Makelaars - Amsterdam Noord

Mt. Lincolnweg 38 - 617
1033SN Amsterdam

info@11makelaars.nl
+31 20 20 50 208

www.11makelaars.nl

Information / Viewing request

Niels Eering profile image
Niels Eering
Real Estate Agent

Buying a Luxury Property in Amsterdam

Amsterdam offers a cosmopolitan lifestyle defined by heritage, connectivity, and discreet luxury. Residents benefit from a robust international community, curated services, and vibrant culture. The city’s enduring appeal lies in its blend of history, sophistication, and progressive spirit.