Ons kantoor is lid van Baerz & Co Luxury Homes; een internationaal platform dat exclusieve woningmakelaars met elkaar verbindt. Neem contact op met ons secretariaat voor meer informatie over het landelijke aanbod, waarvan u hieronder een selectie kunt bekijken.

Tussenverdieping for rent in AMSTERDAM

AMSTERDAM Herengracht 326 2 - 1016 CE The Netherlands


Sander Bovenkerk profile image
Sander Bovenkerk
Real Estate Agent
+31 6 55 74 61 72
info@heerenmakelaars.nl

Heeren Makelaars
Stadionweg 75
1077 SE Amsterdam
NETHERLANDS
+31 204702255
www.heerenmakelaars.nl
info@heerenmakelaars.nl

Living area
71m2
Plot size
N/A
Bedrooms
1

Description

Herengracht 326-2, 1016 CE Amsterdam

Lovely and bright apartment of approximately 71 m², situated on the second floor of a characteristic canal house on the Herengracht. The property features one bedroom, a spacious living area and beautiful canal views. The apartment is offered fully furnished and is not suitable for sharers or pets.

Accessibility
The immediate surroundings offer a wide range of boutique shops, restaurants, cafés and supermarkets. The Dam, Magna Plaza, the “Nine Streets”, the Jordaan, the Westerkerk and Amsterdam Central Station are all within walking distance. Public transport connections are excellent, with various tram and bus lines located nearby.

Layout
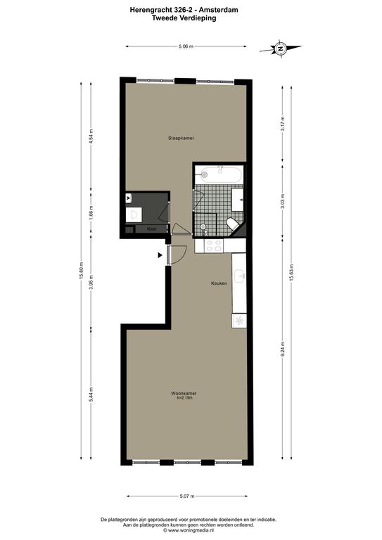
Through the well-maintained communal entrance, you reach the apartment on the second floor.

The entrance leads into the bright and spacious living room with an open kitchen, equipped with a refrigerator, freezer, dishwasher, gas stove with oven, and sink. Large windows provide abundant natural light and stunning views over the Herengracht. At the rear you will find the spacious bedroom, also featuring large windows and pleasant views over the green inner gardens.

Centrally located in the apartment is the laundry area with washing machine, dryer and built-in storage. The bathroom is fitted with a shower, bathtub, toilet and washbasin with cabinet.

Details
- Living area approx. 71 m²
- Spacious living room with beautiful canal views
- One bedroom
- Fully furnished
- Rent excludes gas, water, electricity, TV and internet
- No pets allowed
- Not suitable for sharers
- Available immediately
- Security deposit: two months’ rent
- Income requirement: 2.5 to 3 times the monthly rent

This information has been compiled by us with due care and attention. However, we do not accept any liability for any incompleteness, inaccuracy, or otherwise, or the consequences thereof. All dimensions and surface areas provided are indicative. The buyer has an obligation to conduct their own investigation into all matters that are important to him or her. With regard to this property, the real estate agent acts as an advisor to the seller. We recommend that you engage a qualified (NVM) real estate agent who can assist you throughout the purchasing process. If you have specific preferences regarding the property, we advise you to communicate these in a timely manner to your purchasing agent and conduct independent research accordingly. If you do not engage a qualified representative, you are deemed, by law, to be sufficiently knowledgeable to oversee all relevant matters.

Features

Transfer of ownership
price
€ 2.550 p.m.
Status
beschikbaar
Acceptance
direct
Construction
Kind of house
Tussenverdieping
Building type
appartement
Construction period
1700
Energy rating
B
Roof type
zadeldak
Bedrooms
1
Bathrooms
1
Surface Areas And Volume
Living area
71 m2
Other indoor space
0 m2
Volume in cubic meters
213 m3
facilities
Tv kabel
Aan water
In centrum
Vrij uitzicht
Baerz & Co Property Brochure

Brochure

Information / Viewing request

Photos

Floor Plans