Ons kantoor is lid van Baerz & Co Luxury Homes; een internationaal platform dat exclusieve woningmakelaars met elkaar verbindt. Neem contact op met ons secretariaat voor meer informatie over het landelijke aanbod, waarvan u hieronder een selectie kunt bekijken.

VEENENDAAL
Kerkewijk 169 - 3904 JC
Niederlande

Wistik Zonnenberg profile image
Wistik Zonnenberg
Register Makelaar Taxateur/ Eigenaar
Price on request
Wohnfläche
169m2
Grundstücksgröße
660m2
Schlafzimmer
6

Beschreibung

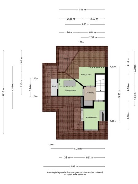
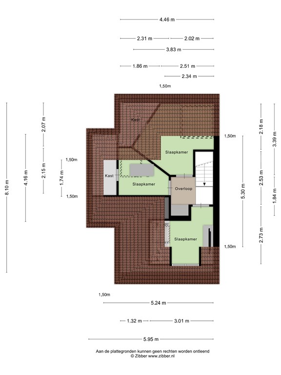
Das Doppelhaus in Veenendaal vereint großzügiges Familienleben mit lokalem Erbe und liegt an der renommierten Kerkewijk, einer der traditionsreichsten Avenuen der Stadt. Mit 169 m² Wohnfläche und sechs Schlafzimmern, verteilt auf drei Etagen, ehrt dieses denkmalgeschützte Gebäude aus dem Jahr 1926 seine Geschichte der Zwischenkriegszeit, ohne auf moderne Nachhaltigkeit zu verzichten. Elf Solarpanels, ein Nefit Trendline-System mit Vorbereitung für eine Wärmepumpe sowie eine durchgehende Klimaanlage unterstreichen den klaren Fokus auf zukunftssicheren Wohnkomfort.

Im Inneren treffen originale Terrazzoböden auf zeitgenössische Helligkeit. Die Wohnräume überzeugen durch großflächige Fenster und einen eleganten Gaskamin, der nahtlos in das Esszimmer für gesellige Runden übergeht. Die Küche wartet mit hochwertigen Details wie einem Miele-Dampfbackofen und einem Induktionskochfeld auf; angrenzend befinden sich ein Hauswirtschaftsraum und ein Keller für höchste Funktionalität. Im Obergeschoss setzen sich Licht und Raumgefühl in gut geschnittenen Schlafzimmern fort, die mit cleveren Stauraumlösungen überzeugen. Ein ruhiges Badezimmer ergänzt die privaten Rückzugsorte.

Draußen erstreckt sich der nach Südosten ausgerichtete Garten über fast 45 Meter Tiefe und bietet mehrere Terrassen, gestaltete Bereiche sowie eine Veranda für das Wohnen im Wandel der Jahreszeiten. Architektonische Originaldetails, wie das Relief 'Ora et Labora' und der Status als städtisches Denkmal seit 2010, verleihen dem Anwesen einen festen Bezug zum Standort. Die Lage ermöglicht schnellen Zugang zu Veenendaals kulturellem Leben sowie zu den Wäldern und Wiesen des Utrechtse Heuvelrug.

Dieses luxuriöse Doppelhaus zum Verkauf in Veenendaal bietet eine private Auffahrt mit Platz für drei Fahrzeuge, isolierte Bauweise und diskreten Komfort. Es verbindet eine tiefe Verbundenheit mit der Geschichte mit modernen Annehmlichkeiten und lädt zu einem zugleich verbundenen und zurückhaltend eleganten Lebensstil ein.

Entdecken Sie Veenendaal mit Baerz, Ihrem vertrauenswürdigen persönlichen Immobilienfinder & Berater

Anspruchsvolle Käufer profitieren von individueller Beratung beim Einstieg in den vielschichtigen Markt von Veenendaal. Ortsansässige Experten bieten Zugang zu diskreten Angeboten und geschützten Netzwerken, navigieren durch regulatorische Details und entdecken Objekte, die selten öffentlich ausgeschrieben werden. Eine versierte Verhandlungsführung und regionales Fachwissen sorgen dafür, dass Ihre persönlichen und Investitionsziele optimal umgesetzt werden – bei maximaler Sicherheit.

Vermeiden Sie häufige Fallstricke

Internationale Käufer verschwenden oft wertvolle Zeit mit doppelten, veralteten oder irreführenden Online-Angeboten, insbesondere da fast 30% der Luxusimmobilien nie auf dem öffentlichen Markt erscheinen. Verkäufermakler vertreten die Interessen des Verkäufers, nicht die des Käufers. Selbst die Anfrage nach Informationen zu einer Immobilie kann dazu führen, dass ein Verkäufermakler Sie ohne Ihre Zustimmung als seinen „Kunden“ registriert.
Mit Baerz Property Finders & Advisors vermeiden Sie all diese Fallstricke vollständig. Wir arbeiten ausschließlich in Ihrem Auftrag, bieten unabhängige Vertretung, klare Beratung und Zugang zu allen verfügbaren Immobilien, einschließlich Off-Market-Möglichkeiten, die andere nie zu sehen bekommen.

Interessiert an einem Personal Property Advisor?

Wir zeigen Ihnen alle verfügbaren Häuser an einem Ort. Kontaktieren Sie uns gerne, um zu erfahren, wie wir Ihre Bedürfnisse erfüllen und Ihre Interessen exklusiv schützen können.

Merkmale

Solarmodule
Garage
Eigentumsübertragung
Preis auf Anfrage
Status
Available
Annahme
In Concert
Referenz
08089
Bau
Art des Hauses
Single Family House
Gebäudetyp
Semi Detached House One Roof
Bauzeitraum
1926
Energieeffizienzklasse
C
Dachtyp
front gable
Schlafzimmer
6
Badezimmer
1
Oberflächen und Volumen
Wohnfläche
169 m2
Anderer Innenbereich
9 m2
Außenbereich am Gebäude angebaut
29 m2
Externer Stauraum
42 m2
Volumen in Kubikmetern
629 m3
Grundstücksgröße
660 m2
Einrichtungen
Airco
Cable Tv
Garage
Garden
Internetconnection
Outdoorawnings
Phoneline
Skylight
Solarpanels
Storageroom
Ventilation
Baerz & Co Property Brochure

Broschüre

Videos

Grundrisse

Zonnenberg Makelaardij

Kerkewijk 108
3904 JG Veenendaal

info@zonnenbergmakelaardij.nl
+31 318 559600

www.zonnenbergmakelaardij.nl

Information / Besichtigungsanfrage

Wistik Zonnenberg profile image
Wistik Zonnenberg
Register Makelaar Taxateur/ Eigenaar

Kauf einer Luxusimmobilie in Veenendaal

Veenendaal bietet eine harmonische Mischung aus Ruhe, urbanem Flair und vielfältigen Annehmlichkeiten. Die Gemeinschaft legt Wert auf Privatsphäre, grünes Wohnen und internationale Verbindungen – unterstützt von hochwertigen Immobiliendienstleistungen für eine anspruchsvolle, globale Klientel.