Ons kantoor is lid van Baerz & Co Luxury Homes; een internationaal platform dat exclusieve woningmakelaars met elkaar verbindt. Neem contact op met ons secretariaat voor meer informatie over het landelijke aanbod, waarvan u hieronder een selectie kunt bekijken.

ROTTERDAM
Kralingseweg 438 - 3066 RD
Niederlande

Joris van Oosten profile image
Joris van Oosten
Real estate agent
€1,500,000 k.k.
Wohnfläche
281m2
Grundstücksgröße
985m2
Schlafzimmer
4

Beschreibung

Die Villa Rotterdam vereint auf einzigartige Weise historische Architektur und nachhaltiges Wohnen auf einem 985 m² großen Privatgrundstück. Das ursprünglich im Jahr 1900 erbaute Anwesen wurde mit höchster Sorgfalt modernisiert und besteht aus dem Haupthaus und einer renovierten Remise, deren Umbau im Jahr 2019 abgeschlossen wurde. Das gesamte Wohnkonzept umfasst 281 m². Die von einer sorgfältig gestalteten Gartenanlage umgebene Immobilie bietet Privatsphäre und Ruhe in mediterraner Atmosphäre, verwurzelt in Rotterdam.

Die originalen Details der Hauptvilla, Bleiglasfenster und das lichtdurchflutete, großzügige Wohnzimmer vermitteln das Gefühl einer harmonischen Verbindung mit der Vergangenheit. Hohe Decken und Holzböden verleihen jedem Raum zusätzliche Tiefe. Die exzellent ausgestattete Küche öffnet sich direkt zum Garten und verbindet sich nahtlos mit dem "Backhaus", wo eine luftige Wohnküche, ein zusätzliches Schlafzimmer und ein flexibel nutzbarer Wohnbereich das Raumgefühl und die Funktionalität erweitern.

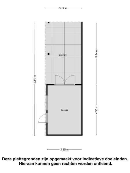
Vier Schlafzimmer und zwei Badezimmer bieten private Rückzugsorte. Die Mastersuite verfügt über ein eigenes Bad mit Wanne, begehbarer Dusche und Blick in den Garten. Weitere Besonderheiten sind ein Weinkeller, zwei Kellerräume mit insgesamt 32 m², ein Außenlager, ein Carport mit Ladestation für Elektrofahrzeuge sowie vierzig Solarpaneele – Energieeffizienzklasse A. Das Grundstück überzeugt mit Hecken, Obstbäumen, einem essbaren Garten, mehreren sonnigen Sitzplätzen und vollständiger Privatsphäre. Die Nähe zu Verkehrsanbindungen, Einkaufsmöglichkeiten und Rotterdams grünen Parks sichert einen gelassenen und stilvollen Lebensstil. Diese Luxusvilla zum Verkauf in Rotterdam steht für durchdachte Restaurierung, effizientes Design und nachhaltige architektonische Präsenz.

Entdecken Sie Rotterdam mit Baerz, Ihrem vertrauenswürdigen persönlichen Immobilienfinder & Berater

Die Navigation auf dem dynamischen Rotterdamer Immobilienmarkt erfordert erfahrene Berater, die lokale Expertise mit internationalem Kundenservice verbinden. Diskreter Zugang zu Off-Market-Angeboten, gezielte Verhandlungsstrategien und vertieftes regulatorisches Wissen ermöglichen es anspruchsvollen Käufern und Verkäufern, kluge Entscheidungen zu treffen. Diese Kompetenz optimiert Renditechancen und sichert Interessen über alle Phasen hinweg.

Vermeiden Sie häufige Fallstricke

Internationale Käufer verschwenden oft wertvolle Zeit mit doppelten, veralteten oder irreführenden Online-Angeboten, insbesondere da fast 30% der Luxusimmobilien nie auf dem öffentlichen Markt erscheinen. Verkäufermakler vertreten die Interessen des Verkäufers, nicht die des Käufers. Selbst die Anfrage nach Informationen zu einer Immobilie kann dazu führen, dass ein Verkäufermakler Sie ohne Ihre Zustimmung als seinen „Kunden“ registriert.
Mit Baerz Property Finders & Advisors vermeiden Sie all diese Fallstricke vollständig. Wir arbeiten ausschließlich in Ihrem Auftrag, bieten unabhängige Vertretung, klare Beratung und Zugang zu allen verfügbaren Immobilien, einschließlich Off-Market-Möglichkeiten, die andere nie zu sehen bekommen.

Interessiert an einem Personal Property Advisor?

Wir zeigen Ihnen alle verfügbaren Häuser an einem Ort. Kontaktieren Sie uns gerne, um zu erfahren, wie wir Ihre Bedürfnisse erfüllen und Ihre Interessen exklusiv schützen können.

Merkmale

Eigentumsübertragung
Verkaufspreis
€ 1.500.000 k.k.
Status
onder bod
Annahme
in overleg
Bau
Art des Hauses
Villa
Gebäudetyp
vrijstaande woning
Bauzeitraum
1900
Energieeffizienzklasse
A
Dachtyp
zadeldak
Schlafzimmer
4
Badezimmer
2
Oberflächen und Volumen
Wohnfläche
281 m2
Anderer Innenbereich
32 m2
Externer Stauraum
13 m2
Volumen in Kubikmetern
1162 m3
Grundstücksgröße
985 m2
Einrichtungen
Aan rustige weg
In woonwijk
Baerz & Co Property Brochure

Broschüre

Videos

Grundrisse

J.J. Van Oosten Makelaardij BV

Straatweg 225
3054 AG Rotterdam

info@vanoostenmakelaardij.nl
+31 10 422 11 00

www.vanoostenmakelaardij.nl

Information / Besichtigungsanfrage

Joris van Oosten profile image
Joris van Oosten
Real estate agent

Kauf einer Luxusimmobilie in Rotterdam

Rotterdam steht für anspruchsvolles Wohnen einer internationalen Klientel mit außergewöhnlichen Möglichkeiten bei Kultur, Wirtschaft und Lebensstil. Bewohner profitieren von erstklassigem Service, einzigartigen Immobilien und einem global vernetzten städtischen Umfeld.