Das Herrenhaus Krimpen aan de Lek ist ein monumentales Zeugnis beständiger Baukunst mit Ursprüngen aus dem Jahr 1650 und bietet großzügige 511 m² Wohnfläche. Im Herzen des Dorfes vereint diese Residenz Geschichte und Zukunft, mit ummauerten Gärten und einem historischen Kutschenhaus, die vom Erbe vergangener Jahrhunderte zeugen. Die eindrucksvollen Raumvolumina des Anwesens—ca. 1.870 m³—bilden die Grundlage für eine sorgfältige Restaurierung, einschließlich erneuerten Dachs, HR++-Verglasung, 23 Solarpanels und effizienter Zentralheizung.
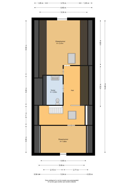
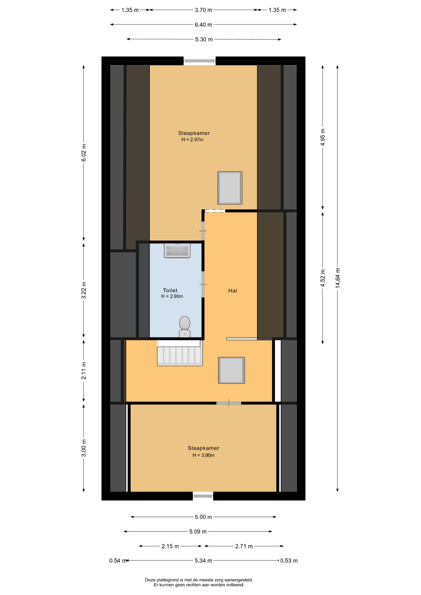
Hinter dem prächtigen Eingang bezaubern originale Mosaikböden, verzierte Decken und antike Kamine. Die Großzügigkeit setzt sich fort: fünf Schlafzimmer, drei Badezimmer und eine Aufteilung, die sowohl familiären Wohnkomfort als auch berufliche Ambitionen unterstützt. Wohn- und Esszimmer verbinden sich harmonisch mit einem lichtdurchfluteten Art-Deco-Wintergarten, der über Schiebetüren in den Garten führt. Im Obergeschoss bieten ruhige Schlafzimmer Ausblicke ins Grüne und auf den Fluss; Dachboden- und Kellerräume sind vielseitig nutzbar, etwa als Weinkeller oder Landhausküche.
Der 1.425 m² große Garten lädt zum Verweilen ein, mit alten Kastanien, Kieswegen und einem privaten finnischen Cottage mit Kamin. Eine separate Garage und der direkte Zugang zu den Annehmlichkeiten des Dorfes—Geschäfte, Schulen, öffentlicher Nahverkehr—gewährleisten einen reibungslosen Alltag. Die Lage nahe der Lek und der grünen Weiten des Krimpenerwaard verbindet die Ruhe des Dorfes mit der Nähe zu Rotterdam, Gouda und Dordrecht.
Dieses Herrenhaus Krimpen aan de Lek vereint auf seltene Weise Herkunft, Großzügigkeit und Wandlungsfähigkeit, geeignet für Rückzug ebenso wie für ambitionierte Unternehmungen. Ein einzigartiger Ort am Schnittpunkt von Geschichte und Moderne, bereit sein nächstes Kapitel zu inspirieren.
Entdecken Sie Krimpen aan de Lek mit Baerz, Ihrem vertrauenswürdigen persönlichen Immobilienfinder & Berater
Ein exklusives Anwesen erfordert mehr als Online-Recherche. Lokale Experten bieten einen differenzierten Blick und Zugang zu diskreten Off-Market-Angeboten. Sie begleiten anspruchsvolle Verhandlungen, unterstützen die rechtliche Prüfung und stellen sicher, dass der Erwerb zu Lebensstil und Finanzplänen passt. Diskretion und professionelle Begleitung sind ein Schlüssel für erfolgreiche Immobiliengeschäfte.
Vermeiden Sie häufige Fallstricke
Internationale Käufer verschwenden oft wertvolle Zeit mit doppelten, veralteten oder irreführenden Online-Angeboten, insbesondere da fast 30% der Luxusimmobilien nie auf dem öffentlichen Markt erscheinen. Verkäufermakler vertreten die Interessen des Verkäufers, nicht die des Käufers. Selbst die Anfrage nach Informationen zu einer Immobilie kann dazu führen, dass ein Verkäufermakler Sie ohne Ihre Zustimmung als seinen „Kunden“ registriert.
Mit Baerz Property Finders & Advisors vermeiden Sie all diese Fallstricke vollständig. Wir arbeiten ausschließlich in Ihrem Auftrag, bieten unabhängige Vertretung, klare Beratung und Zugang zu allen verfügbaren Immobilien, einschließlich Off-Market-Möglichkeiten, die andere nie zu sehen bekommen.
Interessiert an einem Personal Property Advisor?
Wir zeigen Ihnen alle verfügbaren Häuser an einem Ort. Kontaktieren Sie uns gerne, um zu erfahren, wie wir Ihre Bedürfnisse erfüllen und Ihre Interessen exklusiv schützen können.