Ons kantoor is lid van Baerz & Co Luxury Homes; een internationaal platform dat exclusieve woningmakelaars met elkaar verbindt. Neem contact op met ons secretariaat voor meer informatie over het landelijke aanbod, waarvan u hieronder een selectie kunt bekijken.

DORDRECHT
Buiten Walevest 124 - 3311 AD
Niederlande

Johan Oosterlee profile image
Johan Oosterlee
Director/owner
€895,000 k.k.
Wohnfläche
202m2
Grundstücksgröße
N/A
Schlafzimmer
3

Beschreibung

Das Apartment Dordrecht vermittelt ein Gefühl von niveauvollem Wohnen und bietet 202 m² auf zwei großzügigen Ebenen in einer der begehrtesten Flusslagen der Stadt. Das Apartment befindet sich am Eingang zum Nieuwe Haven und vereint die Harmonie historischer Architektur mit modernem Feinsinn. Mit eigenem Eingang im Erdgeschoss sowie einer Dachterrasse von 68 m² ist das Anwesen als geschütztes städtisches Monument im historischen Viertel ausgewiesen.

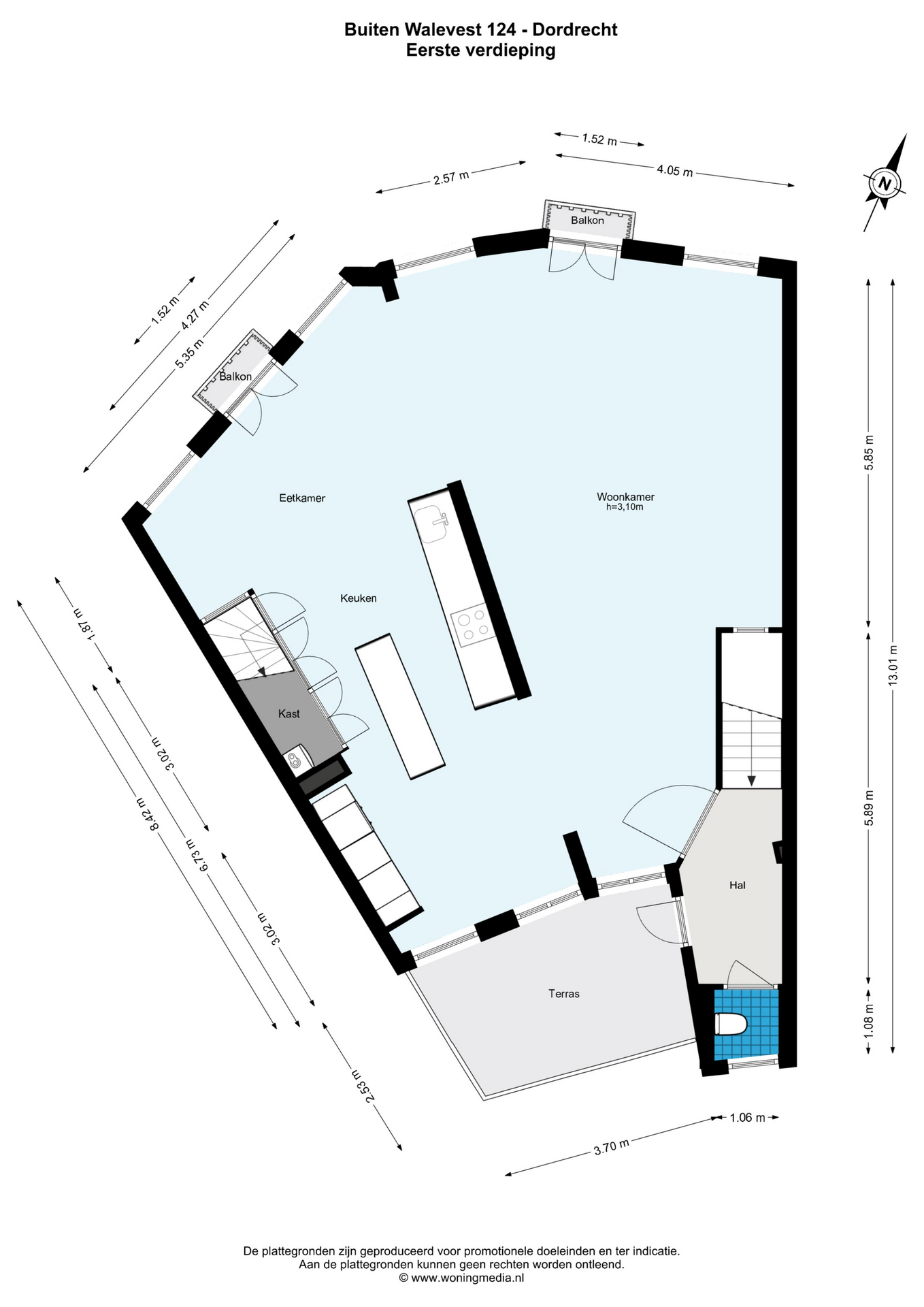
Die erste Etage öffnet sich mit einem weitläufigen Empfangs- und Wohnbereich von ca. 90 m², in dem Licht und der Blick auf die Oude Maas eine Atmosphäre ruhiger Eleganz schaffen. Die offene Wohnküche ist mit hochwertigen Geräten und einem Quooker-Heißwasserhahn ausgestattet und führt zu einer ruhigen, ostseitigen Terrasse von 9 m², die sich ideal für das Morgenlicht und Stadtblicke eignet. Französische Türen öffnen zu zwei Balkonen, die einen unverbauten Panoramablick auf den Fluss bieten.

Im Obergeschoss setzt sich das Raumgefühl fort: drei Schlafzimmer, zwei begehbare Kleiderschränke und ein lichtdurchflutetes Bad mit Badewanne und begehbarer Dusche. Das Hauptschlafzimmer bietet Flussblick und Klimaanlage für ganzjährigen Komfort. Eine separate Toilette sowie großzügige Hauswirtschaftsfläche runden diese Ebene ab.

Gekrönt wird das Apartment durch eine außergewöhnliche Dachterrasse mit 68 m², von der aus sich die historische Silhouette der Stadt und das lebendige Treiben auf dem Fluss aus allen Perspektiven bewundern lassen. Die Immobilie bietet ein erneuertes, isoliertes Dach, Energieeffizienzklasse A, Doppelverglasung sowie hochwertige Details in jeder Hinsicht. Dieses Apartment vereint auf seltene Weise historischen Charme, natürliches Licht und modernen Wohnkomfort mit Blick auf das Wasser von Dordrecht.

Entdecken Sie Dordrecht mit Baerz, Ihrem vertrauenswürdigen persönlichen Immobilienfinder & Berater

Das Immobilienangebot in Dordrecht ist geprägt von seltenen Baudenkmälern und streng gehaltenen Premiumobjekten. Ein lokaler Experte verschafft Zugang zu Off-Market-Immobilien, sichert reibungslose Verhandlungen und unterstützt beim Umgang mit Restaurierungs- und Rechtsfragen. Erfahrene Berater schützen Ihre Interessen diskret und effizient – von der Besichtigung bis zur Übergabe.

Vermeiden Sie häufige Fallstricke

Internationale Käufer verschwenden oft wertvolle Zeit mit doppelten, veralteten oder irreführenden Online-Angeboten, insbesondere da fast 30% der Luxusimmobilien nie auf dem öffentlichen Markt erscheinen. Verkäufermakler vertreten die Interessen des Verkäufers, nicht die des Käufers. Selbst die Anfrage nach Informationen zu einer Immobilie kann dazu führen, dass ein Verkäufermakler Sie ohne Ihre Zustimmung als seinen „Kunden“ registriert.
Mit Baerz Property Finders & Advisors vermeiden Sie all diese Fallstricke vollständig. Wir arbeiten ausschließlich in Ihrem Auftrag, bieten unabhängige Vertretung, klare Beratung und Zugang zu allen verfügbaren Immobilien, einschließlich Off-Market-Möglichkeiten, die andere nie zu sehen bekommen.

Interessiert an einem Personal Property Advisor?

Wir zeigen Ihnen alle verfügbaren Häuser an einem Ort. Kontaktieren Sie uns gerne, um zu erfahren, wie wir Ihre Bedürfnisse erfüllen und Ihre Interessen exklusiv schützen können.

Merkmale

Klimaanlage
Eigentumsübertragung
Verkaufspreis
€ 895.000 k.k.
Status
beschikbaar
Annahme
in overleg
Bau
Art des Hauses
Bovenwoning
Gebäudetyp
appartement
Bauzeitraum
1901
Energieeffizienzklasse
A
Dachtyp
plat dak
Schlafzimmer
3
Badezimmer
1
Oberflächen und Volumen
Wohnfläche
202 m2
Anderer Innenbereich
0 m2
Außenbereich am Gebäude angebaut
80 m2
Volumen in Kubikmetern
684 m3
Einrichtungen
Airconditioning
Aan water
In centrum
Vrij uitzicht
Aan vaarwater
Baerz & Co Property Brochure

Broschüre

Videos

Grundrisse

OZP Makelaars

Vissersdijk Beneden 25
3319 GW Dordrecht

oosterlee@ozp-makelaars.nl
+31 786351753

www.ozp-makelaars.nl

Information / Besichtigungsanfrage

Johan Oosterlee profile image
Johan Oosterlee
Director/owner

Kauf einer Luxusimmobilie in Dordrecht

Dordrecht vereint kulturelles Erbe, anspruchsvolles Wohnen und maßgeschneiderte Services. Die diskrete Gemeinschaft, liebevoll restaurierte Immobilien und weltoffene Atmosphäre machen die Stadt zum erstklassigen Ziel für alle, die Privatsphäre und Stil suchen.