Ons kantoor is lid van Baerz & Co Luxury Homes; een internationaal platform dat exclusieve woningmakelaars met elkaar verbindt. Neem contact op met ons secretariaat voor meer informatie over het landelijke aanbod, waarvan u hieronder een selectie kunt bekijken.

BERGEN (NH)
Buerweg 15 - 1861 CG
Niederlande

Angeline Croonen profile image
Angeline Croonen
Real Estate Agent
€2,995,000 k.k.
Wohnfläche
344m2
Grundstücksgröße
2684m2
Schlafzimmer
4

Beschreibung

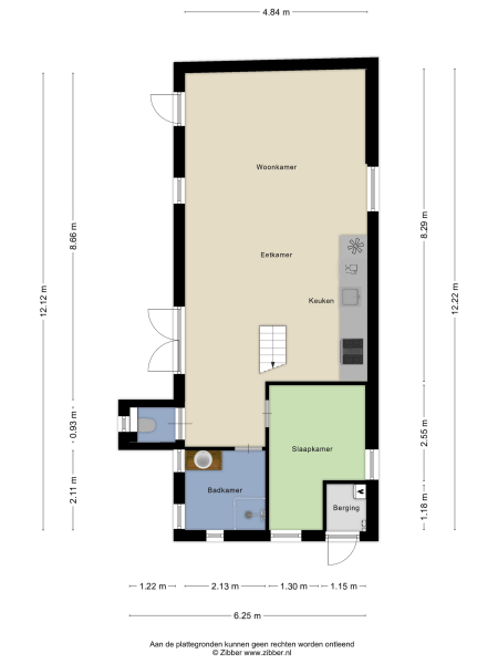
Die Villa Bergen befindet sich in außergewöhnlich ruhiger Lage, mit weitem Blick über Wiesen und vollkommener Privatsphäre, die ein kunstvoll gestaltetes Tor garantiert. Dieses Anwesen vereint Geschichte und Moderne auf besondere Weise. An der Vorderseite des 2.684 m² großen Grundstücks steht ein sorgfältig 2014 renoviertes, reetgedecktes Bauernhaus aus der Mitte des 18. Jahrhunderts, das einen repräsentativen Auftakt zur Immobilie bietet. Dieses Nebengebäude ist vollständig ausgestattet und eignet sich ideal als Homeoffice, Atelier oder für betreutes Wohnen. Seine vielseitige Nutzbarkeit spiegelt seine traditionsreiche Herkunft wider.

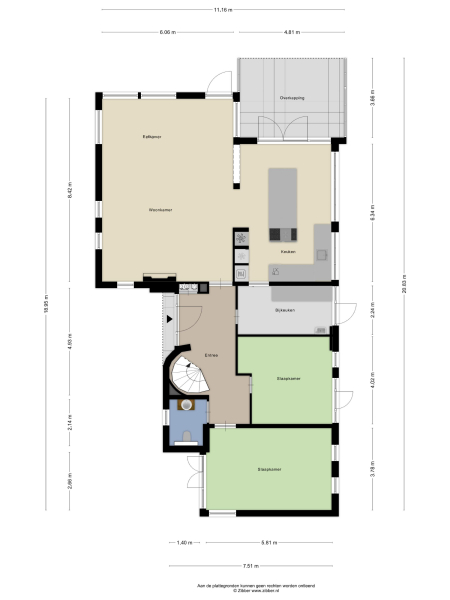
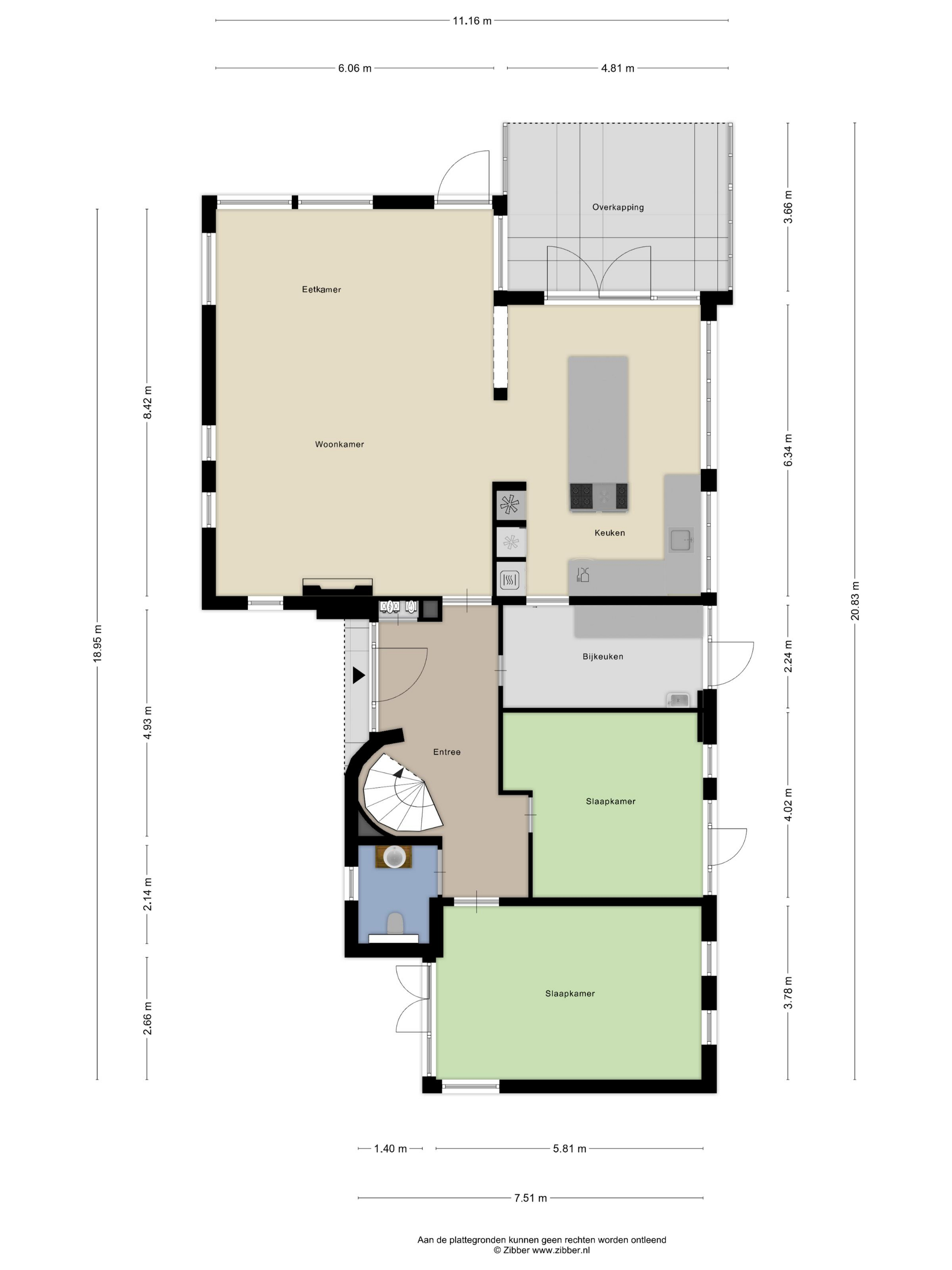
Das Haupthaus ist eine 344 m² große, architektonisch gestaltete Villa aus dem Jahr 1984, die durch ruhige, zeitgemäße Eleganz überzeugt. Das großzügige Wohnzimmer ist lichtdurchflutet und eröffnet weite Wiesenblicke, während ein Kamin an kühlen Abenden für behagliche Wärme sorgt. Die Küche, mit Kochinsel als kommunikativem Zentrum, verbindet familiäres Beisammensein mit Naturblick. Französische Türen und eine überdachte, beheizte Terrasse schaffen einen fließenden Übergang zwischen innen und außen. Zur Ausstattung gehören ein Quooker, professioneller Herd mit Teppanyaki und Fritteuse, Dampfbackofen, Weinkühler und vieles mehr. Angrenzende Hauswirtschaftsräume bieten zusätzlichen Komfort.

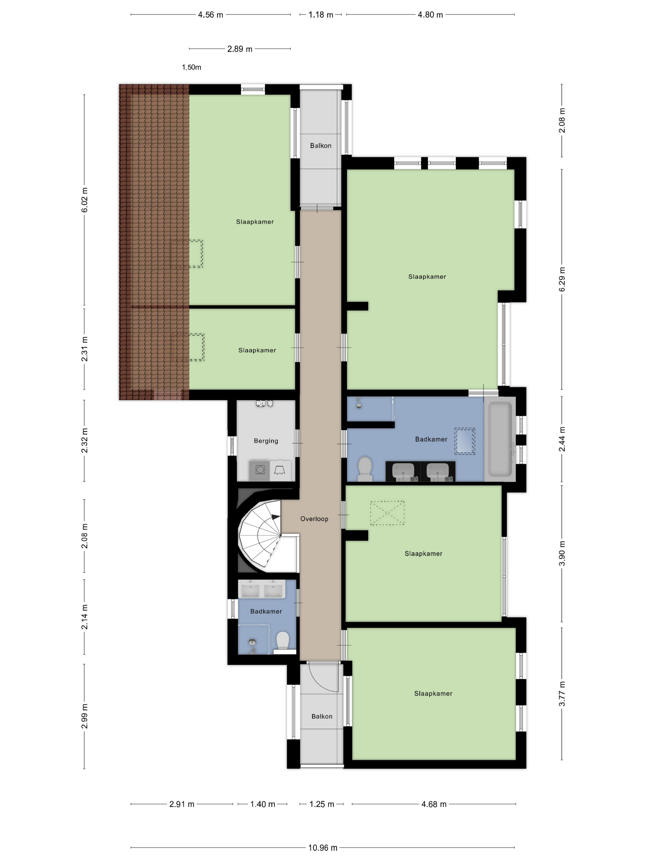
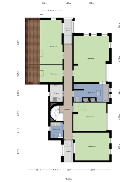
Die Villa umfasst vier Schlafzimmer sowie fünf Räume im Obergeschoss, darunter einen separaten Hauswirtschaftsraum, und zwei Bäder. Das Bad en suite zur Master-Suite verfügt über Doppelwaschbecken und begehbare Dusche. Ausbaumöglichkeiten im Dachbereich sind vorhanden. Nachhaltige Ausstattungsmerkmale wie Wärmepumpe, teilweise Fußbodenheizung und Solarpaneele führen zur Energieklasse A. Weitere Annehmlichkeiten sind mechanische und natürliche Belüftung, Alarmsystem sowie durchdachte Wellness-Vorbereitungen.

Ein Carport aus Holz bietet Platz für mehrere Fahrzeuge und führt zu einer Werkstatt, die bereits für Wellness-Einrichtungen vorbereitet ist. Im rückwärtigen Bereich lädt der landschaftlich gestaltete Garten zu Momenten der Stille oder zum geselligen Beisammensein ein. Mehrere Terrassen sind optimal für Sonne und Ausblick auf die Weiden positioniert. In einer seltenen Synthese aus zeitloser Architektur und natürlichem Rhythmus genießen Sie hier, nur wenige Minuten vom lebendigen Zentrum von Bergen und der Küste entfernt, ein unvergleichliches Wohngefühl.

Merkmale

Solarmodule
Alarmsystem
Eigentumsübertragung
Verkaufspreis
€ 2.995.000 k.k.
Status
beschikbaar
Annahme
in overleg
Bau
Art des Hauses
Villa
Gebäudetyp
vrijstaande woning
Bauzeitraum
1984
Energieeffizienzklasse
A
Schlafzimmer
4
Badezimmer
2
Oberflächen und Volumen
Wohnfläche
344 m2
Anderer Innenbereich
41 m2
Außenbereich am Gebäude angebaut
27 m2
Externer Stauraum
93 m2
Volumen in Kubikmetern
1428 m3
Grundstücksgröße
2684 m2
Einrichtungen
Mechanische ventilatie
Alarminstallatie
Rookkanaal
Dakraam
Zonnepanelen
Natuurlijke ventilatie
Aan rustige weg
Vrij uitzicht
Beschutte ligging
In bosrijke omgeving
Baerz & Co Property Brochure

Broschüre

Videos

Grundrisse

Croon Makelaars

Breelaan 41
1861 GD Bergen

info@croonmakelaars.nl
+31 (0)72 743 32 44

www.croonmakelaars.nl

Information / Besichtigungsanfrage

Angeline Croonen profile image
Angeline Croonen
Real Estate Agent