Ons kantoor is lid van Baerz & Co Luxury Homes; een internationaal platform dat exclusieve woningmakelaars met elkaar verbindt. Neem contact op met ons secretariaat voor meer informatie over het landelijke aanbod, waarvan u hieronder een selectie kunt bekijken.

AMSTERDAM
Stadhouderskade 22 B - 1054 ES
Niederlande

Sander Bovenkerk profile image
Sander Bovenkerk
Real estate agent
€2,400,000 k.k.
Wohnfläche
219m2
Grundstücksgröße
N/A
Schlafzimmer
3

Beschreibung

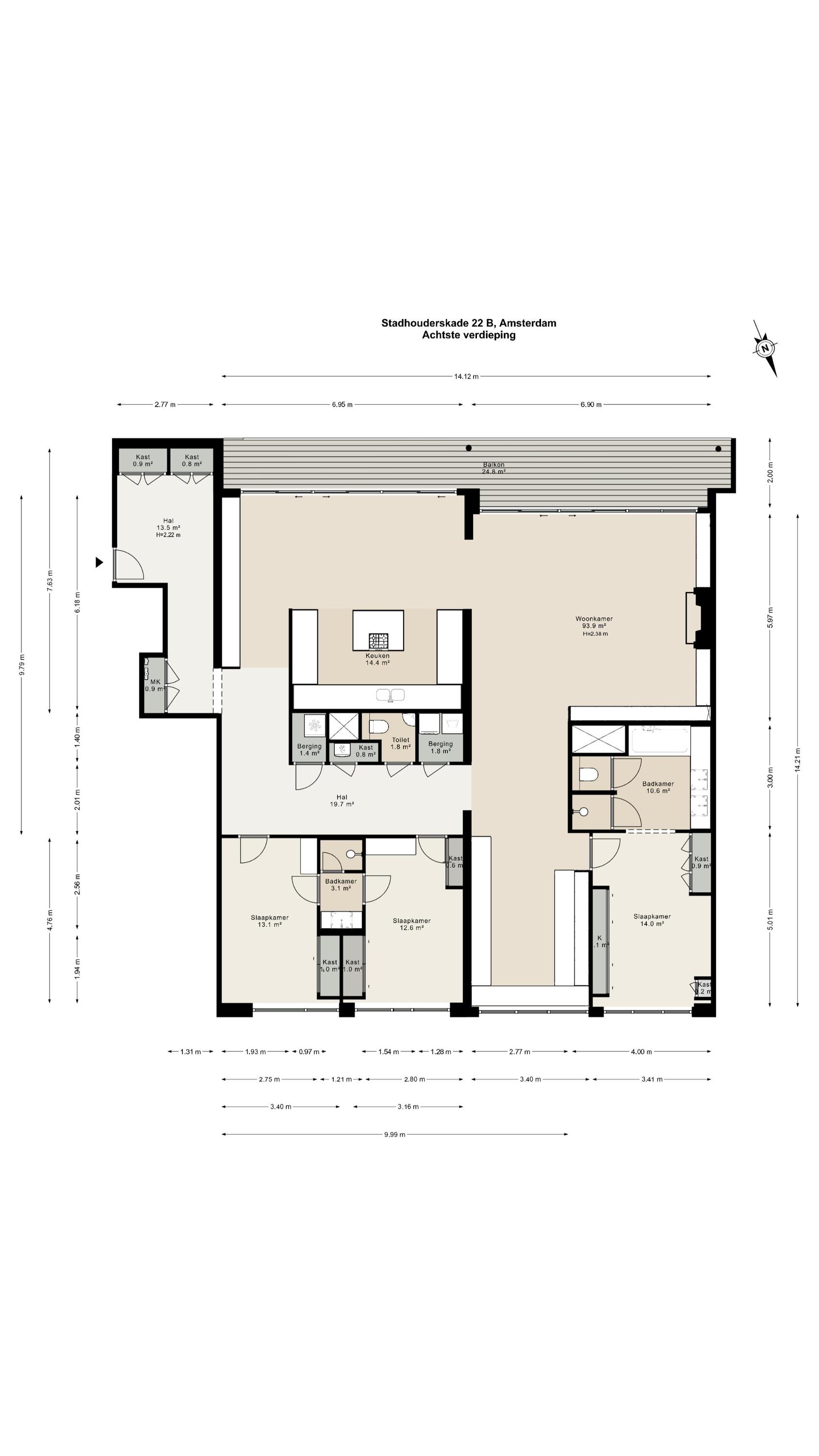
Dieses Penthouse in Amsterdam befindet sich im achten Stock des Byzantium-Komplexes, direkt angrenzend an den Vondelpark. Die 219 m² große Wohnung vereint architektonische Klarheit mit außergewöhnlicher Privatsphäre und bietet lichtdurchflutete Wohnbereiche sowie eine unvergleichliche Nähe zum grünen Herzen der Stadt. Bereits die luxuriöse Lobby aus Naturstein vermittelt einen bleibenden Eindruck von der Eleganz des Gebäudes. Das von Rem Koolhaas entworfene Byzantium bietet eine sichere Umgebung mit 24-Stunden-Überwachung, Concierge-Service und direktem Liftzugang von der Tiefgarage, in der optional ein Parkplatz mit Ladesäule für Elektrofahrzeuge zur Verfügung steht.

Durch die breite Eingangshalle gelangen Sie in den großzügigen, offenen Wohnbereich, der durch raumhohe Glastüren strukturiert wird und sich nahtlos zu einem 25 m² großen Balkon über die gesamte Breite der Residenz öffnet. Der Vondelpark breitet sich darunter aus und ist sowohl vom Wohnbereich als auch von der Küche aus zu sehen, wodurch eine angenehme Ruhe inmitten der Stadt entsteht. Die Küche ist vollständig ausgestattet und verfügt über eine zentrale Kochinsel, ein Induktionskochfeld mit sechs Kochzonen sowie großzügigen Stauraum. Das Wohnzimmer mit Gaskamin und maßgefertigten Einbauten geht fließend in einen komfortablen Arbeitsplatz über. Drei Schlafzimmer bieten Einbauschränke, individuell gestaltete Schreibtische und Klimaanlage; die Master-Suite beeindruckt mit einem Badezimmer aus grünem Marmor und Doppelwaschtisch. Die gesamte Wohnung ist mit Fußbodenheizung und energieeffizienten Systemen ausgestattet, ergänzt durch Doppelverglasung und mechanische Lüftung – so ist ganzjähriger Komfort garantiert.

Die Bewohner des Byzantium profitieren von einer professionell verwalteten Eigentümergemeinschaft, langfristiger Instandhaltungsplanung und gemeinschaftlich gestalteten Gärten. Sämtliche städtischen Annehmlichkeiten – von den Boutiquen der P.C. Hooftstraat bis zu Weltklasse-Museen, Theatern und Restaurants – sind fußläufig erreichbar. Straßenbahn- und Busverbindungen an Leidseplein und Marnixstraat ermöglichen eine komfortable Mobilität innerhalb Amsterdams sowie zum Flughafen Schiphol. Dieses luxuriöse Penthouse in Amsterdam bietet exklusives urbanes Wohnen, großzügige Räume und bleibende architektonische Substanz.

Entdecken Sie Amsterdam mit Baerz, Ihrem vertrauenswürdigen persönlichen Immobilienfinder & Berater

Der Zugang zum Luxusimmobilienmarkt von Amsterdam erfordert tiefgreifendes lokales Know-how, Diskretion und Verhandlungsgeschick. Erstklassige Berater verschaffen Zugang zu privaten Angeboten, erklären komplexe Besitzrechte und erkennen Werte in einem Markt, in dem Opportunitäten selten sichtbar werden. Beratungsteams prüfen jedes Objekt sorgfältig und vertreten Ihre Interessen souverän – sie stärken Ihre Verhandlungsposition, begleiten Transaktionen nahtlos und wahren Ihre Privatsphäre.

Vermeiden Sie häufige Fallstricke

Internationale Käufer verschwenden oft wertvolle Zeit mit doppelten, veralteten oder irreführenden Online-Angeboten, insbesondere da fast 30% der Luxusimmobilien nie auf dem öffentlichen Markt erscheinen. Verkäufermakler vertreten die Interessen des Verkäufers, nicht die des Käufers. Selbst die Anfrage nach Informationen zu einer Immobilie kann dazu führen, dass ein Verkäufermakler Sie ohne Ihre Zustimmung als seinen „Kunden“ registriert.
Mit Baerz Property Finders & Advisors vermeiden Sie all diese Fallstricke vollständig. Wir arbeiten ausschließlich in Ihrem Auftrag, bieten unabhängige Vertretung, klare Beratung und Zugang zu allen verfügbaren Immobilien, einschließlich Off-Market-Möglichkeiten, die andere nie zu sehen bekommen.

Interessiert an einem Personal Property Advisor?

Wir zeigen Ihnen alle verfügbaren Häuser an einem Ort. Kontaktieren Sie uns gerne, um zu erfahren, wie wir Ihre Bedürfnisse erfüllen und Ihre Interessen exklusiv schützen können.

Merkmale

Klimaanlage
Eigentumsübertragung
Verkaufspreis
€ 2.400.000 k.k.
Status
verkocht onder voorbehoud
Annahme
in overleg
Bau
Art des Hauses
Penthouse
Gebäudetyp
appartement
Bauzeitraum
1991
Energieeffizienzklasse
A
Dachtyp
samengesteld dak
Schlafzimmer
3
Badezimmer
0
Oberflächen und Volumen
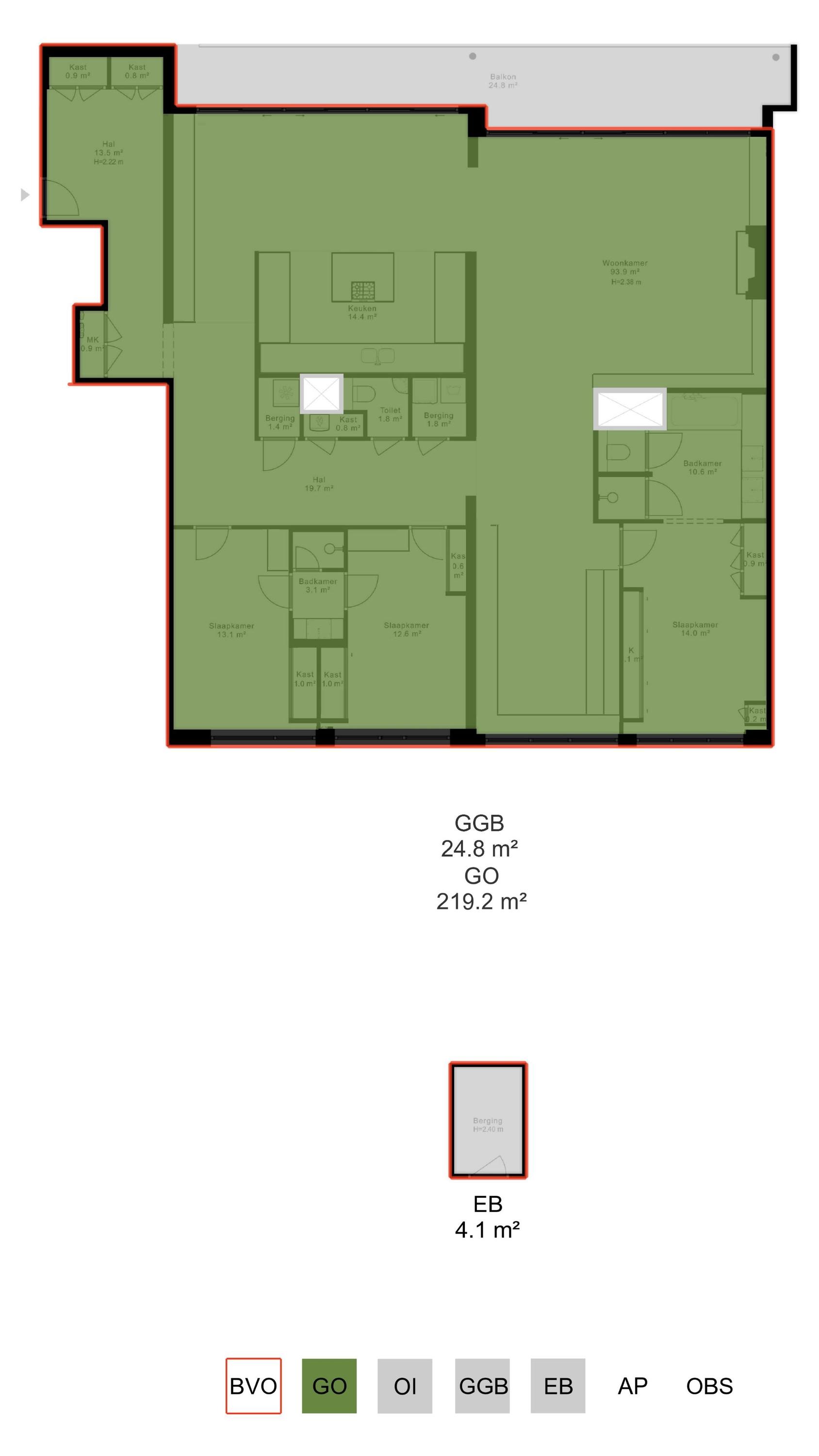
Wohnfläche
219 m2
Anderer Innenbereich
0 m2
Außenbereich am Gebäude angebaut
25 m2
Volumen in Kubikmetern
635 m3
Einrichtungen
Mechanische ventilatie
Buitenzonwering
Lift
Airconditioning
Rookkanaal
Aan park
In centrum
Vrij uitzicht
Baerz & Co Property Brochure

Broschüre

Videos

Grundrisse

Heeren Makelaars

Stadionweg 75
1077 SE Amsterdam

info@heerenmakelaars.nl
+31 204702255

www.heerenmakelaars.nl

Information / Besichtigungsanfrage

Sander Bovenkerk profile image
Sander Bovenkerk
Real estate agent

Kauf einer Luxusimmobilie in Amsterdam

Amsterdam bietet einen kosmopolitischen Lebensstil, geprägt von Tradition, Vernetzung und diskretem Luxus. Bewohner profitieren von einer starken internationalen Gemeinschaft, maßgeschneiderten Dienstleistungen und lebendiger Kultur. Der andauernde Reiz der Stadt resultiert aus der Mischung aus Historie, Raffinesse und fortschrittlichem Geist.